HALO reality - Predaj, trojizbový byt Slovenská Ľupča - VO V
- [18.10. 2025]Zmazať/ Upraviť/ Topovať





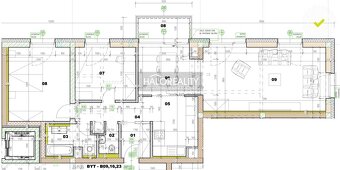
Predstavujeme vám 3-izbový byt s výmerou 93 m2 v novom projekte v Slovenskej Ľupči – ideálne miesto pre tých, ktorí túžia po pokojnom bývaní neďaleko mesta, no s komfortom modernej novostavby.
Projekt je vo fáze výstavby, čo dáva možnosť získať byt za výhodnejších podmienok ešte pred dokončením.
DISPOZÍCIA:
Byt vyniká vzdušnou dispozíciou, ktorá spája priestrannú obývaciu izbu s kuchyňou do jedného harmonického celku – miesta, kde sa odohráva život rodiny.
Dve oddelené izby poskytujú dostatok súkromia pre rodičov aj deti, alebo môžu poslúžiť ako pracovňa či hosťovská izba.
Nechýba moderná kúpeľňa, samostatné WC a praktické úložné priestory.
K dispozícii je viacero variantov trojizbových bytov, takže si môžete zvoliť rozloženie podľa vlastných potrieb.
STAV NEHNUTEĽNOSTI:
Projekt je v súčasnosti už vo výstavbe, pričom práce napredujú podľa stanoveného harmonogramu.
Kolaudácia a odovzdanie bytov sú plánované na štvrtý štvrťrok 2026.
Záujemcovia tak majú možnosť využiť výhodnejšie podmienky kúpy ešte počas výstavby a získať nový byt za priaznivejšiu cenu, než po dokončení projektu.
MESAČNÉ NÁKLADY:
Byty sú navrhnuté tak, aby poskytli vysoký štandard bývania bez nutnosti ďalších investícií.
V základnej cene je zahrnuté:
- komfortné podlahové vykurovanie,
- príprava na klimatizáciu a exteriérové tienenie,
- rekuperácia vzduchu,
- ekologické prvky – solárne panely a fotovoltika.
Vďaka týmto riešeniam ide o moderné a úsporné bývanie, ktoré myslí aj na budúcnosť.
LOKALITA:
Projekt je situovaný v pokojnej časti Slovenskej Ľupče, iba pár minút jazdy od Banskej Bystrice.
Obchody, škola, škôlka, pošta aj zdravotné stredisko – všetko nájdete v pešej dostupnosti.
Prechádzky, bicyklovanie či oddych v prírode? Lesy a lúky máte doslova na dosah ruky.
NÁZOR MAKLÉRA:
Slovenská Ľupča sa mení na jedno z najzaujímavejších miest pre bývanie v okolí Banskej Bystrice – spája dostupnosť, pokoj a rastúcu hodnotu investície.
Ak hľadáte byt, ktorý má budúcnosť, alebo chcete investovať do nehnuteľnosti s reálnym potenciálom rastu, projekt Byty Májová je výbornou voľbou.
Radi vám vysvetlíme, ako prebieha financovanie počas výstavby, aké sú záruky pre kupujúcich, a ukážeme, prečo sa práve teraz oplatí konať. Energetická trieda A.
Bližšie informácie Vám radi poskytneme na telefónnom čísle 0911 505 484 alebo na andreasimoncikova@haloreality.sk. ID ponuky: BB-71353.
Cena za nehnuteľnosť je KONEČNÁ, vrátane provízie, právneho servisu zabezpečeného advokátom, poradenstva, základného správneho poplatku na katastri a hypotekárnych služieb (viac na našej webovej stránke).
U NÁS MÁTE ISTOTU: --------------------------------------------------------
- sme JEDNOTKA na SLOVENSKOM REALITNOM TRHU, predávame 1 000 nehnuteľností ročne
- prvotriedny servis a služby po celom Slovensku, predávali sme už viac ako 70 000 NEHNUTEĽNOSTÍ
- na našom webe nájdete už viac
Projekt je vo fáze výstavby, čo dáva možnosť získať byt za výhodnejších podmienok ešte pred dokončením.
DISPOZÍCIA:
Byt vyniká vzdušnou dispozíciou, ktorá spája priestrannú obývaciu izbu s kuchyňou do jedného harmonického celku – miesta, kde sa odohráva život rodiny.
Dve oddelené izby poskytujú dostatok súkromia pre rodičov aj deti, alebo môžu poslúžiť ako pracovňa či hosťovská izba.
Nechýba moderná kúpeľňa, samostatné WC a praktické úložné priestory.
K dispozícii je viacero variantov trojizbových bytov, takže si môžete zvoliť rozloženie podľa vlastných potrieb.
STAV NEHNUTEĽNOSTI:
Projekt je v súčasnosti už vo výstavbe, pričom práce napredujú podľa stanoveného harmonogramu.
Kolaudácia a odovzdanie bytov sú plánované na štvrtý štvrťrok 2026.
Záujemcovia tak majú možnosť využiť výhodnejšie podmienky kúpy ešte počas výstavby a získať nový byt za priaznivejšiu cenu, než po dokončení projektu.
MESAČNÉ NÁKLADY:
Byty sú navrhnuté tak, aby poskytli vysoký štandard bývania bez nutnosti ďalších investícií.
V základnej cene je zahrnuté:
- komfortné podlahové vykurovanie,
- príprava na klimatizáciu a exteriérové tienenie,
- rekuperácia vzduchu,
- ekologické prvky – solárne panely a fotovoltika.
Vďaka týmto riešeniam ide o moderné a úsporné bývanie, ktoré myslí aj na budúcnosť.
LOKALITA:
Projekt je situovaný v pokojnej časti Slovenskej Ľupče, iba pár minút jazdy od Banskej Bystrice.
Obchody, škola, škôlka, pošta aj zdravotné stredisko – všetko nájdete v pešej dostupnosti.
Prechádzky, bicyklovanie či oddych v prírode? Lesy a lúky máte doslova na dosah ruky.
NÁZOR MAKLÉRA:
Slovenská Ľupča sa mení na jedno z najzaujímavejších miest pre bývanie v okolí Banskej Bystrice – spája dostupnosť, pokoj a rastúcu hodnotu investície.
Ak hľadáte byt, ktorý má budúcnosť, alebo chcete investovať do nehnuteľnosti s reálnym potenciálom rastu, projekt Byty Májová je výbornou voľbou.
Radi vám vysvetlíme, ako prebieha financovanie počas výstavby, aké sú záruky pre kupujúcich, a ukážeme, prečo sa práve teraz oplatí konať. Energetická trieda A.
Bližšie informácie Vám radi poskytneme na telefónnom čísle 0911 505 484 alebo na andreasimoncikova@haloreality.sk. ID ponuky: BB-71353.
Cena za nehnuteľnosť je KONEČNÁ, vrátane provízie, právneho servisu zabezpečeného advokátom, poradenstva, základného správneho poplatku na katastri a hypotekárnych služieb (viac na našej webovej stránke).
U NÁS MÁTE ISTOTU: --------------------------------------------------------
- sme JEDNOTKA na SLOVENSKOM REALITNOM TRHU, predávame 1 000 nehnuteľností ročne
- prvotriedny servis a služby po celom Slovensku, predávali sme už viac ako 70 000 NEHNUTEĽNOSTÍ
- na našom webe nájdete už viac
|
|
Kontaktovať inzerenta e-mailom
Kontaktovať e-mailom môže iba overený užívateľ.
Overenie je zadarmo.
Vaše telefónne číslo *
Kontaktovať e-mailom môže iba overený užívateľ.
Overenie je zadarmo.
Vaše telefónne číslo *