NA PREDAJ - SLNEČNÉ STAVEBNÉ POZEMKY - PAVLICE, 185 EUR/m²
- TOP - [16.11. 2025]Zmazať/ Upraviť/ Topovať






















Ponúkame na predaj stavebné pozemky v intraviláne obce PAVLICE
Veľkou výhodou :
- Pozemky sú pripravené na okamžitú výstavbu rodinných domov - majú vydané stavebné povolenie
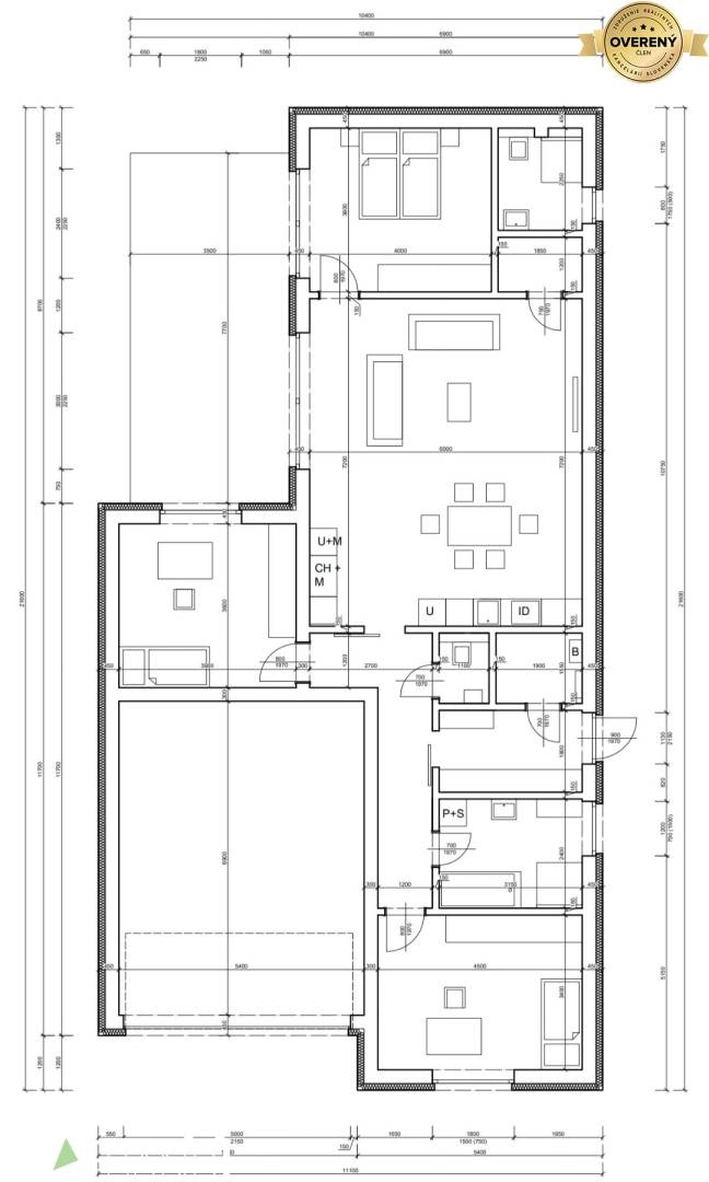
- Ku každému pozemku je ako bonus pripravená a schválená projektová dokumentácia v cene - samostatne stojaci 4-izbový rodinný dom typ bungalov s dvoj garážou
Veľkosť pozemkov - cena :
1) 524 m² cena : 96 940,00 Eur - zastavaná plocha RD : 196.38 m² a úžitková plocha : 157.52 m²
2) 583 m² cena : 107 855,00 Eur - zastavaná plocha RD : 196.38 m² a úžitková plocha : 157.52 m²
3) 633 m² cena : 117 105,00 Eur - zastavaná plocha RD : 189.94 m² a úžitková plocha : 166.78 m²
Výhody :
- Inžinierske siete priamo na pozemku - novo vybudované ( obecný vodovod, elektrická prípojka, kanalizácia )
- Asfaltová prístupová cesta priamo pred pozemkom
- Udržiavaný a čiastočne oplotený pozemok - rovina
- Pokojná a kľudná časť obce - bočná ulička
- Na vyžiadanie bude novému majiteľovi pozemok zrovnaný
Poloha :
- 5 min. napojenie diaľnica D1
- 15 min. od Trnavy
- 30 min od Bratislavy
Pre dohodnutie obhliadky a zodpovedanie Vašich otázok ma kontaktujte na nižšie uvedených kontaktoch.
Stanislav Ščipák
0905267544
stanislav.scipak@realband.sk
Meno:
Stanislav Ščipák
Telefón:
+42... zobraz číslo
Lokalita: Mapa 919 42 Trnava
Videlo:
374 ľudí
Cena:
185 €
Veľkou výhodou :
- Pozemky sú pripravené na okamžitú výstavbu rodinných domov - majú vydané stavebné povolenie
- Ku každému pozemku je ako bonus pripravená a schválená projektová dokumentácia v cene - samostatne stojaci 4-izbový rodinný dom typ bungalov s dvoj garážou
Veľkosť pozemkov - cena :
1) 524 m² cena : 96 940,00 Eur - zastavaná plocha RD : 196.38 m² a úžitková plocha : 157.52 m²
2) 583 m² cena : 107 855,00 Eur - zastavaná plocha RD : 196.38 m² a úžitková plocha : 157.52 m²
3) 633 m² cena : 117 105,00 Eur - zastavaná plocha RD : 189.94 m² a úžitková plocha : 166.78 m²
Výhody :
- Inžinierske siete priamo na pozemku - novo vybudované ( obecný vodovod, elektrická prípojka, kanalizácia )
- Asfaltová prístupová cesta priamo pred pozemkom
- Udržiavaný a čiastočne oplotený pozemok - rovina
- Pokojná a kľudná časť obce - bočná ulička
- Na vyžiadanie bude novému majiteľovi pozemok zrovnaný
Poloha :
- 5 min. napojenie diaľnica D1
- 15 min. od Trnavy
- 30 min od Bratislavy
Pre dohodnutie obhliadky a zodpovedanie Vašich otázok ma kontaktujte na nižšie uvedených kontaktoch.
Stanislav Ščipák
0905267544
stanislav.scipak@realband.sk
Meno:
Stanislav Ščipák
Telefón:
+42... zobraz číslo
Lokalita: Mapa 919 42 Trnava
Videlo:
374 ľudí
Cena:
185 €
|
| |||||||||||||||||||||||||||||||
Kontaktovať inzerenta e-mailom
Kontaktovať e-mailom môže iba overený užívateľ.
Overenie je zadarmo.
Vaše telefónne číslo *
Kontaktovať e-mailom môže iba overený užívateľ.
Overenie je zadarmo.
Vaše telefónne číslo *

