REZERVOVANÉ: NOVOSTAVBA 3i byt s balkónom, 97m2, Smižany; 20
- [17.10. 2025]Zmazať/ Upraviť/ Topovať











ADRIREAL v exkluzívnom zastúpení majiteľa Vám ponúka na predaj novostavbu 3 - izbový byt s balkónom v Smižanoch v časti na Pánskom kruhu okres Spišská Nová Ves.
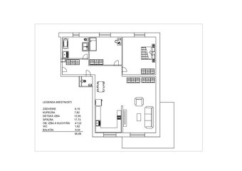
Byt sa nachádza na druhom podlaží z troch. Pozostáva z 2 samostatných izieb, obývacia izba s kuchyňou, WC, kúpeľňa a zádverie.
K bytu prislúcha pivničná kobka 3,5 m2, balkón 9,54 m2 a plocha bytu je 87,35 m2.
Disponuje: samostatné tepelné čerpadlo so systémom ochladzovania, rekuperácia, podlahové kúrenie - teplovodné, exteriérové žalúzie na diaľkové ovládanie, plastové okná s izolačným trojsklom - 6 komorové firma NOVES, vchodové bezpečnostné dvere ADLO, omietky so stierkami základný hygienický náter + škrabané omietky, podlahy s poterom pripravené na kladenie podlahovín, v predsieni a vo WC keramická dlažba, elektroinštalácia je urobená v celom byte - svetlá, zásuvky, taktiež aj voda, prípojky, odpady- WC, kúpeľňa, kuchyňa. Byt je vykurovaný.
Bytový dom: stavebný materiál tehla, zateplený, protihlukové steny medzi bytmi, upravené spoločné priestory, videovrátnik, pivničné kobky, garáže na prízemnom podlaží a kaviareň s teraskou. V bytovom dome je 9 bytov / 3 x 2-izbové s balkónmi + 6 x 3-izbové s balkónmi /. Dostatok parkovacieho miesta pri obytnom dome s možnosťou dokúpenia garáže.
Okolie bytového domu: príjazdová cesta - asfaltová, chodníky - zámková dlažba, verejné osvetlenie, upravený terén - skalky, dostatok zelene.
Energetická skupina A0, mesačné náklady: bytová správa 77 €, elektrina 80 €.
Výhodou tejto nehnuteľnosti je dobrá lokalita, jedinečné bývanie s krásnym výhľadom, v modernom, novom, priestrannom a zdravom bývaní s nízkymi nákladmi a možnosťou dokončenia podľa vlastných predstáv. Bývanie späté s prírodou - Národný park Slovenský raj - Čingov, Tomášovský výhľad, Klauzy, Letanovský mlyn a Kláštorisko..
Obec Smižany disponuje výbornou dostupnosťou a občianskou vybavenosťou: autobusová, železničná doprava, blízkosť diaľničný privádzač D1, cca 5 minút pešou chôdzou od bytového domu zastávka MHD, Základná škola s materskou školou, kostol, potraviny, cirkevná aj umelecká škola, reštaurácia, chodníky do prírody a cyklistika....
Do okresného mesta Spišskej Novej Vsi je 3 km, do Levoče 18 km.
Ak Vás táto ponuka zaujala neváhajte ma kontaktovať: Adriana Astalošová, astalosova@adrireal.sk, 0917 814 648.
Dodatok k cene: , možnosť HÚ
Obytná plocha: 87.35m²
Celková rozloha: 96.89m²
Úžitková plocha: 87.35m²
Vlastníctvo: firemné
Stav: holopriestor
Odvoz odpadu: áno - separovaný
Plyn: nie
Internet: optika
Kúpeľňa: vaňa a sprchovací kút
Vykurovanie: vlastné - elektrické
Balkón: áno - 1
Pivnica: áno
Garáž: nie
Výťah: nie
Parkovanie: verejné
Postavené z: tehla
Zariadenie: nezariadený
Zateplený objekt: áno
Energetický certifikát: A
Okná: plastové
Byt sa nachádza na druhom podlaží z troch. Pozostáva z 2 samostatných izieb, obývacia izba s kuchyňou, WC, kúpeľňa a zádverie.
K bytu prislúcha pivničná kobka 3,5 m2, balkón 9,54 m2 a plocha bytu je 87,35 m2.
Disponuje: samostatné tepelné čerpadlo so systémom ochladzovania, rekuperácia, podlahové kúrenie - teplovodné, exteriérové žalúzie na diaľkové ovládanie, plastové okná s izolačným trojsklom - 6 komorové firma NOVES, vchodové bezpečnostné dvere ADLO, omietky so stierkami základný hygienický náter + škrabané omietky, podlahy s poterom pripravené na kladenie podlahovín, v predsieni a vo WC keramická dlažba, elektroinštalácia je urobená v celom byte - svetlá, zásuvky, taktiež aj voda, prípojky, odpady- WC, kúpeľňa, kuchyňa. Byt je vykurovaný.
Bytový dom: stavebný materiál tehla, zateplený, protihlukové steny medzi bytmi, upravené spoločné priestory, videovrátnik, pivničné kobky, garáže na prízemnom podlaží a kaviareň s teraskou. V bytovom dome je 9 bytov / 3 x 2-izbové s balkónmi + 6 x 3-izbové s balkónmi /. Dostatok parkovacieho miesta pri obytnom dome s možnosťou dokúpenia garáže.
Okolie bytového domu: príjazdová cesta - asfaltová, chodníky - zámková dlažba, verejné osvetlenie, upravený terén - skalky, dostatok zelene.
Energetická skupina A0, mesačné náklady: bytová správa 77 €, elektrina 80 €.
Výhodou tejto nehnuteľnosti je dobrá lokalita, jedinečné bývanie s krásnym výhľadom, v modernom, novom, priestrannom a zdravom bývaní s nízkymi nákladmi a možnosťou dokončenia podľa vlastných predstáv. Bývanie späté s prírodou - Národný park Slovenský raj - Čingov, Tomášovský výhľad, Klauzy, Letanovský mlyn a Kláštorisko..
Obec Smižany disponuje výbornou dostupnosťou a občianskou vybavenosťou: autobusová, železničná doprava, blízkosť diaľničný privádzač D1, cca 5 minút pešou chôdzou od bytového domu zastávka MHD, Základná škola s materskou školou, kostol, potraviny, cirkevná aj umelecká škola, reštaurácia, chodníky do prírody a cyklistika....
Do okresného mesta Spišskej Novej Vsi je 3 km, do Levoče 18 km.
Ak Vás táto ponuka zaujala neváhajte ma kontaktovať: Adriana Astalošová, astalosova@adrireal.sk, 0917 814 648.
Dodatok k cene: , možnosť HÚ
Obytná plocha: 87.35m²
Celková rozloha: 96.89m²
Úžitková plocha: 87.35m²
Vlastníctvo: firemné
Stav: holopriestor
Odvoz odpadu: áno - separovaný
Plyn: nie
Internet: optika
Kúpeľňa: vaňa a sprchovací kút
Vykurovanie: vlastné - elektrické
Balkón: áno - 1
Pivnica: áno
Garáž: nie
Výťah: nie
Parkovanie: verejné
Postavené z: tehla
Zariadenie: nezariadený
Zateplený objekt: áno
Energetický certifikát: A
Okná: plastové
|
|
Kontaktovať inzerenta e-mailom
Kontaktovať e-mailom môže iba overený užívateľ.
Overenie je zadarmo.
Vaše telefónne číslo *
Kontaktovať e-mailom môže iba overený užívateľ.
Overenie je zadarmo.
Vaše telefónne číslo *