REZERVOVANÉ:4i byt+2 logg.;110 m2; Lučivná -V.TATRY, 160.000
- [17.10. 2025]Zmazať/ Upraviť/ Topovať























ADRIREAL v exkluzívnom zastúpení majiteľa Vám ponúka na predaj 4 izbový byt s 2 loggiami s rozlohou 110 m2 priamo v areáli Kúpele Lučivná - FAMILY RESORT pod štítmi Vysokých Tatier.
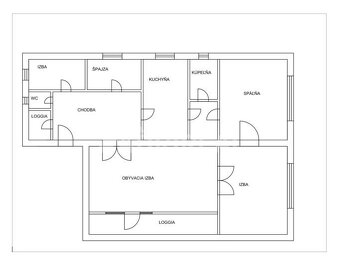
Byt sa nachádza na prvom poschodí v obytnom tehlovom dome. Pod týmto poschodím je obývané prízemie. Dispozične pozostáva z troch priestranných izieb, jednou menšou izbou, dvoma predsieňami, špajzou a kuchyňou, kúpeľňou a WC. Je v pôvodnom, ale zachovalom stave, slnečný, teplý a priestranný. Výhodou je vlastné plynové kúrenie, nízke náklady a možnosť rekonštrukcie podľa vlastných predstáv, alebo ideálna investičná voľba prerobiť na 2 byty.
Vyhľadávaná pokojná a tichá lokalita bytového domu priamo v areáli kúpeľov FAMILY REZORT Vám poskytne aktívny životný štýl v lone prírody. Liečebné domy, kúpalisko, wellness, reštaurácia s kaviarňou Bonsaj, Gurmánsky dom, kurty, ihriská.... Lyžiarske stredisko Lučivná v blízkosti, Lopušná Dolina - lyžiarske stredisko svojimi športovými zariadeniami poskytuje zimnú a letnú rekreáciu, 20 minút autom známe strediská cestovného ruchu Štrbské Pleso, Starý Smokovec, Tatranská Lomnica..
Okresné mesto Poprad vzdialené 11 km, letisko a diaľničný privádzač D1- 2 km. 5 km vzdialené mesto Svit- železničná doprava, stredné školy, veľké obchodné strediská Billa, Lidl, zdravotné strediská...
Obec Lučivná sa vyznačuje veľmi dobrou dostupnosťou a kompletnou občianskou vybavenosťou - Základná škola s materskou školou, pošta, kostol, obchod, reštaurácie, autobusová doprava, hotely, Kaštieľ Lučivná...
Nehnuteľnosť je zárukou príjemného dlhodobého či víkendového bývania, ale poskytne možnosť aj na zhodnotenie Vašich financií / prenájom, apartmán...
Kúpou je ihneď voľný.
Ak Vás táto ponuka zaujala neváhajte ma kontaktovať: Adriana Astalošová, astalosova@adrireal.sk, 0917 814 648.
Dodatok k cene: DOHODA MOŽNÁ, možnosť HÚ
Obytná plocha: 110m²
Celková rozloha: 110m²
Úžitková plocha: 110m²
Vlastníctvo: osobné
Stav: pôvodný
Odvoz odpadu: áno - separovaný
Plyn: áno
Kúpeľňa: áno
Vykurovanie: vlastné - plyn
Lódžia: áno - 2
Parkovanie: vonkajšie
Postavené z: tehla
Zariadenie: zariadený
Okná: drevené
Byt sa nachádza na prvom poschodí v obytnom tehlovom dome. Pod týmto poschodím je obývané prízemie. Dispozične pozostáva z troch priestranných izieb, jednou menšou izbou, dvoma predsieňami, špajzou a kuchyňou, kúpeľňou a WC. Je v pôvodnom, ale zachovalom stave, slnečný, teplý a priestranný. Výhodou je vlastné plynové kúrenie, nízke náklady a možnosť rekonštrukcie podľa vlastných predstáv, alebo ideálna investičná voľba prerobiť na 2 byty.
Vyhľadávaná pokojná a tichá lokalita bytového domu priamo v areáli kúpeľov FAMILY REZORT Vám poskytne aktívny životný štýl v lone prírody. Liečebné domy, kúpalisko, wellness, reštaurácia s kaviarňou Bonsaj, Gurmánsky dom, kurty, ihriská.... Lyžiarske stredisko Lučivná v blízkosti, Lopušná Dolina - lyžiarske stredisko svojimi športovými zariadeniami poskytuje zimnú a letnú rekreáciu, 20 minút autom známe strediská cestovného ruchu Štrbské Pleso, Starý Smokovec, Tatranská Lomnica..
Okresné mesto Poprad vzdialené 11 km, letisko a diaľničný privádzač D1- 2 km. 5 km vzdialené mesto Svit- železničná doprava, stredné školy, veľké obchodné strediská Billa, Lidl, zdravotné strediská...
Obec Lučivná sa vyznačuje veľmi dobrou dostupnosťou a kompletnou občianskou vybavenosťou - Základná škola s materskou školou, pošta, kostol, obchod, reštaurácie, autobusová doprava, hotely, Kaštieľ Lučivná...
Nehnuteľnosť je zárukou príjemného dlhodobého či víkendového bývania, ale poskytne možnosť aj na zhodnotenie Vašich financií / prenájom, apartmán...
Kúpou je ihneď voľný.
Ak Vás táto ponuka zaujala neváhajte ma kontaktovať: Adriana Astalošová, astalosova@adrireal.sk, 0917 814 648.
Dodatok k cene: DOHODA MOŽNÁ, možnosť HÚ
Obytná plocha: 110m²
Celková rozloha: 110m²
Úžitková plocha: 110m²
Vlastníctvo: osobné
Stav: pôvodný
Odvoz odpadu: áno - separovaný
Plyn: áno
Kúpeľňa: áno
Vykurovanie: vlastné - plyn
Lódžia: áno - 2
Parkovanie: vonkajšie
Postavené z: tehla
Zariadenie: zariadený
Okná: drevené
|
| |||||||||||||||||||||||||||||||
Kontaktovať inzerenta e-mailom
Kontaktovať e-mailom môže iba overený užívateľ.
Overenie je zadarmo.
Vaše telefónne číslo *
Kontaktovať e-mailom môže iba overený užívateľ.
Overenie je zadarmo.
Vaše telefónne číslo *
Podobné inzeráty
DELTA - BEZBARIÉROVÝ 2-IZBOVÝ BYT V PODTATRANSKEJ OÁZE POHOD - [23.10. 2025]REALITNÁ KANCELÁRIA DELTA PROPERTY – VÁŠ MIESTNY ŠPECIALISTA Vám exkluzívne ponúka na predaj priestranný 2-izbový byt v malebnej podtatranskej obci Lučivná, známej svojím relaxačným prostredím a skvelou dostupnosťou.
PREČO PRÁVE TENTO BYT?
Výmera: 66,55 m² vrátane veľkej murovanej pivnice
Lokalit ...
110 000 €
Poprad
059 31
059 31
234 x
Označiť zlý inzerát Chybnú kategóriu Ohodnotiť užívateľa Zmazať/Upraviť/Topovať


