Predaj rodinného domu v obci Hniezdne
- [17.10. 2025]Zmazať/ Upraviť/ Topovať









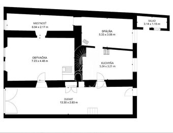
EXLUZÍVNE LEN U NÁS!!! Realitná kancelária Camino Reality Vám ponúka na predaj priestranný rodinný dom v radovej zástavbe v obci Hniezdne. Dom disponuje 5 miestnosťami a priestranným podkrovím, kde je možnosť vybudovania druhej bytovej jednotky. Dom si vyžaduje si kompletnú rekonštrukciu, je napojený na všetky inžinierske siete, pod prednou časťou domu sa nachádza klenbová pivnica. Za domom sa nachádza stodola a slnečný svahovitý pozemok. Výborná a kľudná lokalita s kompletnou občianskou vybavenosťou. Doporučujem!!!
Dom je možné vymeniť za jednoizbový alebo dvojizbový byt v Starej Ľubovni.
Zaujala Vás táto ponuka? Dohodnite si obhliadku telefonicky alebo emailom.
Dom je možné vymeniť za jednoizbový alebo dvojizbový byt v Starej Ľubovni.
Zaujala Vás táto ponuka? Dohodnite si obhliadku telefonicky alebo emailom.
|
|
Kontaktovať inzerenta e-mailom
Kontaktovať e-mailom môže iba overený užívateľ.
Overenie je zadarmo.
Vaše telefónne číslo *
Kontaktovať e-mailom môže iba overený užívateľ.
Overenie je zadarmo.
Vaše telefónne číslo *