BABONY TRE - PREDAJ Nebytový priestor, Račianske Mýto, Brati
- [17.10. 2025]Zmazať/ Upraviť/ Topovať








Babony TRE Vám prezentuje novo zrekonštruované obchodné a kancelárske priestory so služobným bytom na ul. Račianske Mýto v Bratislave.
DISPOZÍCIA:
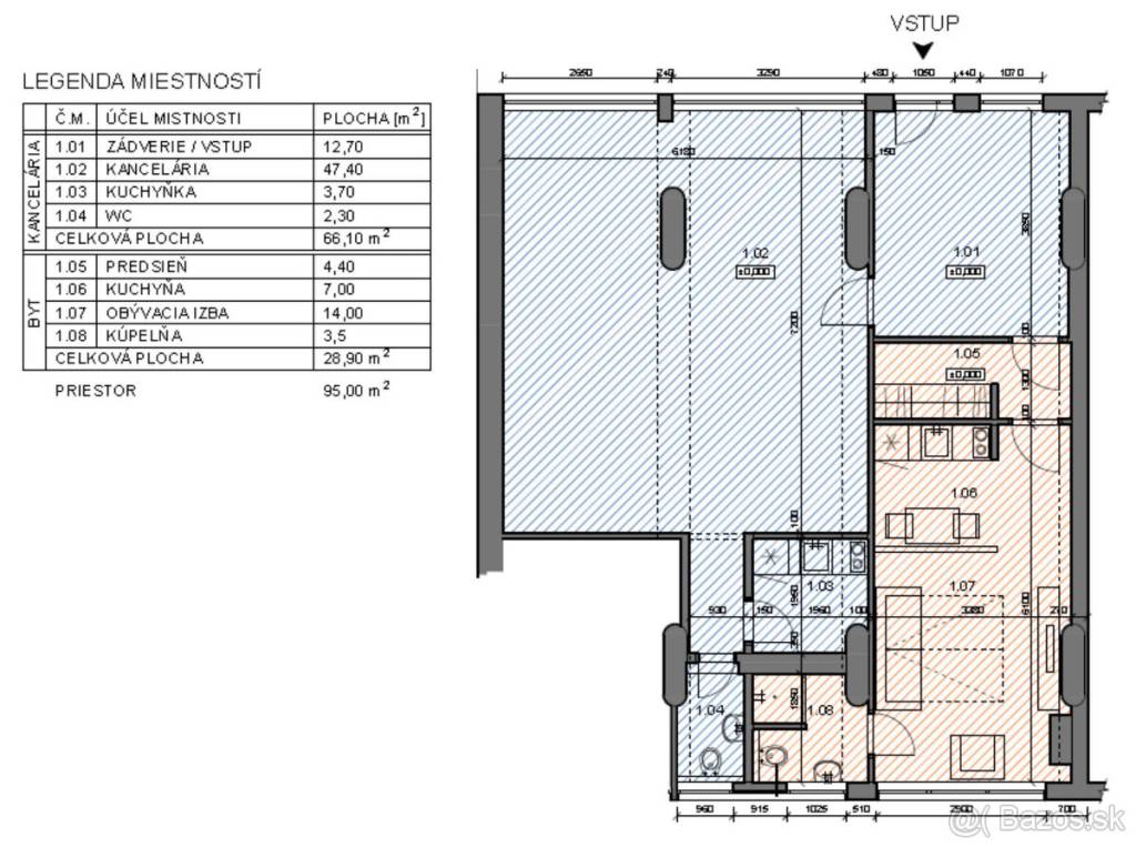
Nebytový priestor je dispozične rozdelený na dve časti, na kanceláriu a byt.
KANCELÁRIA:
- zádveria
- kancelársky priestor
- kuchyňa
- wc
Spolu má kancelária 66,10m2.
BYT:
- predsieň
- kuchyňa
- obývacia izba
- kúpeľňa
Spolu má byt 26,90m2.
LOKALITA: Priestor sa nachádza v Bratislave v obľúbenej časti Račianske mýto, v tesnej blízosti oddychového parku s fontánou, Trnavského mýta, v ktorého okolí je kompletná občianska vybavenosť - obchody, banky, poliklinika, reštaurácie,tržnica, MHD, Hlavná železničná stanica, autobusová stanica Nivy, OC Central, Zimný štadión Ondreja Nepelu a zaručuje výbornú dostupnosť do centra mesta ako aj ľahké napojenie na hlavné ťahy mesta.
VÝHODY:
- lokalita: Račianske Mýto - Bratislava 3
- podlahová plocha: 95 m2
- výklady aj vchod z chodníka
- vlastné elektrické kúrenie
- vlastné meranie voda / elektrika
- káblový internet UPC
- zariadene
- výborná dostupnosť autom aj MHD
- Račianské mýto 100 m
- možnosť parkovať priamo pred vchodom
Priestor je možné prenajímať, čo môže byť zaujímavé pre tých, čo uvažujú nad kúpou z investičného hľadiska.
CENA DOHODOU
O kompletné profesionálne služby vrátane sprocesovania / spracovania kúpy, predaja alebo prenájmu nehnuteľnosti a samozrejme aj zabezpečenia financovania kúpy nehnuteľnosti sa stará kancelária Babony TRE. Prípravu nehnuteľnosti na fotenie, fotografa, grafika či homestageing zabezpečuje rovnako naša kancelária.
Tešíme sa na Vás
Team BABONY TRE
Dodatok k cene: Dohoda
Obytná plocha: 100m²
Celková rozloha: 95m²
Úžitková plocha: 100m²
Stav: po rekonštrukcii
Odvoz odpadu: áno
Voda: neuvedené
El. napätie: 230V
Internet: optika
Kúpeľňa: áno
Vykurovanie: vlastné - elektrické
Parkovanie: verejné
Postavené z: Zmiešané
Zateplený objekt: áno
Energetický certifikát: nie
Bezbariérový prístup : áno
DISPOZÍCIA:
Nebytový priestor je dispozične rozdelený na dve časti, na kanceláriu a byt.
KANCELÁRIA:
- zádveria
- kancelársky priestor
- kuchyňa
- wc
Spolu má kancelária 66,10m2.
BYT:
- predsieň
- kuchyňa
- obývacia izba
- kúpeľňa
Spolu má byt 26,90m2.
LOKALITA: Priestor sa nachádza v Bratislave v obľúbenej časti Račianske mýto, v tesnej blízosti oddychového parku s fontánou, Trnavského mýta, v ktorého okolí je kompletná občianska vybavenosť - obchody, banky, poliklinika, reštaurácie,tržnica, MHD, Hlavná železničná stanica, autobusová stanica Nivy, OC Central, Zimný štadión Ondreja Nepelu a zaručuje výbornú dostupnosť do centra mesta ako aj ľahké napojenie na hlavné ťahy mesta.
VÝHODY:
- lokalita: Račianske Mýto - Bratislava 3
- podlahová plocha: 95 m2
- výklady aj vchod z chodníka
- vlastné elektrické kúrenie
- vlastné meranie voda / elektrika
- káblový internet UPC
- zariadene
- výborná dostupnosť autom aj MHD
- Račianské mýto 100 m
- možnosť parkovať priamo pred vchodom
Priestor je možné prenajímať, čo môže byť zaujímavé pre tých, čo uvažujú nad kúpou z investičného hľadiska.
CENA DOHODOU
O kompletné profesionálne služby vrátane sprocesovania / spracovania kúpy, predaja alebo prenájmu nehnuteľnosti a samozrejme aj zabezpečenia financovania kúpy nehnuteľnosti sa stará kancelária Babony TRE. Prípravu nehnuteľnosti na fotenie, fotografa, grafika či homestageing zabezpečuje rovnako naša kancelária.
Tešíme sa na Vás
Team BABONY TRE
Dodatok k cene: Dohoda
Obytná plocha: 100m²
Celková rozloha: 95m²
Úžitková plocha: 100m²
Stav: po rekonštrukcii
Odvoz odpadu: áno
Voda: neuvedené
El. napätie: 230V
Internet: optika
Kúpeľňa: áno
Vykurovanie: vlastné - elektrické
Parkovanie: verejné
Postavené z: Zmiešané
Zateplený objekt: áno
Energetický certifikát: nie
Bezbariérový prístup : áno
|
| |||||||||||||||||||||||||||||||
Kontaktovať inzerenta e-mailom
Kontaktovať e-mailom môže iba overený užívateľ.
Overenie je zadarmo.
Vaše telefónne číslo *
Kontaktovať e-mailom môže iba overený užívateľ.
Overenie je zadarmo.
Vaše telefónne číslo *