Predaj 2 izb. novostavba v Bratislave mestskej časti Ružinov
- [17.10. 2025]Zmazať/ Upraviť/ Topovať











XEMAR (milan.mlcal@xemar.sk alebo 0915 870 350), ponúka na predaj 2 izbovú novostavbu v meste Bratislava s parkovaním.
Nehnuteľnosť sa nachádza v obľúbenej Bratislavskej mestskej časti Ružinov.
Byt sa predáva kompletne zariadený.
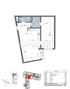
Nehnuteľnosť pozostáva:
vstup
kuchyňa prepojená s jedálňou a s obývacou miestnosťou (výstup na balkón)
kuchynská linka na mieru, vstavané spotrebiče
izba
šatník
kúpeľňa
samostatné WC
balkón
samostatné kúrenie
výmera 64,24 m² spolu s balkónom
5. poschodie
ulica Galvaniho
Vrátane ceny je zahrnuté:
1 x pivničná kobka
1 x vnútorný parking
1 x vonkajšie státie
Lokalita:
V blízkom okolí nájdete materské, základné aj stredné školy, miesta na šport aj relax, kaviarne, reštaurácie aj nákupné centrá.
Určite oceníte blízkosť zástavok MHD, rýchly prístup na obchvat, alebo na letisko. Kompletná občianska vybavenosť.
Nehnuteľnosť sa nachádza v obľúbenej Bratislavskej mestskej časti Ružinov.
Byt sa predáva kompletne zariadený.
Nehnuteľnosť pozostáva:
vstup
kuchyňa prepojená s jedálňou a s obývacou miestnosťou (výstup na balkón)
kuchynská linka na mieru, vstavané spotrebiče
izba
šatník
kúpeľňa
samostatné WC
balkón
samostatné kúrenie
výmera 64,24 m² spolu s balkónom
5. poschodie
ulica Galvaniho
Vrátane ceny je zahrnuté:
1 x pivničná kobka
1 x vnútorný parking
1 x vonkajšie státie
Lokalita:
V blízkom okolí nájdete materské, základné aj stredné školy, miesta na šport aj relax, kaviarne, reštaurácie aj nákupné centrá.
Určite oceníte blízkosť zástavok MHD, rýchly prístup na obchvat, alebo na letisko. Kompletná občianska vybavenosť.
|
|
Kontaktovať inzerenta e-mailom
Kontaktovať e-mailom môže iba overený užívateľ.
Overenie je zadarmo.
Vaše telefónne číslo *
Kontaktovať e-mailom môže iba overený užívateľ.
Overenie je zadarmo.
Vaše telefónne číslo *