- PREDAJ, novostavba 3i útulného radového RD v štandarde, RA
- [17.10. 2025]Zmazať/ Upraviť/ Topovať











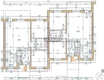
Na predaj, novostavba 3i prízemného radového rodinného domu v štandarde s možnosťou dokončenia aj v štádiu na kľúč s terénnymi úpravami, v novej výstavbovej lokalite šiestich radových rodinných domov, obec Rastislavice, časť Kalvín. Radový rodinný dom – bungalov, s celkovou úžitkovou plochou 90 m2 a je situovaná na slnečnom pozemku s celkovou výmerou ideálnych od 314 m2 do 390 m2. Útulný zateplený bungalov v holodome s premyslenou dispozíciou pozostáva vstupným zádverim so vstupnou toaletou a priestorom na šatníkovú skriňu. Dennú časť ďalej tvorí praktická kuchyňa s murovanou komorou a s jedálenským priestorom. Slnečná obývacia izba s možnosťou krbu s výstupom na zadnú terasu s výhľadom do zelene a záhrady s vlastnou studňou. Nočná časť je tvorená dvomi komfortnými izbami a priestrannou kúpeľňou s druhou toaletou, vaňou, sprchovým kútom a priestorom na práčku. Príjemne orientovaný pozemok v tichej lokalite, ideálnym tvarom, na začiatku obce dotvárajú rodinnú idylku. Sympatická obec Rastislavice s dobrým napojením na diaľnicu, s poľovníckym združením, klubom mladých či dôchodcov, stolnotenisovým a futbalovým klubom spájajúca pokojný rodinný život a ruch blízkej Nitry či Nových Zámkov ponúka pohodlné bývanie pre každého klienta. Možnosť prikúpiť aj ďalší zo šiestich radových rodinných domov v rovnakom stave, pre rodinu či kamarátov, VŠETKO s možnosťou dokončenia aj na kľuč. (viď. ilustračné vizualizácie) Cena s DPH. TOPPONUKA
Zastavaná plocha: 90m²
Obytná plocha: 90m²
Celková rozloha: 90m²
Rozloha pozemku: 314m²
Úžitková plocha: 90m²
Vlastníctvo: osobné
El. napätie: 230/400V
Kanalizácia: žumpa
Internet: lokálny poskytovateľ
Kúpeľňa: vaňa a sprchovací kút
Vykurovanie: vlastné - elektrické
Pivnica: nie
Parkovanie: vlastné vyhradené
Inžinierske siete: áno
Postavené z: tehla
Zateplený objekt: áno
Krb: áno
Energetický certifikát: nie
Okná: plastové
Terén: rovina
Prístupová cesta: asfaltová cesta
Zastavaná plocha: 90m²
Obytná plocha: 90m²
Celková rozloha: 90m²
Rozloha pozemku: 314m²
Úžitková plocha: 90m²
Vlastníctvo: osobné
El. napätie: 230/400V
Kanalizácia: žumpa
Internet: lokálny poskytovateľ
Kúpeľňa: vaňa a sprchovací kút
Vykurovanie: vlastné - elektrické
Pivnica: nie
Parkovanie: vlastné vyhradené
Inžinierske siete: áno
Postavené z: tehla
Zateplený objekt: áno
Krb: áno
Energetický certifikát: nie
Okná: plastové
Terén: rovina
Prístupová cesta: asfaltová cesta
|
|
Kontaktovať inzerenta e-mailom
Kontaktovať e-mailom môže iba overený užívateľ.
Overenie je zadarmo.
Vaše telefónne číslo *
Kontaktovať e-mailom môže iba overený užívateľ.
Overenie je zadarmo.
Vaše telefónne číslo *