EXKLUZÍVNE Projekt Medová lúka, atraktívny stavebný po
- [17.10. 2025]Zmazať/ Upraviť/ Topovať










EXKLUZÍVNE Vám ponúkame na predaj slnečný rovinatý pozemok o rozlohe 555,17 m2, nachádzajúci sa v miestnej časti Svederník - Marček. Atraktívna lokalita známa výstavbou nadštandardných rodinných domov, romantickou kaplnkou i krásnou prírodou na dosah sa nachádza iba 9 minút jazdy od Žiliny.
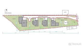
PROJEKT MEDOVÁ LÚKA: predstavuje súbor 4 + 1 rovinatých pozemkov pre výstavbu 4 rodinných domov so spoločnou prístupovou cestou. Pozemok, ktorý je umiestnený najbližšie k hlavnej cestnej komunikácii, je v súčasnosti plánovaný ako spoločná komunitná časť projektu.
VÝNIMOČNÁ PRÍLEŽITOSŤ: predaj pozemkov projektu je čerstvo zahájený, máte teda výnimočnú príležitosť kúpy viacerých, napríklad susediacich pozemkov alebo môžete investovať do kúpy pozemkov celého projektu.
ROZLOHA POZEMKU: 755,17 m2, vrátane podielu 200 m2 na prístupovej ceste.
VLASTNOSTI POZMEKU: slnečný rovinatý pozemok s veľkou mierou súkromia, umiestnený v rade pozemkov s vlastnou prístupovou cestou.
TECHNICKÉ ÚDAJE: pozemok je zahrnutý v územnom pláne na výstavbu rodinných domov, stavebné povolenie bude k dispozícii v marci – apríli 2025.
Disponuje prístupom k technicky zabezpečeným cestným komunikáciám.
Súkromná príjazdová cesta bude vo vlastníctve majiteľov pozemkov projektu Medová lúka. K jej spevneniu konštrukčnou vrstvou makadamu sa zaväzuje predávajúci.
V réžii predávajúceho je dobudovanie inžinierskych sietí: elektrina, voda.
LOKALITA
Ponúkaný pozemok je situovaný v rovinatom úseku miestnej časti Marček obce Svederník, obľúbenej lokalite žilinského regiónu. Historické centrum krajského mesta Žilina je dostupné do 15 minút, mesto Bytča je vzdialené 12 minút jazdy.
Obec pre svojich obyvateľov zabezpečuje pestrú občiansku vybavenosť: materská škola so školskou jedálňou, predajne potravín a ďalšieho sortimentu, prevádzky s rozmanitými službami, gastro zariadenia, kostol, verejná knižnica a iné.
Okolité lúky sú rajom pre miestnych včelárov, neďaleké lesy vyhľadávanými destináciami nadšencov hubárčenia. Len pár kilometrov je vzdialená rozhľadňa Svederník, s pôsobivými výhľadmi na okolité pohoria, priehradu Hričov i rieku Váh.
K dispozícii sú pravidelné spoje autobusovej dopravy, prístupy na rýchlostnú cestnú komunikáciu pre smery Bratislava – Košice – Čadca sú dostupné do 8 minút.
Cena pozemku k RD č. 3: 172 €/ m2, teda 95.460 € za celý pozemok, bez podielu na prístupovej ceste.
Nájdete na stránke realityMGM.sk pod ID ZA015491.
Call centrum tel: 0910 86 11 86.
PROJEKT MEDOVÁ LÚKA: predstavuje súbor 4 + 1 rovinatých pozemkov pre výstavbu 4 rodinných domov so spoločnou prístupovou cestou. Pozemok, ktorý je umiestnený najbližšie k hlavnej cestnej komunikácii, je v súčasnosti plánovaný ako spoločná komunitná časť projektu.
VÝNIMOČNÁ PRÍLEŽITOSŤ: predaj pozemkov projektu je čerstvo zahájený, máte teda výnimočnú príležitosť kúpy viacerých, napríklad susediacich pozemkov alebo môžete investovať do kúpy pozemkov celého projektu.
ROZLOHA POZEMKU: 755,17 m2, vrátane podielu 200 m2 na prístupovej ceste.
VLASTNOSTI POZMEKU: slnečný rovinatý pozemok s veľkou mierou súkromia, umiestnený v rade pozemkov s vlastnou prístupovou cestou.
TECHNICKÉ ÚDAJE: pozemok je zahrnutý v územnom pláne na výstavbu rodinných domov, stavebné povolenie bude k dispozícii v marci – apríli 2025.
Disponuje prístupom k technicky zabezpečeným cestným komunikáciám.
Súkromná príjazdová cesta bude vo vlastníctve majiteľov pozemkov projektu Medová lúka. K jej spevneniu konštrukčnou vrstvou makadamu sa zaväzuje predávajúci.
V réžii predávajúceho je dobudovanie inžinierskych sietí: elektrina, voda.
LOKALITA
Ponúkaný pozemok je situovaný v rovinatom úseku miestnej časti Marček obce Svederník, obľúbenej lokalite žilinského regiónu. Historické centrum krajského mesta Žilina je dostupné do 15 minút, mesto Bytča je vzdialené 12 minút jazdy.
Obec pre svojich obyvateľov zabezpečuje pestrú občiansku vybavenosť: materská škola so školskou jedálňou, predajne potravín a ďalšieho sortimentu, prevádzky s rozmanitými službami, gastro zariadenia, kostol, verejná knižnica a iné.
Okolité lúky sú rajom pre miestnych včelárov, neďaleké lesy vyhľadávanými destináciami nadšencov hubárčenia. Len pár kilometrov je vzdialená rozhľadňa Svederník, s pôsobivými výhľadmi na okolité pohoria, priehradu Hričov i rieku Váh.
K dispozícii sú pravidelné spoje autobusovej dopravy, prístupy na rýchlostnú cestnú komunikáciu pre smery Bratislava – Košice – Čadca sú dostupné do 8 minút.
Cena pozemku k RD č. 3: 172 €/ m2, teda 95.460 € za celý pozemok, bez podielu na prístupovej ceste.
Nájdete na stránke realityMGM.sk pod ID ZA015491.
Call centrum tel: 0910 86 11 86.
|
|
Kontaktovať inzerenta e-mailom
Kontaktovať e-mailom môže iba overený užívateľ.
Overenie je zadarmo.
Vaše telefónne číslo *
Kontaktovať e-mailom môže iba overený užívateľ.
Overenie je zadarmo.
Vaše telefónne číslo *