Haly na predaj Trnava 1 700 m2
- TOP - [20.10. 2025]Zmazať/ Upraviť/ Topovať







Reality AK ponúka na prenájom sklady/výrobné haly v obci Dolná Krupá okres Trnava v priemyselnej zóne.
Jedná sa o súbor 3 hál s príslušenstvom a pozemok k tomu. Na pozemok je prístup z asfaltovej cesty.
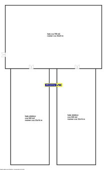
Haly: spolu plocha hál cca 1 700 m2
1. hala 695 m2, rozmer 30,4 x 22,85 x 7,55 m, železo betónová konštrukcia, zateplená strecha, nová elektrina,
2. hala 490 m2, rozmer 35 x 14 x 7,15 m, oblúková, železo betónová konštrukcia, vstup z haly 695 m2
3. hala 490 m2, rozmer 35 x 14 x 7,15 m, oblúková, železo betónová konštrukcia, vstup z haly 695 m2
Pozemok plocha cca 11 000 m2
Možnosť dokúpiť ešte pozemok cca 4 700 m2
Inžinierske siete elektrika je pripojená aj pre vysokú spotrebu.
Voda je studňa.
Spojenie na diaľničný okruh za 20 minút.
Pripojenie autobusovej zastávky: 100 m.
Cenu je možné uhradiť na splátky: % platba vopred + zostatok mesačná splátka na dobu 3 rokov.
Príďte sa pozrieť a predložte svoju ponuku.
Cena nehnuteľnosti zahŕňa kompletný realitný a právny servis vrátane poplatkov.
Dodatok k cene: , vrátane provízie
Zastavaná plocha: 1700m²
Obytná plocha: 1700m²
Celková rozloha: 1700m²
Úžitková plocha: 1700m²
Vlastníctvo: osobné
Stav: pôvodný
El. napätie: 230/400V
Plyn: nie
Kanalizácia: žumpa
Kúpeľňa: áno
Postavené z: Zmiešané
Energetický certifikát: nie
Jedná sa o súbor 3 hál s príslušenstvom a pozemok k tomu. Na pozemok je prístup z asfaltovej cesty.
Haly: spolu plocha hál cca 1 700 m2
1. hala 695 m2, rozmer 30,4 x 22,85 x 7,55 m, železo betónová konštrukcia, zateplená strecha, nová elektrina,
2. hala 490 m2, rozmer 35 x 14 x 7,15 m, oblúková, železo betónová konštrukcia, vstup z haly 695 m2
3. hala 490 m2, rozmer 35 x 14 x 7,15 m, oblúková, železo betónová konštrukcia, vstup z haly 695 m2
Pozemok plocha cca 11 000 m2
Možnosť dokúpiť ešte pozemok cca 4 700 m2
Inžinierske siete elektrika je pripojená aj pre vysokú spotrebu.
Voda je studňa.
Spojenie na diaľničný okruh za 20 minút.
Pripojenie autobusovej zastávky: 100 m.
Cenu je možné uhradiť na splátky: % platba vopred + zostatok mesačná splátka na dobu 3 rokov.
Príďte sa pozrieť a predložte svoju ponuku.
Cena nehnuteľnosti zahŕňa kompletný realitný a právny servis vrátane poplatkov.
Dodatok k cene: , vrátane provízie
Zastavaná plocha: 1700m²
Obytná plocha: 1700m²
Celková rozloha: 1700m²
Úžitková plocha: 1700m²
Vlastníctvo: osobné
Stav: pôvodný
El. napätie: 230/400V
Plyn: nie
Kanalizácia: žumpa
Kúpeľňa: áno
Postavené z: Zmiešané
Energetický certifikát: nie
|
|
Kontaktovať inzerenta e-mailom
Kontaktovať e-mailom môže iba overený užívateľ.
Overenie je zadarmo.
Vaše telefónne číslo *
Kontaktovať e-mailom môže iba overený užívateľ.
Overenie je zadarmo.
Vaše telefónne číslo *