VYMEŇ SUSEDA - PRENÁJOM ADMINISTRATÍVNYCH / KANCELÁRSKYCH P
- [17.10. 2025]Zmazať/ Upraviť/ Topovať











Typ: Kancelárske priestory
Ulica: Kopčianska
Obec: Bratislava-Petržalka
Ak hľadáte kancelárie či iné administratívne priestory na prenájom, naša ponuka v Petržalke je pre Vás skvelým riešením!!!
Miestna časť Petržalka patrí v súčasnosti k najrýchlejšie sa rozvíjajúcim častiam Bratislavy, pričom má výbornú strategickú lokalitu, vybavenosť a blízkosť dôležitých hlavných ťahov.
KANCELÁRSKE PRIESTORY: Ponúkame Vám administratívne priestory na 2 podlažiach v rôznych úpravách - open space, kancelárie, ale aj nedokončený priestor, ktorý môže byť dokončený napríklad podľa Vašej predstavy.
Kancelárie v bratislavskej Petržalke na Kopčianskej ulici sú k dispozícii v nasledovných výmerách:
II. NP prevádzková časť:
miestnosť č. 358 /klimatizácia, bez umývadla / + miestnosť č. 359 /klimatizácia, s umývadlom/– výmera 19,03m2 + 42,46 m2 = 61,49 m2 - cena: 7,76 € + DPH (vrátane energií)
miestnosť č. 360 + 361 /klimatizácia/– výmera 20,86m2 + 64,29 m2 = 85,15 m2 - cena: 7,76 € + DPH (vrátane energií)
III. NP administratívna časť:
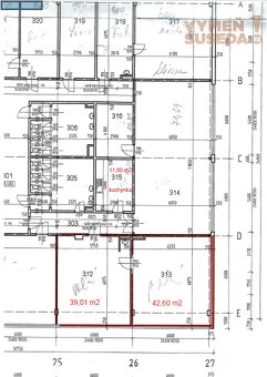
miestnosť č. 312 – výmera 39,01m2 - cena: 8,96€ + DPH (vrátane energií)
miestnosť č. 313 – výmera 42,60 m2 - cena: 8,96€ + DPH (vrátane energií)
/tieto miestnosti sú prenajímané spolu, nakoľko majú len 1 vchod/
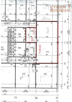
miestnosť č. 314 + 316 – výmera 83,50 m2 - cena: 8,96€ + DPH (vrátane energií)
/miestnosť 316 je sklad 11,81 m2/ + možnosť využiť kuchynku 11,60 m2/
Všetky miestnosti sa dajú uzavrieť – komplet je výmera 165,11 m2
ČO VÁM PONÚKAME?
- Flexibilné podmienky podľa Vašich potrieb (na úpravách priestoru sa dá dohodnúť)
- Kamerový systém
- Recepcia s SBS k dispozícii od 5,30 – 21,30 hod
- Neobmedzený prístup 24/7 do priestoru pomocou čipu
- Parkovanie /prenájom parkovacieho boxu: 50€/mesiac/
- Možnosť prenájmu reprezentačných priestorov – veľká a malá zasadacia miestnosť
- Možnosť založenia schránky v cene
- Upratovanie spoločných priestorov
LOKALITA:
- Kompletná občianska vybavenosť v pešej dostupnosti /reštaurácia, obchodný reťazec, vlaková stanica, banka, potraviny..../
- Zastávky a linky MHD v pešej vzdialenosti
- Dobré pripojenie na diaľničný obchvat
CENOVÉ PODMIENKY:
- Depozit vo výške 2 mesačných nájmov
- Províziu RK neplatíte!!!!
Nájdite pre svoje podnikanie ideálny priestor, ktorý vám bude vyhovovať po každej stránke!!!!
Pre obhliadku nás neváhajte kontaktovať!!!!
Status: aktívne
Vlastníctvo: osobné
Úžitková plocha: 61.49 m2
Zastavaná plocha: 61.49 m2
Stav: čiastočne prerobený
Celková plocha: 61.49 m2
Inžinierske siete: áno
Ulica: Kopčianska
Obec: Bratislava-Petržalka
Ak hľadáte kancelárie či iné administratívne priestory na prenájom, naša ponuka v Petržalke je pre Vás skvelým riešením!!!
Miestna časť Petržalka patrí v súčasnosti k najrýchlejšie sa rozvíjajúcim častiam Bratislavy, pričom má výbornú strategickú lokalitu, vybavenosť a blízkosť dôležitých hlavných ťahov.
KANCELÁRSKE PRIESTORY: Ponúkame Vám administratívne priestory na 2 podlažiach v rôznych úpravách - open space, kancelárie, ale aj nedokončený priestor, ktorý môže byť dokončený napríklad podľa Vašej predstavy.
Kancelárie v bratislavskej Petržalke na Kopčianskej ulici sú k dispozícii v nasledovných výmerách:
II. NP prevádzková časť:
miestnosť č. 358 /klimatizácia, bez umývadla / + miestnosť č. 359 /klimatizácia, s umývadlom/– výmera 19,03m2 + 42,46 m2 = 61,49 m2 - cena: 7,76 € + DPH (vrátane energií)
miestnosť č. 360 + 361 /klimatizácia/– výmera 20,86m2 + 64,29 m2 = 85,15 m2 - cena: 7,76 € + DPH (vrátane energií)
III. NP administratívna časť:
miestnosť č. 312 – výmera 39,01m2 - cena: 8,96€ + DPH (vrátane energií)
miestnosť č. 313 – výmera 42,60 m2 - cena: 8,96€ + DPH (vrátane energií)
/tieto miestnosti sú prenajímané spolu, nakoľko majú len 1 vchod/
miestnosť č. 314 + 316 – výmera 83,50 m2 - cena: 8,96€ + DPH (vrátane energií)
/miestnosť 316 je sklad 11,81 m2/ + možnosť využiť kuchynku 11,60 m2/
Všetky miestnosti sa dajú uzavrieť – komplet je výmera 165,11 m2
ČO VÁM PONÚKAME?
- Flexibilné podmienky podľa Vašich potrieb (na úpravách priestoru sa dá dohodnúť)
- Kamerový systém
- Recepcia s SBS k dispozícii od 5,30 – 21,30 hod
- Neobmedzený prístup 24/7 do priestoru pomocou čipu
- Parkovanie /prenájom parkovacieho boxu: 50€/mesiac/
- Možnosť prenájmu reprezentačných priestorov – veľká a malá zasadacia miestnosť
- Možnosť založenia schránky v cene
- Upratovanie spoločných priestorov
LOKALITA:
- Kompletná občianska vybavenosť v pešej dostupnosti /reštaurácia, obchodný reťazec, vlaková stanica, banka, potraviny..../
- Zastávky a linky MHD v pešej vzdialenosti
- Dobré pripojenie na diaľničný obchvat
CENOVÉ PODMIENKY:
- Depozit vo výške 2 mesačných nájmov
- Províziu RK neplatíte!!!!
Nájdite pre svoje podnikanie ideálny priestor, ktorý vám bude vyhovovať po každej stránke!!!!
Pre obhliadku nás neváhajte kontaktovať!!!!
Status: aktívne
Vlastníctvo: osobné
Úžitková plocha: 61.49 m2
Zastavaná plocha: 61.49 m2
Stav: čiastočne prerobený
Celková plocha: 61.49 m2
Inžinierske siete: áno
|
|
Kontaktovať inzerenta e-mailom
Kontaktovať e-mailom môže iba overený užívateľ.
Overenie je zadarmo.
Vaše telefónne číslo *
Kontaktovať e-mailom môže iba overený užívateľ.
Overenie je zadarmo.
Vaše telefónne číslo *