BUDOVA - Topoľčany, centrum
- [16.10. 2025]Zmazať/ Upraviť/ Topovať























V centre mesta Topoľčany máme na predaj dvojpodlažnú budovu situovanú na rohu ulíc Tovarnícka a 17. novembra. Objekt má výbornú viditeľnosť aj dopravnú dostupnosť.
Budova bola postavená v prvej polovici 20. storočia a priebežne prechádzala rekonštrukciami. Má zachovaný pôvodný charakter, pričom niektoré časti – ako nová strešná krytina, betónová podlaha na poschodí či nové schody – už boli obnovené. Vymenené boli aj drevené okná a fasáda. Interiér však vo väčšine ostáva v pôvodnom stave, čo dáva novému majiteľovi priestor na prispôsobenie podľa vlastných predstáv.
Prízemie (164 m²) – otvorený priestor, využívaný ako predajňa
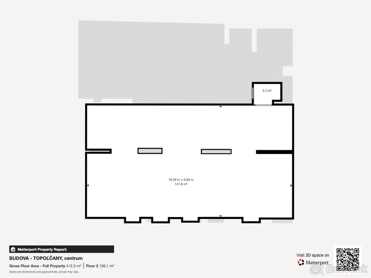
1. poschodie (145 m²) – otvorený priestor, s novou betónovou podlahou a schodiskom, vhodný na rekonštrukciu
Podkrovie – možnosť rozšírenia úžitkovej plochy
Prekrytý dvor/sklad (74 m²) – využiteľný aj ako parkovanie
Pozemok má 274 m2.
Celková plocha budovy je 384 m² (vrátane prekrytého dvora).
Budova je napojená na všetky inžinierske siete. Konštrukčne ide o stavbu z klasických materiálov. V minulosti slúžila ako rodinný dom, neskôr ako obchodný priestor. Dispozične je možné objekt rozdeliť na dve samostatné jednotky.
3D obhliadka
https://my.matterport.com/show/?m=giLx1enNaDj
Budova bola postavená v prvej polovici 20. storočia a priebežne prechádzala rekonštrukciami. Má zachovaný pôvodný charakter, pričom niektoré časti – ako nová strešná krytina, betónová podlaha na poschodí či nové schody – už boli obnovené. Vymenené boli aj drevené okná a fasáda. Interiér však vo väčšine ostáva v pôvodnom stave, čo dáva novému majiteľovi priestor na prispôsobenie podľa vlastných predstáv.
Prízemie (164 m²) – otvorený priestor, využívaný ako predajňa
1. poschodie (145 m²) – otvorený priestor, s novou betónovou podlahou a schodiskom, vhodný na rekonštrukciu
Podkrovie – možnosť rozšírenia úžitkovej plochy
Prekrytý dvor/sklad (74 m²) – využiteľný aj ako parkovanie
Pozemok má 274 m2.
Celková plocha budovy je 384 m² (vrátane prekrytého dvora).
Budova je napojená na všetky inžinierske siete. Konštrukčne ide o stavbu z klasických materiálov. V minulosti slúžila ako rodinný dom, neskôr ako obchodný priestor. Dispozične je možné objekt rozdeliť na dve samostatné jednotky.
3D obhliadka
https://my.matterport.com/show/?m=giLx1enNaDj
|
| |||||||||||||||||||||||||||||||
Kontaktovať inzerenta e-mailom
Kontaktovať e-mailom môže iba overený užívateľ.
Overenie je zadarmo.
Vaše telefónne číslo *
Kontaktovať e-mailom môže iba overený užívateľ.
Overenie je zadarmo.
Vaše telefónne číslo *
Podobné inzeráty
Na predaj budova - obchodné priestory v srdci Topoľčian - [9.11. 2025]Hľadáte ideálne miesto pre vaše podnikanie v Topoľčanoch? Ponúkame vám jedinečnú príležitosť zakúpiť nehnuteľnosť s pozemkom vo výlučnom vlastníctve, čo vám zabezpečí stabilitu a kontrolu nad prevádzkou. Táto budova s úžitkovou plochou 74 m2, ktorá sa momentálne využíva ako bar, sa nachádza priamo v ...
180 000 €
Topoľčany
955 01
955 01
57 x
Označiť zlý inzerát Chybnú kategóriu Ohodnotiť užívateľa Zmazať/Upraviť/Topovať
Polyfunkčná budova Topoľčany / Na PREDAJ - [1.10. 2025]Ponúkame Vám na predaj polyfunkčnú budovu v blizkosti centra mesta Topoľčany na ul . M. Rázusa. Objekt je umiestnený priamo v tesnej blízkosti autobusovej a vlakovej stanici . Jedná sa o objekt po rekonštrukcii , ktorá bola v roku 2011 . Hlavná stavba postavená v roku 1970 . Skelet stavby je želez ...
590 000 €
Topoľčany
955 01
955 01
191 x
Označiť zlý inzerát Chybnú kategóriu Ohodnotiť užívateľa Zmazať/Upraviť/Topovať
Budova blízko centra Topoľčany / PREDAJ - [1.10. 2025]Ponúkame Vám na predaj komerčnú a prevádzkovú budovu v meste Topoľčany na ulici Šafárikova. Jedná sa o budovu , ktorá je postavená na pozemku o rozlohe 662 m2 . Má dve podlažia , bola využívaná na podnikanie , má výbornú polohu dostupnú i z autobusovej , vlakovej stanice. V roku 1996 bola komplet ...
615 000 €
Topoľčany
955 01
955 01
113 x
Označiť zlý inzerát Chybnú kategóriu Ohodnotiť užívateľa Zmazať/Upraviť/Topovať


