Na predaj RD v Starej Myjave - ideálny na chalupu na Myjavs
- [16.10. 2025]Zmazať/ Upraviť/ Topovať
























Bond Reality ponúka na predaj rodinný dom nachádzajúci sa v krásnej rekreačnej oblasti Stará Myjava, blízkosti jazera a lyžiarskeho strediska, obklopený zeleňou.
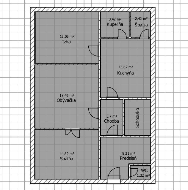
Dom stojí na priestrannom pozemku s výmerou 20 árov, čo poskytuje dostatok priestoru na oddych aj pestovanie či chov, alebo postavenia ďalšieho domu. Súčasťou pozemku je aj hospodárska budova. Celková rozloha obytnej plochy je 81,65m2.
Dispozícia domu:
vstupná chodba
kuchyňa
obývacia izba
spálňa
kúpeľňa a samostatné WC
v podkroví sa nachádza manzardová izba
dom je celý podpivničený
Inžinierske siete a vybavenie:
ústredné kúrenie (možnosť aj na tuhé palivo)
napojenie na vodovod
dobrá dostupnosť
Táto nehnuteľnosť je ideálna na víkendové pobyty, chalupárčenie či celoročné bývanie v krásnom prírodnom prostredí.
Dom stojí na priestrannom pozemku s výmerou 20 árov, čo poskytuje dostatok priestoru na oddych aj pestovanie či chov, alebo postavenia ďalšieho domu. Súčasťou pozemku je aj hospodárska budova. Celková rozloha obytnej plochy je 81,65m2.
Dispozícia domu:
vstupná chodba
kuchyňa
obývacia izba
spálňa
kúpeľňa a samostatné WC
v podkroví sa nachádza manzardová izba
dom je celý podpivničený
Inžinierske siete a vybavenie:
ústredné kúrenie (možnosť aj na tuhé palivo)
napojenie na vodovod
dobrá dostupnosť
Táto nehnuteľnosť je ideálna na víkendové pobyty, chalupárčenie či celoročné bývanie v krásnom prírodnom prostredí.
  | 
  | |||||||||||||||||||||||||||||||
Kontaktovať inzerenta e-mailom
Kontaktovať e-mailom môže iba overený užívateľ.
Overenie je zadarmo.
Vaše telefónne číslo *
Kontaktovať e-mailom môže iba overený užívateľ.
Overenie je zadarmo.
Vaše telefónne číslo *



