3D prenájom nebyt. priestorov, v budove Rybársky cech, Žižko
- [15.10. 2025]Zmazať/ Upraviť/ Topovať






























POZRITE SI 3D VIRTUÁLNU PREHLIADKU
Realitná kancelária Grahams Vám v zastúpení klienta ponúka na prenájom samostatne stojacu historickú budovu , jej časť, s celkovou výmerou úžitkovej podlahovej plochy 366 m², situovanú na prestížnej adrese, v rokokovej stavbe z 18. storočia známej ako Dom cechu rybárov a lodníkov (Rybársky cech), na Žižkovej ulici, mestská časť Bratislava – Staré Mesto.
Dispozícia a vybavenie:
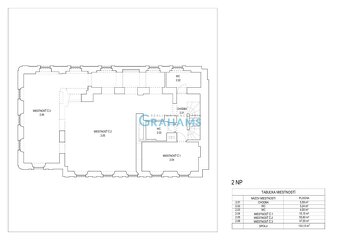
Budova pozostáva zo 4 podlaží – troch nadzemných a jedného suterénneho. Predmetom prenájmu sú nadzemné podlažia s celkovou výmerou 366 m². Každé podlažie je klimatizované a vybavené kuchynkou a toaletou.
1.NP: 133,13 m²
2.NP: 133,13 m²
3.NP: 108,23 m²
Celá budova je vhodná na rôzne účely – ako sídlo firmy, kancelárie, coworking, ateliéry, centrum služieb, komunitné priestory, pohybové štúdio (joga, pilates) a iné. Dispozičné usporiadanie je možné upraviť podľa vlastných potrieb.
Cena prenájmu: 16 EUR/m²/mes. + prevádzkové náklady: 3 EUR/m²/mes.
K uvedeným cenám prislúcha DPH.
Lokalita:
Budova sa nachádza v atraktívnej a dynamicky sa rozvíjajúcej časti Starého Mesta, priamo na dunajskom nábreží. V tesnej blízkosti je štvrť Zuckermandel s kompletnou občianskou vybavenosťou – reštaurácie, kaviarne, služby, obchody, verejné priestory aj rezidenčné budovy. Priamo na dosah je aj nový rezidenčný projekt Vydrica. Výborná dopravná dostupnosť MHD (autobusy, električky) aj autom. Parkovanie je možné v neďalekom parkovacom dome Zuckermandel a Vydrica.
Prenájmom celej budovy získate reprezentatívne sídlo na výnimočnej adrese – v historickej budove s osobitým šarmom a atmosférou, v srdci Podhradia a v kontakte s modernou architektúrou nábrežia.
Ak hľadáte výnimočný priestor pre Vaše podnikanie alebo kreatívnu činnosť, ktorý v sebe spája historickú hodnotu a moderné zázemie, táto ponuka je pre Vás.
Neváhajte ma kontaktovať pre viac informácií. Pozrite si aj 3D virtuálnu prehliadku s leteckými zábermi.
Zodpovedný maklér: Erika Kostroňová, Kontakt: 0901 900 024, E-mail: kostronova@grahams.sk
Upozornenie: Popis nehnuteľnosti – text a fotodokumentácia – je majetkom a autorským dielom spoločnosti Grahams. © Copyright Grahams
Dodatok k cene: , +energie, +DPH
Zastavaná plocha: 229m²
Obytná plocha: 366m²
Celková rozloha: 366m²
Rozloha pozemku: 229m²
Úžitková plocha: 366m²
Vlastníctvo: firemné
Stav: čiastočne prerobený
El. napätie: 230V
Plyn: nie
Kanalizácia: áno
Internet: lokálny poskytovateľ
Kúpeľňa: áno
Vykurovanie: áno
Garáž: nie
Výťah: nie
Parkovanie: verejné
Postavené z: tehla
Zariadenie: nezariadený
Zateplený objekt: nie
Klimatizácia: áno
Káblová televízia: nie
Energetický certifikát: nie
Bezbariérový prístup : nie
Okná: drevené
Realitná kancelária Grahams Vám v zastúpení klienta ponúka na prenájom samostatne stojacu historickú budovu , jej časť, s celkovou výmerou úžitkovej podlahovej plochy 366 m², situovanú na prestížnej adrese, v rokokovej stavbe z 18. storočia známej ako Dom cechu rybárov a lodníkov (Rybársky cech), na Žižkovej ulici, mestská časť Bratislava – Staré Mesto.
Dispozícia a vybavenie:
Budova pozostáva zo 4 podlaží – troch nadzemných a jedného suterénneho. Predmetom prenájmu sú nadzemné podlažia s celkovou výmerou 366 m². Každé podlažie je klimatizované a vybavené kuchynkou a toaletou.
1.NP: 133,13 m²
2.NP: 133,13 m²
3.NP: 108,23 m²
Celá budova je vhodná na rôzne účely – ako sídlo firmy, kancelárie, coworking, ateliéry, centrum služieb, komunitné priestory, pohybové štúdio (joga, pilates) a iné. Dispozičné usporiadanie je možné upraviť podľa vlastných potrieb.
Cena prenájmu: 16 EUR/m²/mes. + prevádzkové náklady: 3 EUR/m²/mes.
K uvedeným cenám prislúcha DPH.
Lokalita:
Budova sa nachádza v atraktívnej a dynamicky sa rozvíjajúcej časti Starého Mesta, priamo na dunajskom nábreží. V tesnej blízkosti je štvrť Zuckermandel s kompletnou občianskou vybavenosťou – reštaurácie, kaviarne, služby, obchody, verejné priestory aj rezidenčné budovy. Priamo na dosah je aj nový rezidenčný projekt Vydrica. Výborná dopravná dostupnosť MHD (autobusy, električky) aj autom. Parkovanie je možné v neďalekom parkovacom dome Zuckermandel a Vydrica.
Prenájmom celej budovy získate reprezentatívne sídlo na výnimočnej adrese – v historickej budove s osobitým šarmom a atmosférou, v srdci Podhradia a v kontakte s modernou architektúrou nábrežia.
Ak hľadáte výnimočný priestor pre Vaše podnikanie alebo kreatívnu činnosť, ktorý v sebe spája historickú hodnotu a moderné zázemie, táto ponuka je pre Vás.
Neváhajte ma kontaktovať pre viac informácií. Pozrite si aj 3D virtuálnu prehliadku s leteckými zábermi.
Zodpovedný maklér: Erika Kostroňová, Kontakt: 0901 900 024, E-mail: kostronova@grahams.sk
Upozornenie: Popis nehnuteľnosti – text a fotodokumentácia – je majetkom a autorským dielom spoločnosti Grahams. © Copyright Grahams
Dodatok k cene: , +energie, +DPH
Zastavaná plocha: 229m²
Obytná plocha: 366m²
Celková rozloha: 366m²
Rozloha pozemku: 229m²
Úžitková plocha: 366m²
Vlastníctvo: firemné
Stav: čiastočne prerobený
El. napätie: 230V
Plyn: nie
Kanalizácia: áno
Internet: lokálny poskytovateľ
Kúpeľňa: áno
Vykurovanie: áno
Garáž: nie
Výťah: nie
Parkovanie: verejné
Postavené z: tehla
Zariadenie: nezariadený
Zateplený objekt: nie
Klimatizácia: áno
Káblová televízia: nie
Energetický certifikát: nie
Bezbariérový prístup : nie
Okná: drevené
|
| |||||||||||||||||||||||||||||||
Kontaktovať inzerenta e-mailom
Kontaktovať e-mailom môže iba overený užívateľ.
Overenie je zadarmo.
Vaše telefónne číslo *
Kontaktovať e-mailom môže iba overený užívateľ.
Overenie je zadarmo.
Vaše telefónne číslo *









