Predaj rodinného domu v Lučenci – časť Opatová
- TOP - [4.11. 2025]Zmazať/ Upraviť/ Topovať




























SOCHA REALITY s.r.o. ponúka exkluzívne na predaj priestranný rodinný dom v obľúbenej a tichej lokalite Opatová v Lučenci, na ulici Kláštorná. Dom bol postavený v roku 1989 a nachádza sa na rovinatom pozemku s celkovou výmerou 620 m², ktorý je oplotený. Tento dom je ideálnou voľbou pre rodiny hľadajúce pokojné a bezpečné bývanie v blízkosti centra mesta, ale mimo hlavného ruchu.
Základné informácie:
•Výmera pozemku: 620 m², rovina, oplotené
•Výmera domu: 120 m²,
•Úžitková plocha: 191,49 m²
•Obytná plocha: 101,80 m²
•Rok výstavby: 1989
•Podlažia: 2 bez podpivničenia
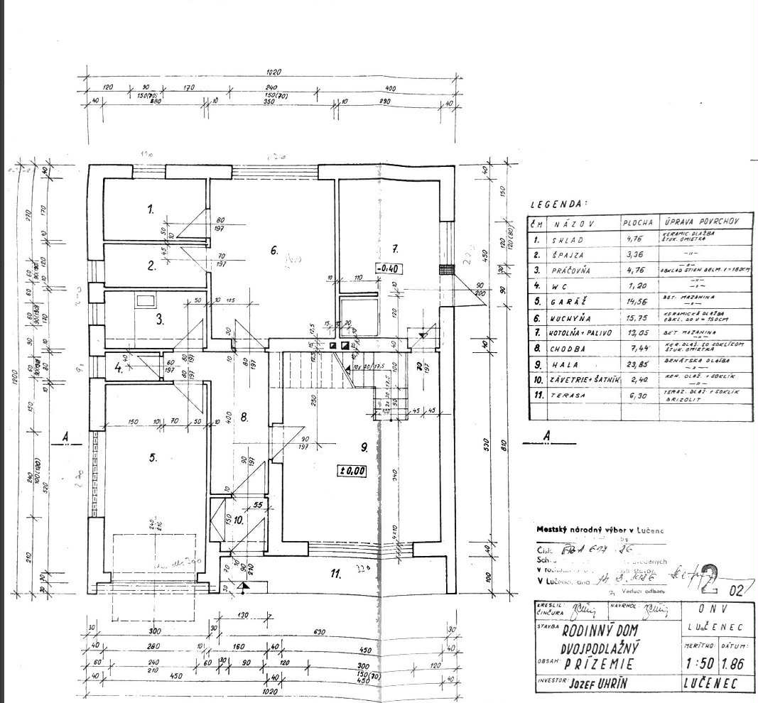
Dispozícia:
•1. podlažie:
o Chodba
o Sklad
o Špajza
o Práčovňa
o WC
o Kúpeľňa
o Obývačka
o Kuchyňa
o Hala
o Technická miestnosť
•2. podlažie:
o 4 izby
o Balkón
o Kúpeľňa
o Chodba
Vybavenie a technické parametre:
•Plastové okná boli vymenené v roku 2015, čím sa zlepšila energetická efektívnosť domu.
•Fasáda: bez zateplenia, brizolit
•Elektrické rozvody: pôvodné (220/380 V).
•Dom je napojený na všetky inžinierske siete: vodovod, kanalizáciu, plyn a elektrinu.
•Na pozemku sa nachádza studňa, ktorá sa využíva na úžitkovú vodu, čo predstavuje ďalšiu výhodu pri znížení nákladov na vodu.
Výborná lokalita a dostupnosť: Dom sa nachádza v tichej a nepriechodnej ulici Kláštorná, čo zabezpečuje pokojné a súkromné bývanie. Výborná dostupnosť do mesta a všetkých jeho služieb je ďalšou veľkou výhodou. V blízkosti sa nachádza autobusová zastávka, takže verejná doprava je pohodlne dostupná. Okrem toho, v okolí nájdete aj obchody a ďalšiu občiansku vybavenosť, čím je zabezpečený každodenný komfort.
Ďalšie informácie: Dom je vo veľmi dobrej polohe na tichej nepriechodnej ulici, čo zabezpečuje pokoj a súkromie. S výmerou 120 m² a dostatočným počtom izieb je ideálny pre rodinné bývanie. Priestranná hala, špajza a technické zázemie zaručujú komfort pri každodennom bývaní. V prípade potreby a s prihliadnutím na cenu, môže nový majiteľ vykonať menšie modernizačné úpravy podľa vlastného vkusu.
Tento dom ponúka skvelú príležitosť na dlhodobé bývanie v žiadanej lokalite Lučenca, s dostupnosťou do centra mesta a zároveň v tichej oblasti.
Neváhajte nás kontaktovať pre viac informácií alebo na obhliadku.
Virtuálnu 3D obhliadku si môžete pozrieť na uvedenom linku:
https://my.matterport.com/models/gz3mkJdSxT5
Táto nehnuteľnosť nie je na prenájom ani na splátky!
Cena zahŕňa:
- Províziu RK
- Poplatok na vklad na kataster
- Vypracovanie kompletných zmlúv
- Zabezpečenie znaleckého posudku
- Zabezpečenie prípadného geometrického plánu (v prípade potreby)
- Prehlásenie energií
- Daňové priznanie na daň z nehnuteľnosti
- Kompletné poradenstvo a financovanie individuálne na mieru
Cena nezahŕňa:
- Poplatok za vklad záložného práva
- Znalecký posudok
- Prípadný geometrický plán
Základné informácie:
•Výmera pozemku: 620 m², rovina, oplotené
•Výmera domu: 120 m²,
•Úžitková plocha: 191,49 m²
•Obytná plocha: 101,80 m²
•Rok výstavby: 1989
•Podlažia: 2 bez podpivničenia
Dispozícia:
•1. podlažie:
o Chodba
o Sklad
o Špajza
o Práčovňa
o WC
o Kúpeľňa
o Obývačka
o Kuchyňa
o Hala
o Technická miestnosť
•2. podlažie:
o 4 izby
o Balkón
o Kúpeľňa
o Chodba
Vybavenie a technické parametre:
•Plastové okná boli vymenené v roku 2015, čím sa zlepšila energetická efektívnosť domu.
•Fasáda: bez zateplenia, brizolit
•Elektrické rozvody: pôvodné (220/380 V).
•Dom je napojený na všetky inžinierske siete: vodovod, kanalizáciu, plyn a elektrinu.
•Na pozemku sa nachádza studňa, ktorá sa využíva na úžitkovú vodu, čo predstavuje ďalšiu výhodu pri znížení nákladov na vodu.
Výborná lokalita a dostupnosť: Dom sa nachádza v tichej a nepriechodnej ulici Kláštorná, čo zabezpečuje pokojné a súkromné bývanie. Výborná dostupnosť do mesta a všetkých jeho služieb je ďalšou veľkou výhodou. V blízkosti sa nachádza autobusová zastávka, takže verejná doprava je pohodlne dostupná. Okrem toho, v okolí nájdete aj obchody a ďalšiu občiansku vybavenosť, čím je zabezpečený každodenný komfort.
Ďalšie informácie: Dom je vo veľmi dobrej polohe na tichej nepriechodnej ulici, čo zabezpečuje pokoj a súkromie. S výmerou 120 m² a dostatočným počtom izieb je ideálny pre rodinné bývanie. Priestranná hala, špajza a technické zázemie zaručujú komfort pri každodennom bývaní. V prípade potreby a s prihliadnutím na cenu, môže nový majiteľ vykonať menšie modernizačné úpravy podľa vlastného vkusu.
Tento dom ponúka skvelú príležitosť na dlhodobé bývanie v žiadanej lokalite Lučenca, s dostupnosťou do centra mesta a zároveň v tichej oblasti.
Neváhajte nás kontaktovať pre viac informácií alebo na obhliadku.
Virtuálnu 3D obhliadku si môžete pozrieť na uvedenom linku:
https://my.matterport.com/models/gz3mkJdSxT5
Táto nehnuteľnosť nie je na prenájom ani na splátky!
Cena zahŕňa:
- Províziu RK
- Poplatok na vklad na kataster
- Vypracovanie kompletných zmlúv
- Zabezpečenie znaleckého posudku
- Zabezpečenie prípadného geometrického plánu (v prípade potreby)
- Prehlásenie energií
- Daňové priznanie na daň z nehnuteľnosti
- Kompletné poradenstvo a financovanie individuálne na mieru
Cena nezahŕňa:
- Poplatok za vklad záložného práva
- Znalecký posudok
- Prípadný geometrický plán
  | 
  | |||||||||||||||||||||||||||||||
Kontaktovať inzerenta e-mailom
Kontaktovať e-mailom môže iba overený užívateľ.
Overenie je zadarmo.
Vaše telefónne číslo *
Kontaktovať e-mailom môže iba overený užívateľ.
Overenie je zadarmo.
Vaše telefónne číslo *







