Rodinný dom na predaj, Biely Kostol
- TOP - [6.12. 2025]Zmazať/ Upraviť/ Topovať






























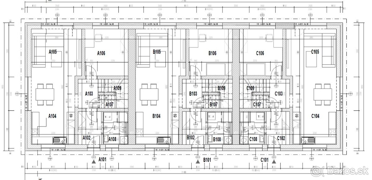
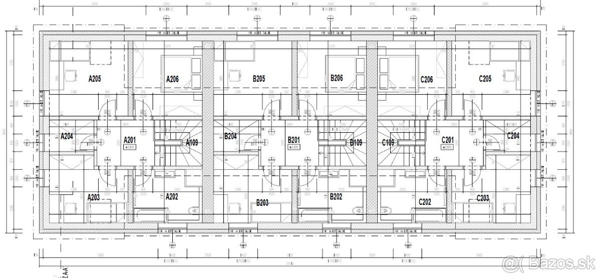
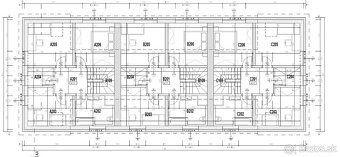
V Bielom Kostole pri Trnave ponúkame na predaj 3 rodinné domy v radovej výstavbe - mezonetové byty so záhradou. Tieto stavby prinášajú výhodu cien bytov s komfortom rodinného domu. Moderný dizajn, veľkorysý priestor, súkromie a výhľad do zelene sú základom pre vaše pohodové bývanie. Ideálne pre rodiny s deťmi nakoľko základná škola je hneď cez cestu.
- Biely Kostol iba 3km od Trnavy
- pozemky:
Byt A: 396 m2
Byt B: 209,2 m2
Byt C: 226 m2
- úžitková plocha 123,27 m2
- možnosť 4 izbového alebo 5 izbového prevedenia (s pracovňou na prízemí alebo väčšia obývačka)
- nízkoenergetická stavba - odhadované mesačné náklady cca 90 €
- vykurovanie tepelné čerpadlo
- príprava na klimatizáciu
- príprava na vonkajšie žalúzie (podomietkový systém)
- parking pre 2 autá pred domom
- oplotenie pozemku
- lokalita poskytuje kompletnú občiansku vybavenosť
- možnosť dokončenia aj na kľúč podľa vašich predstáv
- predpokladaný termín dokončenia je 2Q 2026
- uvedená cena je za skolaudovaný holodom
- výhodná cena 2270 €/m2 úžitkovej plochy
Pre viac info ma neváhajte kontaktovať
Prajem pekný deň
Martin Špánik
0917 614 198
rodinný dom na predaj, 4-izbový byt na predaj, 5-izbový byt na predaj, Trnava
- Biely Kostol iba 3km od Trnavy
- pozemky:
Byt A: 396 m2
Byt B: 209,2 m2
Byt C: 226 m2
- úžitková plocha 123,27 m2
- možnosť 4 izbového alebo 5 izbového prevedenia (s pracovňou na prízemí alebo väčšia obývačka)
- nízkoenergetická stavba - odhadované mesačné náklady cca 90 €
- vykurovanie tepelné čerpadlo
- príprava na klimatizáciu
- príprava na vonkajšie žalúzie (podomietkový systém)
- parking pre 2 autá pred domom
- oplotenie pozemku
- lokalita poskytuje kompletnú občiansku vybavenosť
- možnosť dokončenia aj na kľúč podľa vašich predstáv
- predpokladaný termín dokončenia je 2Q 2026
- uvedená cena je za skolaudovaný holodom
- výhodná cena 2270 €/m2 úžitkovej plochy
Pre viac info ma neváhajte kontaktovať
Prajem pekný deň
Martin Špánik
0917 614 198
rodinný dom na predaj, 4-izbový byt na predaj, 5-izbový byt na predaj, Trnava
|
| |||||||||||||||||||||||||||||||
Kontaktovať inzerenta e-mailom
Kontaktovať e-mailom môže iba overený užívateľ.
Overenie je zadarmo.
Vaše telefónne číslo *
Kontaktovať e-mailom môže iba overený užívateľ.
Overenie je zadarmo.
Vaše telefónne číslo *









