4 – IZB. BUNGALOV, 3 PARK.STÁTIA, TERASA,VEĽKÉ BLAHOVO
- [15.10. 2025]Zmazať/ Upraviť/ Topovať











Ponúkame Vám na predaj novostavbu, moderný samostatne stojací 4 – izbový rodinný dom – bungalov, ktorý sa nachádza v obci Veľké Blahovo, ktoré je vzdialene len 3 km od okresného mesta Dunajská Streda. Dom sa rozprestiera na pozemku o výmere 571 m² a je na samostatnej súkromnej ulici s vedľajším rovnakým rodinným domom, ktorý je tiež na predaj a s možnosťou si uzavrieť vstup vlastnou bránou. Prislúcha k nemu priestranná zastrešená terasa a 3 vonkajšie parkovacie státia.
V dome sú veľkoformátové okná, ktoré zabezpečujú dostatok denného svetla. Predpríprava na klimatizáciu, krb a možnosť vybudovať si bazén. Domy sa predávajú vo vyhotovení štandard aj s dokončenými kúpeľňami a s alarmom Jablotron.
ZÁKLADNÉ ÚDAJE:
* Lokalita: Veľké Blahovo
* Materiál: Tehla
* Zateplenie: Áno – 20cm polystyrén
* Počet izieb: 4
* Pivnica: Nie
* Garáž: Nie
* Bezbarierový prístup: Áno
* Parkovanie: pre 3 autá
* Terasa: Áno
* IS: Voda, elektrina, kanalizácia
* Vykurovanie: Podlahové – teplovodné
* Okná: 3 sklo
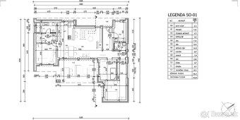
VÝMERA:
* Plocha pozemku: 571 m²
* Zastavaná plocha: 183,65 m²
* Úžitková plocha: 148,15m²
* Terasa: 29,13m²
* Záhrada: 387,35 m²
DISPOZÍCIA DOMU:
* Krytý vstup do domu: 6,12 m²
* Vstupná chodba: 11,00 m²
* Technická miestnosť: 6,75 m²
* Kúpeľňa s WC a umyvadlom: 2,93 m²
* Izba: 17,52 m²
* Izba: 10,00 m²
* Obývacia izba spojená s kuchyňou, jedálňou a so vstupom na terasu: 41,11 m²
- z toho (obývacia izba: 24,36 m² , kuchyňa: 8,97 m² , jedáleň: 7,78 m²)
* Zastrešená terasa: 29,13 m²
* Izba: 12,80 m²
* Šatník: 4,47 m²
* Kúpeľňa s vaňou, sprchovacím kútom, WC a umývadlom: 6,31 m²
LOKALITA A OKOLIE:
Obec Veľké Blahovo ponúka základnú občiansku vybavenosť, ktorá zahŕňa potraviny, pohostinstvo, materskú školu a základnú školu pre nižšie ročníky. V blízkom okresnom meste Dunajská Streda (vzdialené len 5 minút autom) nájdete kompletné služby vrátane obchodných centier, supermarketov, reštaurácií, kaviarní, zdravotného strediska, lekární, bánk a pošty.
Obec má výborné dopravné napojenie – cez Dunajskú Stredu prechádza železničná trať Bratislava – Komárno, čo zaisťuje rýchly prístup do hlavného mesta. Autom sa do centra Bratislavy dostanete približne za 30 minút, pričom blízka rýchlostná cesta R7 umožňuje plynulú dopravu.
V blízkej Dunajskej Strede sa nachádza známe termálne kúpalisko Thermalpark, športoviská, wellness centrá a moderné rekreačné zóny.
CENA: 269 000 €
ID: 81811433
V cene je zahrnutý právny a hypotekárny servis, poradenstvo, spracovanie všetkých zmlúv a dokumentácie potrebnej k prevodu.
© Text a fotografie sú autorským dielom a majetkom 1.BCR GROUP
Všetky prezentované údaje zverejnené v tomto inzeráte majú informatívny charakter a žiadnej strane nevzniká nárok na uzatvorenie zmluvy. Spoločnosť 1.BCR s.r.o. nenesie za ich správnosť, úplnosť a presnosť žiadnu zodpovednosť.
V dome sú veľkoformátové okná, ktoré zabezpečujú dostatok denného svetla. Predpríprava na klimatizáciu, krb a možnosť vybudovať si bazén. Domy sa predávajú vo vyhotovení štandard aj s dokončenými kúpeľňami a s alarmom Jablotron.
ZÁKLADNÉ ÚDAJE:
* Lokalita: Veľké Blahovo
* Materiál: Tehla
* Zateplenie: Áno – 20cm polystyrén
* Počet izieb: 4
* Pivnica: Nie
* Garáž: Nie
* Bezbarierový prístup: Áno
* Parkovanie: pre 3 autá
* Terasa: Áno
* IS: Voda, elektrina, kanalizácia
* Vykurovanie: Podlahové – teplovodné
* Okná: 3 sklo
VÝMERA:
* Plocha pozemku: 571 m²
* Zastavaná plocha: 183,65 m²
* Úžitková plocha: 148,15m²
* Terasa: 29,13m²
* Záhrada: 387,35 m²
DISPOZÍCIA DOMU:
* Krytý vstup do domu: 6,12 m²
* Vstupná chodba: 11,00 m²
* Technická miestnosť: 6,75 m²
* Kúpeľňa s WC a umyvadlom: 2,93 m²
* Izba: 17,52 m²
* Izba: 10,00 m²
* Obývacia izba spojená s kuchyňou, jedálňou a so vstupom na terasu: 41,11 m²
- z toho (obývacia izba: 24,36 m² , kuchyňa: 8,97 m² , jedáleň: 7,78 m²)
* Zastrešená terasa: 29,13 m²
* Izba: 12,80 m²
* Šatník: 4,47 m²
* Kúpeľňa s vaňou, sprchovacím kútom, WC a umývadlom: 6,31 m²
LOKALITA A OKOLIE:
Obec Veľké Blahovo ponúka základnú občiansku vybavenosť, ktorá zahŕňa potraviny, pohostinstvo, materskú školu a základnú školu pre nižšie ročníky. V blízkom okresnom meste Dunajská Streda (vzdialené len 5 minút autom) nájdete kompletné služby vrátane obchodných centier, supermarketov, reštaurácií, kaviarní, zdravotného strediska, lekární, bánk a pošty.
Obec má výborné dopravné napojenie – cez Dunajskú Stredu prechádza železničná trať Bratislava – Komárno, čo zaisťuje rýchly prístup do hlavného mesta. Autom sa do centra Bratislavy dostanete približne za 30 minút, pričom blízka rýchlostná cesta R7 umožňuje plynulú dopravu.
V blízkej Dunajskej Strede sa nachádza známe termálne kúpalisko Thermalpark, športoviská, wellness centrá a moderné rekreačné zóny.
CENA: 269 000 €
ID: 81811433
V cene je zahrnutý právny a hypotekárny servis, poradenstvo, spracovanie všetkých zmlúv a dokumentácie potrebnej k prevodu.
© Text a fotografie sú autorským dielom a majetkom 1.BCR GROUP
Všetky prezentované údaje zverejnené v tomto inzeráte majú informatívny charakter a žiadnej strane nevzniká nárok na uzatvorenie zmluvy. Spoločnosť 1.BCR s.r.o. nenesie za ich správnosť, úplnosť a presnosť žiadnu zodpovednosť.
|
|
Kontaktovať inzerenta e-mailom
Kontaktovať e-mailom môže iba overený užívateľ.
Overenie je zadarmo.
Vaše telefónne číslo *
Kontaktovať e-mailom môže iba overený užívateľ.
Overenie je zadarmo.
Vaše telefónne číslo *