POSLEDNÝ ZO 4 DOMOV Na predaj novostavba RD, Dubovany
- [14.10. 2025]Zmazať/ Upraviť/ Topovať


























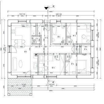
1231 - Exkluzívne na predaj novostavba 4-izbového rodinného domu v obci Dubovany (13km od Piešťan). Dom je postavený z tehly Ytong na pozemku s celkovou rozlohou 400m2. Dispozične novostavba pozostáva: chodba s techn. kútom (12,11m2), izba (11,10m2), šatník (1,75m2), izba (10,50m2), izba (11,10m2), kúpeľňa s WC (6m2), špajza (1,16m2), kuchyňa s obývacou izbou (27,47m2). Celková podlahová plocha je 82m2. Z obývačky je vstup na terasu. Dom je napojený na všetky IS (plyn, elektrina, vodovod, kanalizácia). Kúrenie je podlahové, v obývačke je predpríprava na krb. Strecha - škridla, v podkroví sa nachádza úložný priestor (sťahovací rebrík vo vstupnej chodbe). Stropy sú zo sadrokartónu zateplené 30cm minerálnou vlnou. Dom je zateplený 17cm polystyrénom, spravená fasáda. Dom sa nachádza v novej slepej uličke, kde budú celkom 4 domy - po dohode vlastníkov možno vytvoriť súkromný uzavretý areál. Tichá lokalita. Predáva sa v stave holodomu, po dohode možnosť dokončenia. V cene je aj podiel na súkromnej prístupovej ceste.
Cena je 173 000 €.
Viac informácií Vám rada poskytnem na tel. č. +421 905 248 196 alebo mailovej adrese petovska@piestanyreality.sk Teším sa na stretnutie!
Cena je 173 000 €.
Viac informácií Vám rada poskytnem na tel. č. +421 905 248 196 alebo mailovej adrese petovska@piestanyreality.sk Teším sa na stretnutie!
|
| |||||||||||||||||||||||||||||||
Kontaktovať inzerenta e-mailom
Kontaktovať e-mailom môže iba overený užívateľ.
Overenie je zadarmo.
Vaše telefónne číslo *
Kontaktovať e-mailom môže iba overený užívateľ.
Overenie je zadarmo.
Vaše telefónne číslo *





