CHORVÁTSKO - Apartmán v pokojnej lokalite - SABUNIKE, Nin
- [14.10. 2025]Zmazať/ Upraviť/ Topovať











AX250955,
Realitná kancelária AMAXADES REALITY ponúka na predaj nové apartmány v malej tichej dedinke SABUNIKE, ktorá susedí s mestom NIN.
Dom je vzdialený 700 m od pláže Sabunike a 1 km od piesočnatej „Kraljičinej plaže – Queens beach“.
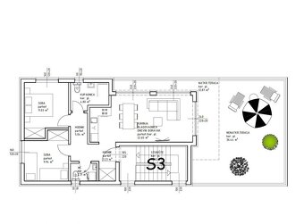
V dome sú 3 apartmány. Na predaj je posledný apartmán S3, ktorý sa nachádza na 1. poschodí. K apartmánu sa ide po vlastnom uzavretom schodisku, čo zväčšuje celkovú plochu apartmánu o ďalší priestor.
Vstup k apartmánu (schodisku) je na prízemí. Tu sa nachádza aj pivničná miestnosť s výmerou 5,93 m2. Priestor schodiska má 15,42 m2. Samotný apartmán je situovaný na prvom poschodí a má výmeru 59 m2 + čiastočne krytá terasa 49 m2.
Apartmán má vstupnú chodbu, dve spálne, kúpeľňu so sprchovacím kútom a WC, samostatné WC s technickou časťou a obývačku spojenú s kuchyňou s prístupom na terasu.
K apartmánu patria dve parkovacie miesta.
Inžinierske siete: obecná voda, elektrina, bioseptik
Predajná cena apartmánu S3= 275.000,- EUR
Viac nehnuteľností na predaj v Chorvátsku nájdete na našej webovej stránke.
V prípade záujmu o obhliadku nehnuteľnosti nás kontaktujte:
+421.911.201.211, +385.99.8431.210,
amaxades.reality@gmail.com
Obytná plocha: 65m²
Celková rozloha: 130m²
Úžitková plocha: 65m²
Vlastníctvo: osobné
Odvoz odpadu: áno
Plyn: nie
Kúpeľňa: áno
Vykurovanie: vlastné - elektrické
Terasa: áno
Pivnica: áno
Výťah: nie
Parkovanie: vlastné vyhradené
Postavené z: tehla
Zariadenie: nezariadený
Zateplený objekt: áno
Klimatizácia: áno
Energetický certifikát: nie
Predzáhradka: neuvedené
Okná: plastové
|
|
Kontaktovať inzerenta e-mailom
Kontaktovať e-mailom môže iba overený užívateľ.
Overenie je zadarmo.
Vaše telefónne číslo *
Kontaktovať e-mailom môže iba overený užívateľ.
Overenie je zadarmo.
Vaše telefónne číslo *