NA PREDAJ 3x NOVOSTAVBA LEVICE- ČASŤ MALÝ KIAR
- TOP - [15.10. 2025]Zmazať/ Upraviť/ Topovať











Snívate o vlastnom bývaní v blízkosti mesta, ale túžite byť aj v spojení s prírodou? Túžite po mieste, kde si vypijete kávu na terase a Vaše deti sa budú pritom hrať na záhrade? Máme pre Vás na predaj 3 rodinné domy so skvelou dispozíciou, ktoré toto všetko spĺňajú. 2 domy sú 4-izbové a 1 dom je 5-izbový.
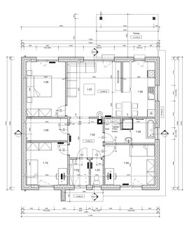
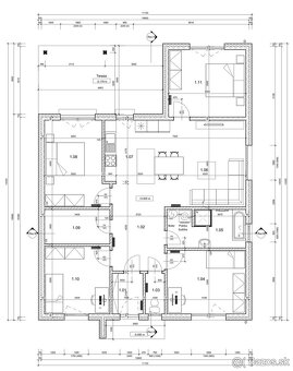
4-izbový dom má 3 izby na spanie, kuchyňu spojenú s obývačkou, samostatné WC, priestrannú kúpeľňu a veľký centrálny šatník. Úžitková plocha je 100 m2 + terasa 20 m2.
5-izbový dom má 4 izby na spanie, kuchyňu spojenú s obývačkou, samostatné WC, priestrannú kúpeľňu a veľký centrálny šatník. Úžitková plocha je 113m2 + terasa je 23 m2.
V domoch je pochôdzna povala o rozlohe 14 m2 s možnosťou úložného priestoru. V kúpeľni je vytvorený priestor pre bojler, práčku a sušičku, ktorý je možné elegantne skryť za posuvné dvere. Vykurovanie je riešené kombináciou elektrických podlahových rohoží v dennej časti a v spálňach sú nainštalované elektrické olejové radiátory. V domoch sú spravené predprípravy na 2 klimatizačné jednotky. Súčasťou výbavy je aj komín a lokálne rekuperačné jednotky v každej obytnej miestnosti. Domy sa predávajú vo výbave ako na fotkách. K nasťahovaniu je potrebné už iba dokúpiť osvetlenie, kuchynskú linku a sanitu. V prípade záujmu vieme novému majiteľovi zabezpečiť služby nášho stolára a vodára. Domy sa nachádzajú na pozemkoch so štedrou veľkosťou od 838 m2 do 921 m2 a sú oplotené z 3 strán.
Novostavby sa nachádzajú v obci Malý Kiar, ktorý je od mesta Levice vzdialený iba 10 min cesty autom. Hneď za obcou sa nachádza kúpalisko Margita-Ilona a z druhej strany obce zase rybník ako stvorený na prechádzky pri západe slnka. V okolí je možnosť využívania cykloturistiky.
Cena nehnuteľností je od 214 000€ v závislosti od zvoleného typu nehnuteľnosti.
Naša spoločnosť RAJ BÝVANIA s.r.o. sa už vyše 15 rokov zaoberá výstavbou montovaných drevodomov po celom Slovensku. Našim klientom poskytujeme bezplatné poradenstvo, záruku a kvalitný servis.
V prípade potreby vieme budúcemu majiteľovi poskytnúť aj finančné poradenstvo pri vybavovaní hypotekárneho úveru a taktiež služby našej realitnej kancelárie pre potreby predaja aktuálne obývanej nehnuteľnosti.
Pre viac informácii a dohodnutie stretnutia či obhliadky nás neváhajte kontaktovať na tel.č. 0948 948 088!
4-izbový dom má 3 izby na spanie, kuchyňu spojenú s obývačkou, samostatné WC, priestrannú kúpeľňu a veľký centrálny šatník. Úžitková plocha je 100 m2 + terasa 20 m2.
5-izbový dom má 4 izby na spanie, kuchyňu spojenú s obývačkou, samostatné WC, priestrannú kúpeľňu a veľký centrálny šatník. Úžitková plocha je 113m2 + terasa je 23 m2.
V domoch je pochôdzna povala o rozlohe 14 m2 s možnosťou úložného priestoru. V kúpeľni je vytvorený priestor pre bojler, práčku a sušičku, ktorý je možné elegantne skryť za posuvné dvere. Vykurovanie je riešené kombináciou elektrických podlahových rohoží v dennej časti a v spálňach sú nainštalované elektrické olejové radiátory. V domoch sú spravené predprípravy na 2 klimatizačné jednotky. Súčasťou výbavy je aj komín a lokálne rekuperačné jednotky v každej obytnej miestnosti. Domy sa predávajú vo výbave ako na fotkách. K nasťahovaniu je potrebné už iba dokúpiť osvetlenie, kuchynskú linku a sanitu. V prípade záujmu vieme novému majiteľovi zabezpečiť služby nášho stolára a vodára. Domy sa nachádzajú na pozemkoch so štedrou veľkosťou od 838 m2 do 921 m2 a sú oplotené z 3 strán.
Novostavby sa nachádzajú v obci Malý Kiar, ktorý je od mesta Levice vzdialený iba 10 min cesty autom. Hneď za obcou sa nachádza kúpalisko Margita-Ilona a z druhej strany obce zase rybník ako stvorený na prechádzky pri západe slnka. V okolí je možnosť využívania cykloturistiky.
Cena nehnuteľností je od 214 000€ v závislosti od zvoleného typu nehnuteľnosti.
Naša spoločnosť RAJ BÝVANIA s.r.o. sa už vyše 15 rokov zaoberá výstavbou montovaných drevodomov po celom Slovensku. Našim klientom poskytujeme bezplatné poradenstvo, záruku a kvalitný servis.
V prípade potreby vieme budúcemu majiteľovi poskytnúť aj finančné poradenstvo pri vybavovaní hypotekárneho úveru a taktiež služby našej realitnej kancelárie pre potreby predaja aktuálne obývanej nehnuteľnosti.
Pre viac informácii a dohodnutie stretnutia či obhliadky nás neváhajte kontaktovať na tel.č. 0948 948 088!
|
|
Kontaktovať inzerenta e-mailom
Kontaktovať e-mailom môže iba overený užívateľ.
Overenie je zadarmo.
Vaše telefónne číslo *
Kontaktovať e-mailom môže iba overený užívateľ.
Overenie je zadarmo.
Vaše telefónne číslo *