ZNÍŽENÁ CENA NA PRENÁJOM - Budova v meste Humenné
- [14.10. 2025]Zmazať/ Upraviť/ Topovať




























Typ: Komerčný objekt
Ulica: Štefánikova
Obec: Humenné
PRENAJMITE SI pre VAŠE PODNIKANIE multifunkčnú BUDOVU s VEĽKÝM PARKOVISKOM v BLÍZKOSTI CENTRA mesta HUMENNÉ!
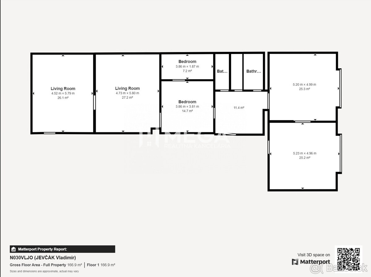
MEGA REALITNÁ KANCELÁRIA VÁM PONÚKA SO SÚHLASOM KLIENTA na PRENÁJOM MULTIFUNKČNÚ BUDOVU s vnútornou rozlohou 190 m2 a VEĽKÝM PARKOVISKOM pre 20 áut v Humennom na ul. Štefánikova (bývalá budova Autoškoly NOVA).
3D Obhliadka nehnuteľnosti:
https://my.matterport.com/show/?m=9E1Z4HKZBeF
Budova je ideálna pre:
Kancelárske priestory
Skladové priestory
Predajňu
Prevádzku služieb
VLASTNOSTI:
Kompletná rekonštrukcia v roku 2019
5 miestností, 3 s vlastným vchodom z terasy
Sociálne zariadenia (3 WC, 1 sprcha)
Interiér cca 140 m2
Pivničné priestory 50 m2 (dve samostatné miestnosti o výmere 2 x 25m²)
2 prístrešky na osobné auto a 1 prístrešok na dodávku
Veľké parkovisko (600 m2) spevnené aj pre nákladné autá
Ďalšia oplotená trávnatá plocha s výmerou cca 600 m2
Volné k okamžitému prenájmu.
Cena prenájmu: 1 360 € mesačne bez DPH
Pri podpise rezervačnej zmluvy nájomca uhradí nevratný rezervačný poplatok ( odmena RK ) 680,-€ + depozit 350,-€
Energie hradí nájomca mesačne (doterajšie priemerné mesačné náklady do 200 €)
Poloha:
400 m od centra mesta
V blízkosti Mestského a Okresného úradu
Neváhajte a kontaktujte nás pre bližšie informácie, alebo obhliadku!
Kontakt:
Jevčák Vladimír
Váš realitný maklér
Tel.: 0908 973 537
Email: vladimir.jevcak@megarealitka.sk
Realitná kancelária MEGA® je tu pre Vás s tímom skúsených profesionálov, ktorí sa vyznajú v predaji a prenájme nehnuteľností.
Každý klient je pre nás dôležitý, a preto sa k Vám správame s osobným prístupom a pochopením. Dôslednosť, precíznosť a najmä zodpovednosť sú pre nás samozrejmosťou.
Náš tím je mladý a plný energie, pripravený Vám pomôcť pri kúpe alebo predaji nehnuteľností s profesionálnym prístupom a ľahkosťou.
V spolupráci s renomovanou advokátskou kanceláriou poskytujeme komplexný právny servis týkajúci sa prevodu vlastníckych práv k nehnuteľnostiam - od prípravy zmlúv až po elektronické podanie do katastra nehnuteľností.
Status: zľava
Vlastníctvo: osobné
Úžitková plocha: 190 m2
Zastavaná plocha: 200 m2
Stav: úplne prerobený
Počet izieb: 5
Terasa: áno
Sklad: áno
Rok poslednej rekonštrukcie: 2019
Celková plocha: 1926 m2
Inžinierske siete: áno
Voda: áno
Elektrika: áno
Plyn: áno
Kanalizácia: áno
Ulica: Štefánikova
Obec: Humenné
PRENAJMITE SI pre VAŠE PODNIKANIE multifunkčnú BUDOVU s VEĽKÝM PARKOVISKOM v BLÍZKOSTI CENTRA mesta HUMENNÉ!
MEGA REALITNÁ KANCELÁRIA VÁM PONÚKA SO SÚHLASOM KLIENTA na PRENÁJOM MULTIFUNKČNÚ BUDOVU s vnútornou rozlohou 190 m2 a VEĽKÝM PARKOVISKOM pre 20 áut v Humennom na ul. Štefánikova (bývalá budova Autoškoly NOVA).
3D Obhliadka nehnuteľnosti:
https://my.matterport.com/show/?m=9E1Z4HKZBeF
Budova je ideálna pre:
Kancelárske priestory
Skladové priestory
Predajňu
Prevádzku služieb
VLASTNOSTI:
Kompletná rekonštrukcia v roku 2019
5 miestností, 3 s vlastným vchodom z terasy
Sociálne zariadenia (3 WC, 1 sprcha)
Interiér cca 140 m2
Pivničné priestory 50 m2 (dve samostatné miestnosti o výmere 2 x 25m²)
2 prístrešky na osobné auto a 1 prístrešok na dodávku
Veľké parkovisko (600 m2) spevnené aj pre nákladné autá
Ďalšia oplotená trávnatá plocha s výmerou cca 600 m2
Volné k okamžitému prenájmu.
Cena prenájmu: 1 360 € mesačne bez DPH
Pri podpise rezervačnej zmluvy nájomca uhradí nevratný rezervačný poplatok ( odmena RK ) 680,-€ + depozit 350,-€
Energie hradí nájomca mesačne (doterajšie priemerné mesačné náklady do 200 €)
Poloha:
400 m od centra mesta
V blízkosti Mestského a Okresného úradu
Neváhajte a kontaktujte nás pre bližšie informácie, alebo obhliadku!
Kontakt:
Jevčák Vladimír
Váš realitný maklér
Tel.: 0908 973 537
Email: vladimir.jevcak@megarealitka.sk
Realitná kancelária MEGA® je tu pre Vás s tímom skúsených profesionálov, ktorí sa vyznajú v predaji a prenájme nehnuteľností.
Každý klient je pre nás dôležitý, a preto sa k Vám správame s osobným prístupom a pochopením. Dôslednosť, precíznosť a najmä zodpovednosť sú pre nás samozrejmosťou.
Náš tím je mladý a plný energie, pripravený Vám pomôcť pri kúpe alebo predaji nehnuteľností s profesionálnym prístupom a ľahkosťou.
V spolupráci s renomovanou advokátskou kanceláriou poskytujeme komplexný právny servis týkajúci sa prevodu vlastníckych práv k nehnuteľnostiam - od prípravy zmlúv až po elektronické podanie do katastra nehnuteľností.
Status: zľava
Vlastníctvo: osobné
Úžitková plocha: 190 m2
Zastavaná plocha: 200 m2
Stav: úplne prerobený
Počet izieb: 5
Terasa: áno
Sklad: áno
Rok poslednej rekonštrukcie: 2019
Celková plocha: 1926 m2
Inžinierske siete: áno
Voda: áno
Elektrika: áno
Plyn: áno
Kanalizácia: áno
|
| |||||||||||||||||||||||||||||||
Kontaktovať inzerenta e-mailom
Kontaktovať e-mailom môže iba overený užívateľ.
Overenie je zadarmo.
Vaše telefónne číslo *
Kontaktovať e-mailom môže iba overený užívateľ.
Overenie je zadarmo.
Vaše telefónne číslo *
Podobné inzeráty
Obchodný priestor v bezprostrednom centre Humenného na prená - [17.11. 2025]Prístup (vchod) priamo z bezplatného parkoviska v centre mesta Humenné má obchodný priestor o celkovej úžitkovej ploche 190 m2.
Pozostáva z predajnej (výstavnej) plochy 165 m2, skladu 20m2, kancelárie 8m2 a sociálneho zariadenia.
Samostatný zásobovací vchod s nakladacou rampou je samozrejmosťou.
...
1 500 €
Humenné
066 01
066 01
31 x
Označiť zlý inzerát Chybnú kategóriu Ohodnotiť užívateľa Zmazať/Upraviť/Topovať
ZNÍŽENÁ CENA - Na prenájom - Lukratívny priestor v centre me - [17.11. 2025]MEGA realitná kancelária ponúka na prenájom lukratívne obchodné priestory v centre mesta Humenné.
Základné informácie:
- celková plocha 190 m2
- vlastné zázemie, soc. zar.
- voľné od 1.4.2025
Výhody:
- vstup priamo z chodnika
- súčasť OD Laborec, čiže vstup je možný aj z nákupnej časti ...
1 500 €
Humenné
066 01
066 01
37 x
Označiť zlý inzerát Chybnú kategóriu Ohodnotiť užívateľa Zmazať/Upraviť/Topovať
Na prenájom novo zrekonštruovaný obchodný priestor v meste H - [24.10. 2025]MEGA realitná kancelária exkluzívne ponúka na prenájom obchodný priestor na ulici Poľnej v meste Humenné.
Ide o novozrekonštruovaný priestor s rozlohou 150m2, pozostavajúci z hlavnej haly a mensieho priestoru, určeného ako zázemie.
Do haly sú dva vstupy: hlavný spredu a väčší dvojdverový z boku. P ...
1 100 €
Humenné
066 01
066 01
495 x
Označiť zlý inzerát Chybnú kategóriu Ohodnotiť užívateľa Zmazať/Upraviť/Topovať
Prenájom obchodného priestoru v centre mesta Humenné - TOP - [2.11. 2025]ACH080N
Reality Smolko - realitná kancelária Vám ponúka na prenájom veľký, obchodný priestor na frekventovanom mieste, ktorý sa nachádza na prízemí Obchodného domu LABOREC priamo na Námestí Slobody v meste Humenné, ktorý bol dlhodobo prenajatý ako predajňa AGROMILK.
Výhodou je možnosť prístupu ...
1 500 €
Humenné
066 01
066 01
385 x
Označiť zlý inzerát Chybnú kategóriu Ohodnotiť užívateľa Zmazať/Upraviť/Topovať
Na prenájom - priestor na prízemí 120m2 na ul. Tolstého v me - [29.9. 2025]MEGA realitná kancelária exkluzívne ponúka na prenájom obchodný priestor na ul. Tolstého v meste Humenné. Obchodný priestor sa nachádza na prízemí v budove s vlastnými parkovacími miestami.
Základné informácie:
- veľkosť priestoru 124 m2
- nájom 1135€/ mesiac s DPH
- energie 200€/mesiac s DPH ...
1 135 €
Humenné
066 01
066 01
429 x
Označiť zlý inzerát Chybnú kategóriu Ohodnotiť užívateľa Zmazať/Upraviť/Topovať
PRENÁJOM-Obchodný priestor v centre mesta Humenné-420m2 - [22.9. 2025]Typ: Obchodné priestory
Ulica: námestie slobody
Mestská časť: Centrum
Obec: Humenné
MEGA realitná kancelária Humenné Vám ponúka exkluzívnu nehnuteľnosť na Vašu obchodnú činnosť priamo v centre mesta Humenné.
Priestor sa nachádza na Námestí Slobody v objekte bývalej budovy ...
2 000 €
Humenné
066 01
066 01
973 x
Označiť zlý inzerát Chybnú kategóriu Ohodnotiť užívateľa Zmazať/Upraviť/Topovať







