Rodinný dom, Vranov n. T., Rezidenčné bývanie, novostavba
- TOP - [15.10. 2025]Zmazať/ Upraviť/ Topovať











Typ: Rodinný dom
Ulica: Soľ
Obec: Vranov nad Topľou
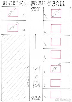
TRENDY Reality s.r.o., ponúkajú na predaj výhradne (iba u nás) posledné dva domy v obci Soľ na pozemku o výmere 554 m2, z toho podiel na cestu a chodník je 114 m2. Cena domu je 134 000 €, cena pozemku je 35 000 €. Ide o rezidenčné bývanie, kde celý pozemok bude oplotený, vrátane s bránou na diaľkové ovládanie. Rodinný dom pozostáva z obývacej izby prepojenej na kuchyňu, troch spálni, kúpeľne s WC, samostatného WC, technickej miestnosti, špajze, chodby a vstupnej chodby. Zastávaná plocha domu je 124 m2, podlahová plocha domu je 102 m2. Konštrukcia domu je z kvádrov YTONG 30, strecha je valbová, krytina je z betónovej škridle, stierky sadrové, pod sadrovými stierkami je v celom dome osadená sklo textilná mriežka (ktorá zabraňuje práskaniu omietky), okna sú plastové sedem komorové z izolačným trojsklom. Fasáda domu je zateplená 15 cm polystyrénom a ukončená silikónovou omietkou. Vykurovanie je podlahové, kotlom na elektrinu. Dom sa odovzdáva v stave HOLODOMU. V dome budú osadené zásuvky, vypínače, vonkajšie osvetlenie na rohoch domu, predpríprava na vonkajšie osvetlenie, vstupne bezpečnostné dvere, hromozvod, v kúpeľni je spravená predpríprava na sprchový kút, vaňu a umývadlo, v obývacej izbe sú dve francúzske okna, z kuchyne vchod do špajze. Dom je napojený na verejnú vodu a kanalizáciu a elektrinu. Dom je vybavený rekuperačnými jednotkami v obývacej izbe a v kúpeľní na diaľkové ovládanie. V technickej miestnosti sa nachádza hlavný rozvádzač elektriny s ističmi. Vstúp k domu je už z vybudovanej cesty a chodníka. Občianska vybavenosť: MŠ, ZŠ, pošta, reštaurácia. Bližšie informácie Vám poskytneme na t. č. 0911 236022.
Status: aktívne
Vlastníctvo: osobné
Plocha predzáhradky: 60 m2
Plocha pozemku: 554 m2
Typ zeme: rovina
Teritórium: Intravilán
Úžitková plocha: 102 m2
Zastavaná plocha: 124 m2
Podlahová plocha: 102 m2
Stav: novostavba
Počet izieb: 4
Energetický certifikát: A
Energetická náročnosť budovy: Energetický ekonomický
Typ budovy: bloková konštrukcia
Typ výbavy: nevybavený
Špajza: áno
Rok výstavby: 2025
Rok kolaudácie: 2026
Celková plocha: 554 m2
Orientácia: juhozápad
Inžinierske siete: áno
Voda: áno
Elektrika: áno
Kanalizácia: áno
Voda - na pozemku: áno
Elektrika - na pozemku: áno
Kanalizácia - na pozemku - kanalizácia: áno
Vykurovanie - podlahové: áno
Internet: áno
Optická sieť: áno
Linka na video:
https://dropbox.com/scl/fi/kh5brcn7tifqwggwrws2z/Reziden-n-B-vanie-So-4.mp4?rlkey=yx2y3et8p6qybkk9uc5z37v7i&dl=0
Status: aktívne
Vlastníctvo: osobné
Plocha predzáhradky: 60 m2
Plocha pozemku: 554 m2
Typ zeme: rovina
Teritórium: Intravilán
Úžitková plocha: 102 m2
Zastavaná plocha: 124 m2
Podlahová plocha: 102 m2
Stav: novostavba
Počet izieb: 4
Energetický certifikát: A
Energetická náročnosť budovy: Energetický ekonomický
Typ bu
Ulica: Soľ
Obec: Vranov nad Topľou
TRENDY Reality s.r.o., ponúkajú na predaj výhradne (iba u nás) posledné dva domy v obci Soľ na pozemku o výmere 554 m2, z toho podiel na cestu a chodník je 114 m2. Cena domu je 134 000 €, cena pozemku je 35 000 €. Ide o rezidenčné bývanie, kde celý pozemok bude oplotený, vrátane s bránou na diaľkové ovládanie. Rodinný dom pozostáva z obývacej izby prepojenej na kuchyňu, troch spálni, kúpeľne s WC, samostatného WC, technickej miestnosti, špajze, chodby a vstupnej chodby. Zastávaná plocha domu je 124 m2, podlahová plocha domu je 102 m2. Konštrukcia domu je z kvádrov YTONG 30, strecha je valbová, krytina je z betónovej škridle, stierky sadrové, pod sadrovými stierkami je v celom dome osadená sklo textilná mriežka (ktorá zabraňuje práskaniu omietky), okna sú plastové sedem komorové z izolačným trojsklom. Fasáda domu je zateplená 15 cm polystyrénom a ukončená silikónovou omietkou. Vykurovanie je podlahové, kotlom na elektrinu. Dom sa odovzdáva v stave HOLODOMU. V dome budú osadené zásuvky, vypínače, vonkajšie osvetlenie na rohoch domu, predpríprava na vonkajšie osvetlenie, vstupne bezpečnostné dvere, hromozvod, v kúpeľni je spravená predpríprava na sprchový kút, vaňu a umývadlo, v obývacej izbe sú dve francúzske okna, z kuchyne vchod do špajze. Dom je napojený na verejnú vodu a kanalizáciu a elektrinu. Dom je vybavený rekuperačnými jednotkami v obývacej izbe a v kúpeľní na diaľkové ovládanie. V technickej miestnosti sa nachádza hlavný rozvádzač elektriny s ističmi. Vstúp k domu je už z vybudovanej cesty a chodníka. Občianska vybavenosť: MŠ, ZŠ, pošta, reštaurácia. Bližšie informácie Vám poskytneme na t. č. 0911 236022.
Status: aktívne
Vlastníctvo: osobné
Plocha predzáhradky: 60 m2
Plocha pozemku: 554 m2
Typ zeme: rovina
Teritórium: Intravilán
Úžitková plocha: 102 m2
Zastavaná plocha: 124 m2
Podlahová plocha: 102 m2
Stav: novostavba
Počet izieb: 4
Energetický certifikát: A
Energetická náročnosť budovy: Energetický ekonomický
Typ budovy: bloková konštrukcia
Typ výbavy: nevybavený
Špajza: áno
Rok výstavby: 2025
Rok kolaudácie: 2026
Celková plocha: 554 m2
Orientácia: juhozápad
Inžinierske siete: áno
Voda: áno
Elektrika: áno
Kanalizácia: áno
Voda - na pozemku: áno
Elektrika - na pozemku: áno
Kanalizácia - na pozemku - kanalizácia: áno
Vykurovanie - podlahové: áno
Internet: áno
Optická sieť: áno
Linka na video:
https://dropbox.com/scl/fi/kh5brcn7tifqwggwrws2z/Reziden-n-B-vanie-So-4.mp4?rlkey=yx2y3et8p6qybkk9uc5z37v7i&dl=0
Status: aktívne
Vlastníctvo: osobné
Plocha predzáhradky: 60 m2
Plocha pozemku: 554 m2
Typ zeme: rovina
Teritórium: Intravilán
Úžitková plocha: 102 m2
Zastavaná plocha: 124 m2
Podlahová plocha: 102 m2
Stav: novostavba
Počet izieb: 4
Energetický certifikát: A
Energetická náročnosť budovy: Energetický ekonomický
Typ bu
|
|
Kontaktovať inzerenta e-mailom
Kontaktovať e-mailom môže iba overený užívateľ.
Overenie je zadarmo.
Vaše telefónne číslo *
Kontaktovať e-mailom môže iba overený užívateľ.
Overenie je zadarmo.
Vaše telefónne číslo *