REZERVOVANÉ Novostavba Rodinného domu v obci Košecké Podhra
- [13.10. 2025]Zmazať/ Upraviť/ Topovať























Ponúkame Vám na predaj veľmi zaujímavú Novostavbu Rodinného domu typu bungalov v obci Košecké Podhradie. Dom sa nachádza na rovinatom pozemku o celkovej výmere 559 m2 a vedie k nemu obecná prístupová cesta. V súčasnosti je vo fáze vnútorných úprav a odovzdaný bude vo forme holodom.
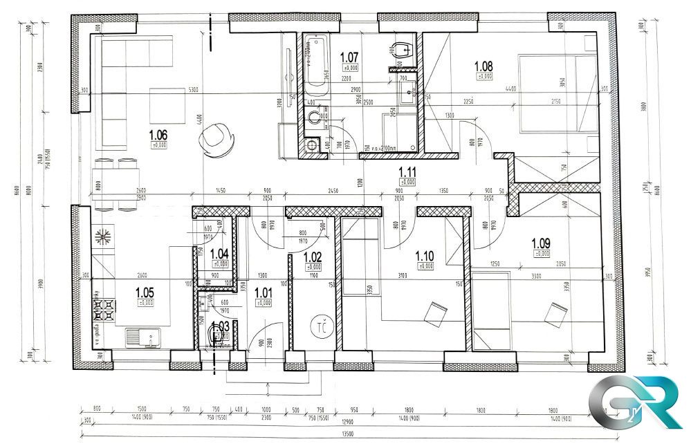
Dom má úžitkovú plochu 97 m2 a dispozične je veľmi dobre riešený. Pozostáva zo vstupnej chodby, priestrannej obývacej izby, ktorá je moderne spojená s kuchynskou a jedálenskou časťou, spálne, 2 detských izieb, kúpeľne s WC, samostatného WC, komory a terasy (3,5 x 5,5 m) so vstupom cez obývaciu izbu .
Postavený je z pórobetónových tvárnic (Porfix), okná sú plastové a ako strešná krytina bol použitý plochý falcovaný plech . Zateplenie strechy je realizované minerálnou vatou (400 mm), steny budú zateplené fasádnym polystyrénom (EPS 200 mm). Vstupné dvere do domu sú hliníkové.
Kúrenie v dome je riešené ako podlahové, zdrojom bude elektrický kotol. Ohrev vody bude zabezpečovať elektrický bojler, ktorému budú pomáhať fotovoltické panely umiestnené na streche. Dom je vybavený komínom pre možnosť napojenia výhrevného zariadenia na tuhé palivo (možnosť kúrenia krbom či kachľami). Spĺňať bude aktuálne požadovanú energetickú triedu A-0.
V susedstve nehnuteľnosti sú postavené 2 rodinné domy podobného charakteru.
Veľkou výhodou je prekrásna prírodná lokalita, v ktorej sa nehnuteľnosť nachádza. Obec Košecké Podhradie sa nachádza 9 km od okresného mesta Ilava v Strážovskej hornatine, v údolí Podhradského potoka. V blízkosti nehnuteľnosti je detské ihrisko, v obci sa nachádza základná škola s materskou školou, potraviny a ďalšia občianska vybavenosť.
--
Cena nehnuteľnosti je konečná vrátane kúpnej (nájomnej) zmluvy, kolkov a hypotekárneho poradenstva.
Viac informácií Vám rád poskytne maklér 0903 296 559 alebo 0903 527 757 (centrála spoločnosti)
Dom má úžitkovú plochu 97 m2 a dispozične je veľmi dobre riešený. Pozostáva zo vstupnej chodby, priestrannej obývacej izby, ktorá je moderne spojená s kuchynskou a jedálenskou časťou, spálne, 2 detských izieb, kúpeľne s WC, samostatného WC, komory a terasy (3,5 x 5,5 m) so vstupom cez obývaciu izbu .
Postavený je z pórobetónových tvárnic (Porfix), okná sú plastové a ako strešná krytina bol použitý plochý falcovaný plech . Zateplenie strechy je realizované minerálnou vatou (400 mm), steny budú zateplené fasádnym polystyrénom (EPS 200 mm). Vstupné dvere do domu sú hliníkové.
Kúrenie v dome je riešené ako podlahové, zdrojom bude elektrický kotol. Ohrev vody bude zabezpečovať elektrický bojler, ktorému budú pomáhať fotovoltické panely umiestnené na streche. Dom je vybavený komínom pre možnosť napojenia výhrevného zariadenia na tuhé palivo (možnosť kúrenia krbom či kachľami). Spĺňať bude aktuálne požadovanú energetickú triedu A-0.
V susedstve nehnuteľnosti sú postavené 2 rodinné domy podobného charakteru.
Veľkou výhodou je prekrásna prírodná lokalita, v ktorej sa nehnuteľnosť nachádza. Obec Košecké Podhradie sa nachádza 9 km od okresného mesta Ilava v Strážovskej hornatine, v údolí Podhradského potoka. V blízkosti nehnuteľnosti je detské ihrisko, v obci sa nachádza základná škola s materskou školou, potraviny a ďalšia občianska vybavenosť.
--
Cena nehnuteľnosti je konečná vrátane kúpnej (nájomnej) zmluvy, kolkov a hypotekárneho poradenstva.
Viac informácií Vám rád poskytne maklér 0903 296 559 alebo 0903 527 757 (centrála spoločnosti)
|
| |||||||||||||||||||||||||||||||
Kontaktovať inzerenta e-mailom
Kontaktovať e-mailom môže iba overený užívateľ.
Overenie je zadarmo.
Vaše telefónne číslo *
Kontaktovať e-mailom môže iba overený užívateľ.
Overenie je zadarmo.
Vaše telefónne číslo *


