Predaj novopostaveného obchodného skladu 300 m² pri diaľnici
- [13.10. 2025]Zmazať/ Upraviť/ Topovať











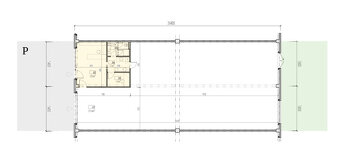
Realitná kancleária KNB - Komerčné Nehnuteľnosti Bratislava ponúka na predaj novopostavený samostatný obchodno-skladový priestor o úžitkovej ploche 300 m2 v objekte, ktorý je umiestnený v dynamicky sa rozvíjajúcej zóne pri diaľnici D1 SENEC. Priestor je jedinečný 3-kombináciou jeho účelu využitia a to pre obchod, sklad, ako aj kanceláriu.
➔ Priestory môžu byť využité pre rôzne zamerania biznisu, či už autodielňa, predajňa, sklad, ľahká výroba, e-shop a ďalšie...
➔ Objekt, v ktorom predávame jednotlivé priestory pozostáva zo siedmych samostatných priestorov.
Súčastou každého samostatného priestoru o výmere 300 m2 je:
▪︎ 1x samostatná veľká kancelária s presklenou fasádou a klientským vstupo
▪︎ kancelárske zázemie, ktoré je tvorené kancelárskym vstavkom s toaletou, sprchou a výlevko
▪︎ 1x malá miestnosť, v ktorej bude predpríprava na kuchynskú linku
▪︎ 1x samostatná malá miestnosť / kancelária
▪︎ Pred priestorom bude mať každý majiteľ jednotky vo vlastníctve 1/1 štyri parkovacie státia
▪︎ Súčasťou vlastníctva 1/1 bude okrem vymedzeného priestoru aj malý pozemok v zadnej časti jednotky
▪︎ Každý majiteľ jednotky bude mať podiel na pozemku pod celým objektom, ako aj na spoločných prístupových a vnútro areáloch komunikáciách
Technické parametre priestorov:
▪︎ Celý objekt je postavený z kvalitných stavebných materiálov
▪︎ Vykurovanie a chladenie je zabezpečené prostredníctvom tepelných čerpadiel
▪︎ Vnútorná výška priestorov je cca 7 metrov
▪︎ Každý priestor je vybavený prevádzkovou elektrickou bránou a preskleným klientským vstupom
▪︎ Podlaha z lešteného betónu s vysokým nosným zaťažením
▪︎ Kancelárie môžu byť vybudované priamo v priestore s možnosťou ich rozšírenia do 2 nadzemných podlaží
▪︎ Dostatočné parkovacie kapacity priamo pred priestorom
▪︎ Nadštandardný príkon elektrickej energie 40 kW
▪︎ Priestor má samostatne merateľné a regulovateľné médiá
▪︎ Ukončenie výstavby, vrátane kolaudácie, do konca roka 2025
Lokalita:
▪︎ Areál sa nachádza v zóne logistického centra Senec - Prologis a je situovaný po ľavej strane cesty II/503 v smere Senec - diaľnica D1 - Pezinok
▪︎ Komfortné a rýchle napojenie na diaľnicu D1
Postup pri predaji:
▪︎ Po podpise Zmluvy o budúcej kúpnej zmluve sa skladá záloha vo výške 10% z predajnej ceny priestoru a po kolaudácii objektu, ako aj vonkajších spevnených plôch sa dopláca zostatok 90%.
▪︎ Predajná cena je 1650 € bez DPH / m2 / 495 000 € bez DPH - jednotka 300 m2
Dôležitá poznámka:
▪︎ V súčasnosti sú voľné posledné 2 jednotky s označením D4 a D5.
➔ Video prezentáciu nájdete na tomto odkaze:
1drv.ms/v/c/0711076fb7764844/EbU64r7i5IZDujVnpqAnK4gBQCLsaUNvdB2wb8YOVaQ-Hw?e=uOl1ih
➔ Kompletnú fotodokumentác
➔ Priestory môžu byť využité pre rôzne zamerania biznisu, či už autodielňa, predajňa, sklad, ľahká výroba, e-shop a ďalšie...
➔ Objekt, v ktorom predávame jednotlivé priestory pozostáva zo siedmych samostatných priestorov.
Súčastou každého samostatného priestoru o výmere 300 m2 je:
▪︎ 1x samostatná veľká kancelária s presklenou fasádou a klientským vstupo
▪︎ kancelárske zázemie, ktoré je tvorené kancelárskym vstavkom s toaletou, sprchou a výlevko
▪︎ 1x malá miestnosť, v ktorej bude predpríprava na kuchynskú linku
▪︎ 1x samostatná malá miestnosť / kancelária
▪︎ Pred priestorom bude mať každý majiteľ jednotky vo vlastníctve 1/1 štyri parkovacie státia
▪︎ Súčasťou vlastníctva 1/1 bude okrem vymedzeného priestoru aj malý pozemok v zadnej časti jednotky
▪︎ Každý majiteľ jednotky bude mať podiel na pozemku pod celým objektom, ako aj na spoločných prístupových a vnútro areáloch komunikáciách
Technické parametre priestorov:
▪︎ Celý objekt je postavený z kvalitných stavebných materiálov
▪︎ Vykurovanie a chladenie je zabezpečené prostredníctvom tepelných čerpadiel
▪︎ Vnútorná výška priestorov je cca 7 metrov
▪︎ Každý priestor je vybavený prevádzkovou elektrickou bránou a preskleným klientským vstupom
▪︎ Podlaha z lešteného betónu s vysokým nosným zaťažením
▪︎ Kancelárie môžu byť vybudované priamo v priestore s možnosťou ich rozšírenia do 2 nadzemných podlaží
▪︎ Dostatočné parkovacie kapacity priamo pred priestorom
▪︎ Nadštandardný príkon elektrickej energie 40 kW
▪︎ Priestor má samostatne merateľné a regulovateľné médiá
▪︎ Ukončenie výstavby, vrátane kolaudácie, do konca roka 2025
Lokalita:
▪︎ Areál sa nachádza v zóne logistického centra Senec - Prologis a je situovaný po ľavej strane cesty II/503 v smere Senec - diaľnica D1 - Pezinok
▪︎ Komfortné a rýchle napojenie na diaľnicu D1
Postup pri predaji:
▪︎ Po podpise Zmluvy o budúcej kúpnej zmluve sa skladá záloha vo výške 10% z predajnej ceny priestoru a po kolaudácii objektu, ako aj vonkajších spevnených plôch sa dopláca zostatok 90%.
▪︎ Predajná cena je 1650 € bez DPH / m2 / 495 000 € bez DPH - jednotka 300 m2
Dôležitá poznámka:
▪︎ V súčasnosti sú voľné posledné 2 jednotky s označením D4 a D5.
➔ Video prezentáciu nájdete na tomto odkaze:
1drv.ms/v/c/0711076fb7764844/EbU64r7i5IZDujVnpqAnK4gBQCLsaUNvdB2wb8YOVaQ-Hw?e=uOl1ih
➔ Kompletnú fotodokumentác
|
|
Kontaktovať inzerenta e-mailom
Kontaktovať e-mailom môže iba overený užívateľ.
Overenie je zadarmo.
Vaše telefónne číslo *
Kontaktovať e-mailom môže iba overený užívateľ.
Overenie je zadarmo.
Vaše telefónne číslo *