Na predaj 4i dom s terasou, tepelným čerpadlom, Topoľnica
- [13.10. 2025]Zmazať/ Upraviť/ Topovať










Realitná kancelária Mgr. Edita Vörösová - IntExReal Vám ponúka na predaj novostavbu vo výstavbe, pred ukončením. Moderný, kvalitnou remeselnou prácou stavaný, premyslený projekt, priestranný 4 izbový rodinný dom s terasou, typu bungalov sa nachádza na pozemku 4,01 árov v novej časti obce Topoľnica. Náš dlhoročný partner, staviteľ nás tentokrát prekvapí s projektom , samostatne stojacimi rodinnými domami s energetickou triedou A0 – v stave holodom .
Technické vybavenie:
- Podlahové kúrenie s tepelným čerpadlom
- moderná dispozícia nám ponúka aj komoru/ šatník,
- technická miestnosť, ako aj
- pochôdzna povala / úložisko vytvorené cca na 15 m²/ .
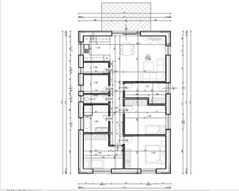
Dispozícia a legenda rodinného domu:
- Vstupná chodba – 7,10 m²
- Špajza - 2,75 m²
- Kuchyňa – 6,50 m²
- Obytná hala – 24,70 m²
- 1. Izba – 13,10 m²
- 2. Izba – 13,10 m²
- 1. Kúpeľňa – 6,90 m²
- Chodba – 8 m²
- 3. Izba – 11,80 m²
- WC – 2,25 m².
- Technická miestnosť – 4,50 m²
Popis rodinného domu:
- Obvodové murivo tehla TermoBRIK TD 300 PD P12 brúsená,
- Certifikovaný väzníkový krov, strešná krytina Bramac Renova
- Zateplenie obvodového muriva EPS 70F o hrúbke 150 mm
- Silikónová fasádna omietka – farebné prevedenie podľa vlastného výberu
- Plastové okná a dvere značky Gealan - trojsklo s jednostranným farebným prevedením
- vchodové dvere plné/mliečne celosklo s madlom
- otváracie terasové dvere
- kúrenie tepelné čerpadlo Samsung
- vnútorný termostat
- Podlahové kúrenie plasto-hliník priemer 16 mm
- Elektroinštalácia podľa projektovej dokumentácie
- Predpríprava na el. žalúzie
- Predpríprava na el. brány
- Predpríprava na videovrátnik
- Zásuvky a vypínače značky Legrand
- Sádrové omietky
- Cementové potery (zateplenie podlahy 140 mm polystyrén + 60 mm poter)
- Sádrokartonové stropy so zateplením fúkanou izoláciou Isover o hrúbke 400 mm
- Vytvorenie pochôdzneho úložného priestoru v podkroví o výmere cca 15 m2 s drevenými doskami
-Terénne úpravy – zrovnanie zeminy
- odvodnenie domu drenážnymi rúrami do trativodu
- pripojenia na všetky dostupné inžinierske siete - vodovod, elektrina, kanalizácia.
V tomto štádiu je možnosť požiadať o menšie zmeny podľa predstavy, požiadavky kupujúceho.
Základná cena za holostav zahrňuje :dokončený rodinný dom, pripojený na všetky IS, , fasádnu úpravu / farba podľa výberu/, terénne úpravy, interiér maľovanie na bielo, zástrčky.
V prípade záujmu dom sa dokončí na kľúč podľa dohody.
Úžitková plocha, 100,7 m² + terasa 12 m².
Zastavaná plocha: 126 m².
Plocha pozemku: 401 m².
Kontakty:
Mgr. Edita Vörösová – IntExReal
Edita Vörösová, Mgr.
home stager, realitný poradca
mobil: +421 911 557 822, 0902 625 115, 0911 557 822
Technické vybavenie:
- Podlahové kúrenie s tepelným čerpadlom
- moderná dispozícia nám ponúka aj komoru/ šatník,
- technická miestnosť, ako aj
- pochôdzna povala / úložisko vytvorené cca na 15 m²/ .
Dispozícia a legenda rodinného domu:
- Vstupná chodba – 7,10 m²
- Špajza - 2,75 m²
- Kuchyňa – 6,50 m²
- Obytná hala – 24,70 m²
- 1. Izba – 13,10 m²
- 2. Izba – 13,10 m²
- 1. Kúpeľňa – 6,90 m²
- Chodba – 8 m²
- 3. Izba – 11,80 m²
- WC – 2,25 m².
- Technická miestnosť – 4,50 m²
Popis rodinného domu:
- Obvodové murivo tehla TermoBRIK TD 300 PD P12 brúsená,
- Certifikovaný väzníkový krov, strešná krytina Bramac Renova
- Zateplenie obvodového muriva EPS 70F o hrúbke 150 mm
- Silikónová fasádna omietka – farebné prevedenie podľa vlastného výberu
- Plastové okná a dvere značky Gealan - trojsklo s jednostranným farebným prevedením
- vchodové dvere plné/mliečne celosklo s madlom
- otváracie terasové dvere
- kúrenie tepelné čerpadlo Samsung
- vnútorný termostat
- Podlahové kúrenie plasto-hliník priemer 16 mm
- Elektroinštalácia podľa projektovej dokumentácie
- Predpríprava na el. žalúzie
- Predpríprava na el. brány
- Predpríprava na videovrátnik
- Zásuvky a vypínače značky Legrand
- Sádrové omietky
- Cementové potery (zateplenie podlahy 140 mm polystyrén + 60 mm poter)
- Sádrokartonové stropy so zateplením fúkanou izoláciou Isover o hrúbke 400 mm
- Vytvorenie pochôdzneho úložného priestoru v podkroví o výmere cca 15 m2 s drevenými doskami
-Terénne úpravy – zrovnanie zeminy
- odvodnenie domu drenážnymi rúrami do trativodu
- pripojenia na všetky dostupné inžinierske siete - vodovod, elektrina, kanalizácia.
V tomto štádiu je možnosť požiadať o menšie zmeny podľa predstavy, požiadavky kupujúceho.
Základná cena za holostav zahrňuje :dokončený rodinný dom, pripojený na všetky IS, , fasádnu úpravu / farba podľa výberu/, terénne úpravy, interiér maľovanie na bielo, zástrčky.
V prípade záujmu dom sa dokončí na kľúč podľa dohody.
Úžitková plocha, 100,7 m² + terasa 12 m².
Zastavaná plocha: 126 m².
Plocha pozemku: 401 m².
Kontakty:
Mgr. Edita Vörösová – IntExReal
Edita Vörösová, Mgr.
home stager, realitný poradca
mobil: +421 911 557 822, 0902 625 115, 0911 557 822
|
|
Kontaktovať inzerenta e-mailom
Kontaktovať e-mailom môže iba overený užívateľ.
Overenie je zadarmo.
Vaše telefónne číslo *
Kontaktovať e-mailom môže iba overený užívateľ.
Overenie je zadarmo.
Vaše telefónne číslo *