4-izb.byt, 111m2+75m2 terasa, St.Spišská cesta, KE-Sever
- TOP - [13.10. 2025]Zmazať/ Upraviť/ Topovať











Realitní makléri Peter Heriban a Klaudia Heribanová Vám ponúkajú exkluzívne na predaj priestranný 4-izbový byt na ulici Stará Spišská cesta 38 v Košiciach, Košice-časť Sever, v lukratívnej pokojnej lokalite tejto mestskej časti, nad Kalváriou.
Projekt Villa Kalvária: unikátny bytový dom ponúka 12 nadštandardných bytových jednotiek v uzavretom areáli, v ktorom majiteľom bytov poslúži aj vonkajší domček so saunou, kuchynkou a posedením + detské ihrisko. Tiež vlastný záhon na pestovanie.
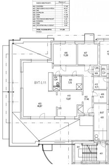
4 izbový byt má úžitkovú plochu 111m2+plocha terás, nachádza sa na 3.poschodí z 3, v zateplenom bytovom dome s výťahom.
Dispozícia bytu:
-kuchyňa prepojená s obývačkou
-3 samostatné spálne
-chodba, šatník,
-kúpeľňa s vaňou a sprchou, 2x WC
-2 uzavreté terasy, 1 veľká otvorená terasa
Byt bol pred 7 rokmi kúpený ako holobyt a bol kompletne dokončený na komfortné bývanie:
- kuchynská linka na mieru zn. Hanak so vstavanými spotrebičmi Siemens
- kúpelňa s vaňou a sprchovacím kútom, s práčkou a sušičkou
- drevené podlahy v izbách
- plastové okná, klimatizácia v obývačke
V cene bytu je aj 1 vnútorné parkovacie státie v garáži bytového domu a 1 vonkajšie parkovacie miesto.
V byte je umiestnené tepelné čerpadlo na ohrev vody a podlahové vykurovanie.
Byt je v osobnom vlastníctve-možná kúpa aj na hypotéku, orientácia bytu je JVZ.
Všetky potrebné informácie týkajúce sa nehnuteľnosti ako aj obhliadku Vám zabezpečia licencovaní realitný makléri Ing. Peter Heriban, tel. 0908796298 a Ing. Klaudia Heribanová, RSc, tel. 0908361627
Realitná kancelária Heriban reality, s.r.o.
Murgašova 3, 040 01 Košice
mobil:0908796298
e-mail: info@kosice-reality.sk
kosice-reality.sk
Projekt Villa Kalvária: unikátny bytový dom ponúka 12 nadštandardných bytových jednotiek v uzavretom areáli, v ktorom majiteľom bytov poslúži aj vonkajší domček so saunou, kuchynkou a posedením + detské ihrisko. Tiež vlastný záhon na pestovanie.
4 izbový byt má úžitkovú plochu 111m2+plocha terás, nachádza sa na 3.poschodí z 3, v zateplenom bytovom dome s výťahom.
Dispozícia bytu:
-kuchyňa prepojená s obývačkou
-3 samostatné spálne
-chodba, šatník,
-kúpeľňa s vaňou a sprchou, 2x WC
-2 uzavreté terasy, 1 veľká otvorená terasa
Byt bol pred 7 rokmi kúpený ako holobyt a bol kompletne dokončený na komfortné bývanie:
- kuchynská linka na mieru zn. Hanak so vstavanými spotrebičmi Siemens
- kúpelňa s vaňou a sprchovacím kútom, s práčkou a sušičkou
- drevené podlahy v izbách
- plastové okná, klimatizácia v obývačke
V cene bytu je aj 1 vnútorné parkovacie státie v garáži bytového domu a 1 vonkajšie parkovacie miesto.
V byte je umiestnené tepelné čerpadlo na ohrev vody a podlahové vykurovanie.
Byt je v osobnom vlastníctve-možná kúpa aj na hypotéku, orientácia bytu je JVZ.
Všetky potrebné informácie týkajúce sa nehnuteľnosti ako aj obhliadku Vám zabezpečia licencovaní realitný makléri Ing. Peter Heriban, tel. 0908796298 a Ing. Klaudia Heribanová, RSc, tel. 0908361627
Realitná kancelária Heriban reality, s.r.o.
Murgašova 3, 040 01 Košice
mobil:0908796298
e-mail: info@kosice-reality.sk
kosice-reality.sk
|
|
Kontaktovať inzerenta e-mailom
Kontaktovať e-mailom môže iba overený užívateľ.
Overenie je zadarmo.
Vaše telefónne číslo *
Kontaktovať e-mailom môže iba overený užívateľ.
Overenie je zadarmo.
Vaše telefónne číslo *