Kancelárske priestory na Námestí SNP, v blízkosti Kamenného
- [12.10. 2025]Zmazať/ Upraviť/ Topovať










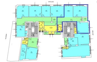
Ponúkame na prenájom kancelárske priestory v centre Bratislavy na Námestí SNP, Bratislava-Staré Mesto, v tesnej blízkosti Kamenné námestia. Priestory sa nachádzajú v polyfunkčnej budove s administratívnymi a obchodnými priestormi. Budova disponuje 1 podzemným podlažím a 8 nadzemnými (aj výťah).
Budova nedisponuje parkovacími miestami, ale v okolí je dostatočné množstvo verejných parkovacích možností.
K dispozícií sú napr. priestory:
5.NP orientácia na Kolársku: 133m2 priestor je dispozične rozdelený na 4 kancelárie. Celková cena nájmu vr. prevádzkových nákladov a energií je 2.682,73 € + DPH.
7.NP orientácia na Špitálsku: 80m2 priestor je dispozične rozdelený na 3 kancelárie. Celková cena nájmu vr. prevádzkových nákladov a energií je 1.610,43 € + DPH.
K dispozícii kuchynka, sociálne zariadenia, klimatizácia, výťah. Budova sa nachádza v úplnom centre Bratislavy.
Záujemca neplatí províziu.
Viac informácii u uvedeného realitného manažéra.
Budova nedisponuje parkovacími miestami, ale v okolí je dostatočné množstvo verejných parkovacích možností.
K dispozícií sú napr. priestory:
5.NP orientácia na Kolársku: 133m2 priestor je dispozične rozdelený na 4 kancelárie. Celková cena nájmu vr. prevádzkových nákladov a energií je 2.682,73 € + DPH.
7.NP orientácia na Špitálsku: 80m2 priestor je dispozične rozdelený na 3 kancelárie. Celková cena nájmu vr. prevádzkových nákladov a energií je 1.610,43 € + DPH.
K dispozícii kuchynka, sociálne zariadenia, klimatizácia, výťah. Budova sa nachádza v úplnom centre Bratislavy.
Záujemca neplatí províziu.
Viac informácii u uvedeného realitného manažéra.
|
|
Kontaktovať inzerenta e-mailom
Kontaktovať e-mailom môže iba overený užívateľ.
Overenie je zadarmo.
Vaše telefónne číslo *
Kontaktovať e-mailom môže iba overený užívateľ.
Overenie je zadarmo.
Vaše telefónne číslo *
Podobné inzeráty

Typ: Kancelárie
Ulica: vysoka
Obec: Bratislava-Staré Mesto
Ponúkame na prenájom veľký priestor o výmere 187 m2 v centre Bratislavy na VYSOKEJ ul. :
- priestor má výmeru 187 m2 - tvorí ho veľká miestnosť o výmere 102 m2, 2 kancelárie o výmere 30 a 35 m2 a príslušenstvo (kuchynka, 2x WC )
- hla ...
1 980 €
Bratislava
811 09
811 09
162 x
Označiť zlý inzerát Chybnú kategóriu Ohodnotiť užívateľa Zmazať/Upraviť/Topovať

Realitná kancelária Vaše Reality Vám ponúka na prenájom krásny a jedinečný, exkluzívny administratívny priestor nachádzajúci sa v lukratívnej časti Starého mesta na Jakubovom námestí v blízkosti OC EUROVEA. Do úplného centra je to do 5 minút peši. K priestoru prislúcha 1 parkovacie státie vo vnútrob ...
1 644 €
Bratislava
811 09
811 09
45 x
Označiť zlý inzerát Chybnú kategóriu Ohodnotiť užívateľa Zmazať/Upraviť/Topovať

Typ: Kancelárie
Ulica: Leškova
Obec: Bratislava-Staré Mesto
Ponúkame na prenájom výnimočný staromestský 3 izbový byt s vysokými stropmi s celkovou výmerou 104.00 m2 s úžasnou atmosférou.
Byt v staromestskom štýle je situovaný na 1/3 poschodí, nachádza sa v absolútnom srdci Starého mesta n ...
1 050 €
Bratislava
811 09
811 09
224 x
Označiť zlý inzerát Chybnú kategóriu Ohodnotiť užívateľa Zmazať/Upraviť/Topovať

Typ: Kancelárske priestory
Ulica: Zámocká
Obec: Bratislava-Staré Mesto
Kancelársky priestor: Nachádza sa na prvom nadzemnom podlaží v polyfunkčnej budove. Skladá sa z recepcie, priestrannej zasadacej miestnosti, presklenej predsiene, kancelárie, kuchynky a zázemia. Vstup do priestoru je zabezpe ...
1 150 €
Bratislava
811 09
811 09
211 x
Označiť zlý inzerát Chybnú kategóriu Ohodnotiť užívateľa Zmazať/Upraviť/Topovať

Typ: Kancelárske priestory
Ulica: Michalská
Obec: Bratislava-Staré Mesto
REI PREMIUM powered by GlamReality ponúka na prenájom kancelárske priestory s výmerou 167,92 m² vo vyhľadávanej administratívnej budove na Michalskej ulici.
Ak hľadáte reprezentatívne kancelárske priestory s kompletným zá ...
1 700 €
Bratislava
811 09
811 09
115 x
Označiť zlý inzerát Chybnú kategóriu Ohodnotiť užívateľa Zmazať/Upraviť/Topovať