Na predaj stavebný pozemok s IS aj stav. povolením Bernoláko
- [11.10. 2025]Zmazať/ Upraviť/ Topovať







Licencovaná realitná kancelária Orin real Vám ponúka na predaj rožný stavebný pozemok v Bernolákove v novej časti s rozlohou 475m2 so šírkou pozemku 15m a dĺžkou 33m.
Je to roh ulice Kondrótova a Čučoriedková, nová ulica s aktuálnou výstavbou na približne rovnakých pozemkoch.
Priamo na pozemok sú zavedené všetky inžinierske siete - plyn, elektrina, voda.
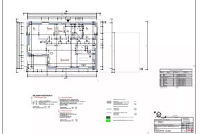
Pozemok je aj so stavebným povolením na RD na fotkách a podoryse, približná cena v stave holodom bola 70.000,- Eur podľa tohto projeku v stave na komplet okrem okien je 145.000,- Eur. Pozemok je ihneď k dispozícii s možnosťou okamžitej výstavby.
Obec Bernolákovo je rozvíjajúca sa obec s bohatou občnianskou vybavenosťou. V blízkosti v obci do 5min autom nájdete: poštu, obecný úrad - nové informačné centrum, matrika, školy, škôlky, strednú školu, reštaurácie, ihriská pre deti aj fotbalove ihrisko a novú športovú halu, Billa a obchodné centrum drogerie Pepco, Lidl a veľa iného...Okresné mesto Senec, pod ktoré Bernolákovo patrí ponúka kompletnú občiansku vybavenosť.
Cena pozemku je 189.900,- Eur + provízia RK 4.000,- Eur
0915957390
Je to roh ulice Kondrótova a Čučoriedková, nová ulica s aktuálnou výstavbou na približne rovnakých pozemkoch.
Priamo na pozemok sú zavedené všetky inžinierske siete - plyn, elektrina, voda.
Pozemok je aj so stavebným povolením na RD na fotkách a podoryse, približná cena v stave holodom bola 70.000,- Eur podľa tohto projeku v stave na komplet okrem okien je 145.000,- Eur. Pozemok je ihneď k dispozícii s možnosťou okamžitej výstavby.
Obec Bernolákovo je rozvíjajúca sa obec s bohatou občnianskou vybavenosťou. V blízkosti v obci do 5min autom nájdete: poštu, obecný úrad - nové informačné centrum, matrika, školy, škôlky, strednú školu, reštaurácie, ihriská pre deti aj fotbalove ihrisko a novú športovú halu, Billa a obchodné centrum drogerie Pepco, Lidl a veľa iného...Okresné mesto Senec, pod ktoré Bernolákovo patrí ponúka kompletnú občiansku vybavenosť.
Cena pozemku je 189.900,- Eur + provízia RK 4.000,- Eur
0915957390
|
|
Kontaktovať inzerenta e-mailom
Kontaktovať e-mailom môže iba overený užívateľ.
Overenie je zadarmo.
Vaše telefónne číslo *
Kontaktovať e-mailom môže iba overený užívateľ.
Overenie je zadarmo.
Vaše telefónne číslo *
Podobné inzeráty

Gravitas ponúka exkluzívne na predaj stavebný pozemok pre rodinný dom v peknom prostredí Bernolákova na ulici Višňová.
- samotný pozemok má výmeru 700m2
- rozmery sú cca 26m x 27m
- ½ podiel s výmerou 70,5m2 na parcele príjazdovej cesty
- 1/8 podiel s výmerou 186,5m2 na parcele hlavnej príst ...
Dohodou
Senec
900 27
900 27
124 x
Označiť zlý inzerát Chybnú kategóriu Ohodnotiť užívateľa Zmazať/Upraviť/Topovať

Typ: Pozemok pre rodinné domy
Ulica: Pribinova
Obec: Bernolákovo
RK Quality SC je tu pre Vás vyše 20 rokov. Garantujeme vrátenie rezervačného poplatku keď Vám nevybavíme hypotéku, pričom neplatíte poplatky za znalecký posudok ani za kolky na katastri.
Lokalita: ul. Pribinova, Bernolákovo. ...
189 000 €
Senec
900 27
900 27
805 x
Označiť zlý inzerát Chybnú kategóriu Ohodnotiť užívateľa Zmazať/Upraviť/Topovať

Ponúkame na predaj SP v starej časti obce Bernolákovo v blízkosti nákupného centra BILLA,výmera 12 á,všetky inžinierske siete.Na pozemku je starý rodinný dom.Dohoda možná Bližšie info na maila tel.0918 108 037
350 000 €
Senec
900 27
900 27
749 x
Označiť zlý inzerát Chybnú kategóriu Ohodnotiť užívateľa Zmazať/Upraviť/Topovať

TUreality ponúkajú zaujímavý stavebný pozemok s výmerou 1450 m2. Pozemok je rovinatý a má šírku 14 m. Na pozemku je postavený starý menší dom so súpisným číslom z pálených tehál. Na pozemok je dovedený verejný rozvod elektriny, vodovo a plynovod. Na ulici je verejná kanalizácia. V záhrade je starý ...
295 000 €
Senec
900 27
900 27
669 x
Označiť zlý inzerát Chybnú kategóriu Ohodnotiť užívateľa Zmazať/Upraviť/Topovať

Predám stavebný pozemok, ulica Kondrótova, obec Bernolákovo.
Výmera pozemku je 662 m2 (cca 19,5 x 34 m), číslo pozemku 5272.
Na pozemku je možné ihneď začať stavať.
Jedná sa o rovinatý pozemok, kde sú novovybudované, skolaudované inžinierske siete – priamo na pozemku sú voda, kanalizáci ...
264 800 €
Senec
900 27
900 27
706 x
Označiť zlý inzerát Chybnú kategóriu Ohodnotiť užívateľa Zmazať/Upraviť/Topovať

Ponúkame na predaj ornú pôdu s výmerou 1023 m2 a priamym prístupom z Grobskej ulice s hranicami na Dukelskej ulici.
Pozemok sa nachádza v zastavanom území obce Bernolákovo, v blízkosti hlavnej Seneckej cesty, čo zabezpečuje výbornú dostupnosť.
Podľa schváleného funkčného využitia a existujúci ...
102 300 €
Senec
900 27
900 27
1046 x
Označiť zlý inzerát Chybnú kategóriu Ohodnotiť užívateľa Zmazať/Upraviť/Topovať

Na predaj stavebný pozemok so všetkými sieťami v stabilizovanom území obce Bernolákovo o celkovej výmere 732 m2, Poľovnícka ulica.
Prístup k pozemku je po vysporiadanej betónovej ceste.
Šírka pozemku : 13 metrov. Pozemok je oplotený. Na susedných pozmekoch stoja rodinné domy.
Siete sú na pozemk ...
214 900 €
Senec
900 27
900 27
1210 x
Označiť zlý inzerát Chybnú kategóriu Ohodnotiť užívateľa Zmazať/Upraviť/Topovať

Spoluvlastníci ponúkajú na predaj priestranný pozemok o výmere 929 m² (16 m x 56 m) v lokalite Bernolákovo, len 10 km od Bratislavy.
Na pozemku sa nachádza menší starší dom, ktorý je možné využiť na rekonštrukciu alebo zbúrať a využiť plochu pre novostavbu. Vďaka veľkorysým rozmerom je pozemok vh ...
169 900 €
Senec
900 27
900 27
1211 x
Označiť zlý inzerát Chybnú kategóriu Ohodnotiť užívateľa Zmazať/Upraviť/Topovať

GRAFT ponúka na predaj stavebný pozemok – Bernolákovo, 697 m²
Ponúkame Vám jedinečnú príležitosť kúpy stavebného pozemku o rozlohe 697 m² v
lukratívnej a vyhľadávanej časti obce Bernolákovo.
Parametre pozemku:
- určený na individuálnu výstavbu rodinného domu (max. 2 podlažia)
- šírka: 19 m
- ...
261 375 €
Senec
900 27
900 27
560 x
Označiť zlý inzerát Chybnú kategóriu Ohodnotiť užívateľa Zmazať/Upraviť/Topovať

Realitná kancelária PLUS REALITY Vám ponúka exkluzívne na predaj stavebný pozemok v atraktívnej a tichej lokalite obce Bernolákovo.
Pozemok sa nachádza v slepej uličke, čo zaručuje maximálne súkromie a pokojné rodinné bývanie bez rušnej premávky.
Parametre pozemku:
• výmera: 461 m²
• rovinat ...
188 500 €
Senec
900 27
900 27
457 x
Označiť zlý inzerát Chybnú kategóriu Ohodnotiť užívateľa Zmazať/Upraviť/Topovať