Na predaj Apartmánový dom v Trenčianskych Tepliciach,Trenčín
- [10.10. 2025]Zmazať/ Upraviť/ Topovať











Typ: Apartmánový dom
Mestská časť: Baračka
Obec: Trenčianske Teplice
Kancelária Realitné Očko Vám ponúka na predaj rozostavanú stavbu apartmánového domu vo vyhľadávanej časti kúpeľného mesta Trenčianske Teplice – v lokalite Kamenická dolina.
Táto jedinečná príležitosť sa nachádza vo východnej časti mesta, iba 10 km od krajského mesta Trenčín, s výbornou dostupnosťou po spevnenej obecnej komunikácii. Objekt je situovaný v nádhernom prírodnom prostredí, v bezprostrednej blízkosti lesa, čo zaručuje pokoj, súkromie a atraktívne výhľady.
Pozemky majú spolu výmeru 1 946 m², sú rovinaté a poskytujú dostatok priestoru pre budúce parkovanie až pre 20 áut, čo je ideálne pre rekreačné alebo podnikateľské využitie. Výhodou je jednoduchý prístup a možnosť viacerých vstupov do budovy.
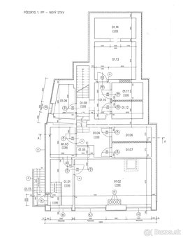
Rozostavaná stavba s pôdorysom v tvare L je vo fáze cca 70 % dokončenosti a pozostáva z:
1 podzemného podlažia
3 nadzemných podlaží
Celková zastavaná plocha: 492 m²
Dispozičné riešenie objektu:
1PP – 157,32 m²: priestory využiteľné na technické zázemie, skladové jednotky, wellness alebo menšiu gastro prevádzku
1NP – 420,29 m²: 4 apartmány s vlastnými balkónmi
2NP – 420,29 m²: 5 apartmánov, každý s balkónom
3NP – 420,29 m²: 5 apartmánov s prístupom na priestranné terasy
Každý apartmán bol projektovaný s dôrazom na súkromie, komfort a dostatok denného svetla. K dispozícii sú dva samostatné vstupy do budovy, obytné podkrovie a v projekte sú zahrnuté aj skladové priestory pre každý apartmán v suteréne.
Využitie stavby je mimoriadne flexibilné – môže slúžiť na:
dlhodobé alebo krátkodobé ubytovanie
rekreačný komplex s wellness zónou
gastro prevádzku či firemné školenia
nájomné bývanie alebo apartmánový hotel
💡 Prípojky: elektrina, voda, kanalizácia, plyn – všetky prípojky sú vybudované. Pri vstupe sa nachádza trafostanica, čo zabezpečuje bezproblémové napojenie.
📌 Nehnuteľnosť je bez tiarch, má spracovanú projektovú dokumentáciu k opätovnému podaniu žiadosti na stavebné povolenie, tiež znalecký posudok a je pripravená na pokračovanie výstavby.
📸 Viac fotografií na vyžiadanie.
🎥 Video obhliadka: https://youtube.com/shorts/lp4XRY8Kl5E?si=lYmlqurCHdo9dA9w
💰 Cena: na vyžiadanie
Neváhajte a využite túto výnimočnú investičnú príležitosť v atraktívnej kúpeľnej oblasti Slovenska.
Pre viac informácií a obhliadku kontaktujte:
Ing. Petra Potecká
📞 +421-944-271-009
Uprednostňujeme klientov, ktorí v prípade úveru využijú Naše finančné služby.
Realitné Očko – sme detailisti s citom pre priestor.
S nami vidíte to, čo iní prehliadajú.
Status: aktívne
Vlastníctvo: osobné
Úžitková plocha: 1400 m2
Zastavaná plocha: 492 m2
Podlahová plocha: 1631 m2
Skladová plocha: 155 m2
Stav: čiastočne prerobený
Počet izieb: 14
Energetický certifikát: žiadne
Typ budovy: zmiešané
Balkón: áno
Terasa: áno
Pivnica: áno
Sklad: áno
Rok výstavby: 2007
Mestská časť: Baračka
Obec: Trenčianske Teplice
Kancelária Realitné Očko Vám ponúka na predaj rozostavanú stavbu apartmánového domu vo vyhľadávanej časti kúpeľného mesta Trenčianske Teplice – v lokalite Kamenická dolina.
Táto jedinečná príležitosť sa nachádza vo východnej časti mesta, iba 10 km od krajského mesta Trenčín, s výbornou dostupnosťou po spevnenej obecnej komunikácii. Objekt je situovaný v nádhernom prírodnom prostredí, v bezprostrednej blízkosti lesa, čo zaručuje pokoj, súkromie a atraktívne výhľady.
Pozemky majú spolu výmeru 1 946 m², sú rovinaté a poskytujú dostatok priestoru pre budúce parkovanie až pre 20 áut, čo je ideálne pre rekreačné alebo podnikateľské využitie. Výhodou je jednoduchý prístup a možnosť viacerých vstupov do budovy.
Rozostavaná stavba s pôdorysom v tvare L je vo fáze cca 70 % dokončenosti a pozostáva z:
1 podzemného podlažia
3 nadzemných podlaží
Celková zastavaná plocha: 492 m²
Dispozičné riešenie objektu:
1PP – 157,32 m²: priestory využiteľné na technické zázemie, skladové jednotky, wellness alebo menšiu gastro prevádzku
1NP – 420,29 m²: 4 apartmány s vlastnými balkónmi
2NP – 420,29 m²: 5 apartmánov, každý s balkónom
3NP – 420,29 m²: 5 apartmánov s prístupom na priestranné terasy
Každý apartmán bol projektovaný s dôrazom na súkromie, komfort a dostatok denného svetla. K dispozícii sú dva samostatné vstupy do budovy, obytné podkrovie a v projekte sú zahrnuté aj skladové priestory pre každý apartmán v suteréne.
Využitie stavby je mimoriadne flexibilné – môže slúžiť na:
dlhodobé alebo krátkodobé ubytovanie
rekreačný komplex s wellness zónou
gastro prevádzku či firemné školenia
nájomné bývanie alebo apartmánový hotel
💡 Prípojky: elektrina, voda, kanalizácia, plyn – všetky prípojky sú vybudované. Pri vstupe sa nachádza trafostanica, čo zabezpečuje bezproblémové napojenie.
📌 Nehnuteľnosť je bez tiarch, má spracovanú projektovú dokumentáciu k opätovnému podaniu žiadosti na stavebné povolenie, tiež znalecký posudok a je pripravená na pokračovanie výstavby.
📸 Viac fotografií na vyžiadanie.
🎥 Video obhliadka: https://youtube.com/shorts/lp4XRY8Kl5E?si=lYmlqurCHdo9dA9w
💰 Cena: na vyžiadanie
Neváhajte a využite túto výnimočnú investičnú príležitosť v atraktívnej kúpeľnej oblasti Slovenska.
Pre viac informácií a obhliadku kontaktujte:
Ing. Petra Potecká
📞 +421-944-271-009
Uprednostňujeme klientov, ktorí v prípade úveru využijú Naše finančné služby.
Realitné Očko – sme detailisti s citom pre priestor.
S nami vidíte to, čo iní prehliadajú.
Status: aktívne
Vlastníctvo: osobné
Úžitková plocha: 1400 m2
Zastavaná plocha: 492 m2
Podlahová plocha: 1631 m2
Skladová plocha: 155 m2
Stav: čiastočne prerobený
Počet izieb: 14
Energetický certifikát: žiadne
Typ budovy: zmiešané
Balkón: áno
Terasa: áno
Pivnica: áno
Sklad: áno
Rok výstavby: 2007
|
|
Kontaktovať inzerenta e-mailom
Kontaktovať e-mailom môže iba overený užívateľ.
Overenie je zadarmo.
Vaše telefónne číslo *
Kontaktovať e-mailom môže iba overený užívateľ.
Overenie je zadarmo.
Vaše telefónne číslo *