Nízkoenergetický rodinný dom s fotovoltaikou Veľký Šariš
- [10.10. 2025]Zmazať/ Upraviť/ Topovať











🌿 Priestranný nízkoenergetický rodinný dom s fotovoltaikou, tichá slepá ulica, 3 parkovacie miesta – komfortné bývanie pre rodinu
Ak hľadáte moderné, úsporné a pokojné bývanie s dostatkom priestoru a súkromia, tento dom je pre vás ako stvorený.
Ponúkame na predaj pekný 4-izbový rodinný dom s úžitkovou plochou 275 m² a obytnou plochou 140m² postavený na slnečnom pozemku o výmere 512 m².
Dom sa nachádza v tichej, slepej ulici, mimo rušného centra, no s dobrou dostupnosťou do mesta – ideálne miesto pre rodiny, ktoré túžia po pohodlí, pokoji a nízkych nákladoch na bývanie.
🏡 Premyslená dispozícia, priestor pre každého člena rodiny
Dom je dispozične riešený veľmi prakticky – s dôrazom na priestrannosť, svetlo a plynulý prechod medzi interiérom a exteriérom:
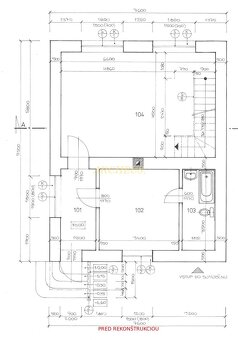
Prízemie: vstupná chodba, priestranná obývacia izba s krbom prepojená s kuchyňou, kúpeľňa s WC a priestranná prekrytá terasa, ktorá poskytuje príjemné miesto na relax počas celého roka.
Poschodie: hlavná spálňa, dve detské izby, samostatné WC a balkón s výhľadom do záhrady.
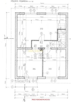
Suterén / pivnica (25 m²) ponúka dostatok úložného priestoru, ideálne miesto na dielňu, sklad či technickú miestnosť.
⚡ Energeticky úsporné a moderné bývanie
Dom bol navrhnutý s dôrazom na ekonomickú prevádzku a energetickú nezávislosť.
Na streche sú inštalované fotovoltaické panely o výkone 10,4 kW (iba 1 rok staré), ktoré výrazne znižujú mesačné náklady.
Systém je napojený na virtuálnu batériu, čo znamená, že prebytočná energia sa ukladá a v zimnom období ju môžete spätne čerpať – úspora až 50 % ročnej spotreby.
✅ Mesačné náklady na prevádzku domu sa pohybujú okolo 100 €, čo z neho robí mimoriadne úsporné bývanie.
✅ Vykurovanie je infračervené podlahové a nástenné, doplnené o krb s teplovzdušnými prieduchmi (14 kW), ktorý dokáže vykúriť celý dom.
🧱 Kvalitná stavba z poctivých materiálov
Obvodové murivo: prízemie z nepálenej tehly (hrúbka 50 cm), poschodie IPOR – izolácia polystyrén, vrátane zateplenia strechy, stropu, podlahy.
Použité materiály zaručujú dlhú životnosť, nízke tepelné straty a zdravú klímu v interiéri.
• Okná: plastové s dreveným dekorom
• Podlahy: drevené plávajúce
• Interiérové dvere a kuchynská linka z masívu
• Elektrina, mestská kanalizácia, mestská voda + vlastná kopaná studňa
• Optický internet s rozvodmi do každej izby
Pozemok a exteriér
Pozemok s rozlohou 512 m² je rovinatý, slnečný a kompletne oplotený.
K domu vedie prístup z obecnej cesty, na pozemku sa nachádza kopaná studňa so zavlažovacím systémom a čerpadlom.
Studňová voda je po rozbore bezchybná.
Mestská voda prechádza cez katexovú úpravovňu, vďaka čomu je vždy kvalitná a mäkká.
Súčasťou pozemku sú tri parkovacie miesta, z toho jedno je kryté prístreškom.
Záhrada s plochou 237 m² ponúka dostatok priestoru na oddych, záhradkárčenie alebo detské hry.
💎 Prečo si zamilujete práve tento dom
✔ Tichá a bezpečná lokalita – slepá ulica bez premávky
✔ Nízke náklady na energie – fotovoltaika + infra vykur
Ak hľadáte moderné, úsporné a pokojné bývanie s dostatkom priestoru a súkromia, tento dom je pre vás ako stvorený.
Ponúkame na predaj pekný 4-izbový rodinný dom s úžitkovou plochou 275 m² a obytnou plochou 140m² postavený na slnečnom pozemku o výmere 512 m².
Dom sa nachádza v tichej, slepej ulici, mimo rušného centra, no s dobrou dostupnosťou do mesta – ideálne miesto pre rodiny, ktoré túžia po pohodlí, pokoji a nízkych nákladoch na bývanie.
🏡 Premyslená dispozícia, priestor pre každého člena rodiny
Dom je dispozične riešený veľmi prakticky – s dôrazom na priestrannosť, svetlo a plynulý prechod medzi interiérom a exteriérom:
Prízemie: vstupná chodba, priestranná obývacia izba s krbom prepojená s kuchyňou, kúpeľňa s WC a priestranná prekrytá terasa, ktorá poskytuje príjemné miesto na relax počas celého roka.
Poschodie: hlavná spálňa, dve detské izby, samostatné WC a balkón s výhľadom do záhrady.
Suterén / pivnica (25 m²) ponúka dostatok úložného priestoru, ideálne miesto na dielňu, sklad či technickú miestnosť.
⚡ Energeticky úsporné a moderné bývanie
Dom bol navrhnutý s dôrazom na ekonomickú prevádzku a energetickú nezávislosť.
Na streche sú inštalované fotovoltaické panely o výkone 10,4 kW (iba 1 rok staré), ktoré výrazne znižujú mesačné náklady.
Systém je napojený na virtuálnu batériu, čo znamená, že prebytočná energia sa ukladá a v zimnom období ju môžete spätne čerpať – úspora až 50 % ročnej spotreby.
✅ Mesačné náklady na prevádzku domu sa pohybujú okolo 100 €, čo z neho robí mimoriadne úsporné bývanie.
✅ Vykurovanie je infračervené podlahové a nástenné, doplnené o krb s teplovzdušnými prieduchmi (14 kW), ktorý dokáže vykúriť celý dom.
🧱 Kvalitná stavba z poctivých materiálov
Obvodové murivo: prízemie z nepálenej tehly (hrúbka 50 cm), poschodie IPOR – izolácia polystyrén, vrátane zateplenia strechy, stropu, podlahy.
Použité materiály zaručujú dlhú životnosť, nízke tepelné straty a zdravú klímu v interiéri.
• Okná: plastové s dreveným dekorom
• Podlahy: drevené plávajúce
• Interiérové dvere a kuchynská linka z masívu
• Elektrina, mestská kanalizácia, mestská voda + vlastná kopaná studňa
• Optický internet s rozvodmi do každej izby
Pozemok a exteriér
Pozemok s rozlohou 512 m² je rovinatý, slnečný a kompletne oplotený.
K domu vedie prístup z obecnej cesty, na pozemku sa nachádza kopaná studňa so zavlažovacím systémom a čerpadlom.
Studňová voda je po rozbore bezchybná.
Mestská voda prechádza cez katexovú úpravovňu, vďaka čomu je vždy kvalitná a mäkká.
Súčasťou pozemku sú tri parkovacie miesta, z toho jedno je kryté prístreškom.
Záhrada s plochou 237 m² ponúka dostatok priestoru na oddych, záhradkárčenie alebo detské hry.
💎 Prečo si zamilujete práve tento dom
✔ Tichá a bezpečná lokalita – slepá ulica bez premávky
✔ Nízke náklady na energie – fotovoltaika + infra vykur
|
|
Kontaktovať inzerenta e-mailom
Kontaktovať e-mailom môže iba overený užívateľ.
Overenie je zadarmo.
Vaše telefónne číslo *
Kontaktovať e-mailom môže iba overený užívateľ.
Overenie je zadarmo.
Vaše telefónne číslo *