|7i izbový RD so záhradou Most pri Bratislave, pozemok 1133
- [10.10. 2025]Zmazať/ Upraviť/ Topovať











Spoločnosť LEXXUS a.s. ponúka na predaj dvojgeneračný 7 izb. rodinný dom s veľkou a upravenou záhradou v pôvodnej centrálnej zástavbe obce MOST PRI BRATISLAVE, Budovateľská ul., celková výmera pozemku 1133 m2, zastavaná plocha 424 m2, celková úžitková plocha 339 m2, vnútorná plocha domu je 300 m2, 2x garáž + vonkajšie parkovacie miesta na pozemku, stavebný materiál tehla + zateplenie.
ŠTANDARD:
plastové okná, vlastné kúrenie- plynový kotol Protherm, podlahy: dlažba a laminátové parkety, 2x funkčné a zachovalé KL, 2x kúpeľne po rekonštrukcii, 2x pôvodné WC, TV internet a KTV Telekom, betónové nepriehľadné oplotenie pozemku, vstupná brána + garážová brána na diaľkové ovládanie,
všetky inžinierske siete: mestská voda, kanalizácia, elektrina 400 V, plyn, 4x vonkajšie parkovacie státia- zámková dlažba, kovová vstupná brána na diaľkové ovládanie, na záhrade sa nachádza zámková dlažba a altánok, upravená a udržiavaná záhrada s trávnikom a okrasnými drevinami, vlastná studňa, závlaha.
POPIS:
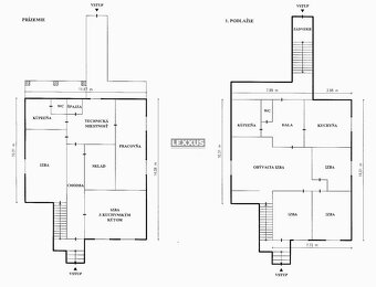
PRÍZEMIE:
vstup, technická respektíve komunikačná miestnosť, špajza, samostatné WC , kúpeľňa, izba, pracovňa, komunikačná chodba, veľká izba s kuchynskou časťou, východ do záhrady.
1 PODLAŽIE:
zádverie s presklenou pavlačou, hala, samostatná kuchyňa, kúpeľňa a samostatné WC, veľkometrážna denná časť je rozdelená na obývací priestor a jedálenskú časť, 3x nepriechodné izby.
Kupujúcemu ponúka nehnuteľnosť vďaka svojej dispozícii a veľkosti viaceré možnosti užívania, napr. na dvojgeneračné bývanie.
Nehnuteľnosť je možné užívať ako 2 samostatné bytové jednotky, taktiež je vhodná na kombináciu bývania a podnikania napr. ako sídlo firmy respektíve kancelárske priestory a bývanie.
Rozdielový faktor pri tejto nehnuteľnosti je veľká záhrada s pestrou a udržiavanou flórou, tvorenou trávnikom, stromami a okrasnými drevinami.
Kompletná občianska vybavenosť : základná škola, materská škola, potraviny, všeobecný lekár, pošta, reštaurácie, kostol, kultúrny dom, integrovaná autobusová doprava do Bratislavy.
Obec Most pri Bratislave má v súčasnosti už bezproblémové dopravné napojenie a dostupnosť do Bratislavy vďaka obchvatu D4 a R7 , ktorý výrazne pozitívne ovplyvnil aj pôvodný prístup cez mestskú časť BA II.- Vrakuňa.
V prípade záujmu o doplňujúce informácie alebo o obhliadku nás kľudne kontaktujte. Aj na HÚ, kúpou voľný.
Cena predmetnej nehnuteľnosti je 450.000,-eur.
Dodatok k cene: , vrátane provízie
Zastavaná plocha: 424m²
Obytná plocha: 339m²
Celková rozloha: 339m²
Rozloha pozemku: 1133m²
Úžitková plocha: 339m²
Vlastníctvo: osobné
Stav: po rekonštrukcii
Odvoz odpadu: áno - separovaný
Voda: studňa a vodovod
El. napätie: 230/400V
Plyn: áno
Kanalizácia: áno
Internet: TV káblový rozvod
Kúpeľňa: áno
Vykurovanie: vlastné - plyn
Terasa: áno
Pivnica: nie
Garáž: áno - 2 autá
Parkovanie: vlastné vyhradené
Inžinierske
ŠTANDARD:
plastové okná, vlastné kúrenie- plynový kotol Protherm, podlahy: dlažba a laminátové parkety, 2x funkčné a zachovalé KL, 2x kúpeľne po rekonštrukcii, 2x pôvodné WC, TV internet a KTV Telekom, betónové nepriehľadné oplotenie pozemku, vstupná brána + garážová brána na diaľkové ovládanie,
všetky inžinierske siete: mestská voda, kanalizácia, elektrina 400 V, plyn, 4x vonkajšie parkovacie státia- zámková dlažba, kovová vstupná brána na diaľkové ovládanie, na záhrade sa nachádza zámková dlažba a altánok, upravená a udržiavaná záhrada s trávnikom a okrasnými drevinami, vlastná studňa, závlaha.
POPIS:
PRÍZEMIE:
vstup, technická respektíve komunikačná miestnosť, špajza, samostatné WC , kúpeľňa, izba, pracovňa, komunikačná chodba, veľká izba s kuchynskou časťou, východ do záhrady.
1 PODLAŽIE:
zádverie s presklenou pavlačou, hala, samostatná kuchyňa, kúpeľňa a samostatné WC, veľkometrážna denná časť je rozdelená na obývací priestor a jedálenskú časť, 3x nepriechodné izby.
Kupujúcemu ponúka nehnuteľnosť vďaka svojej dispozícii a veľkosti viaceré možnosti užívania, napr. na dvojgeneračné bývanie.
Nehnuteľnosť je možné užívať ako 2 samostatné bytové jednotky, taktiež je vhodná na kombináciu bývania a podnikania napr. ako sídlo firmy respektíve kancelárske priestory a bývanie.
Rozdielový faktor pri tejto nehnuteľnosti je veľká záhrada s pestrou a udržiavanou flórou, tvorenou trávnikom, stromami a okrasnými drevinami.
Kompletná občianska vybavenosť : základná škola, materská škola, potraviny, všeobecný lekár, pošta, reštaurácie, kostol, kultúrny dom, integrovaná autobusová doprava do Bratislavy.
Obec Most pri Bratislave má v súčasnosti už bezproblémové dopravné napojenie a dostupnosť do Bratislavy vďaka obchvatu D4 a R7 , ktorý výrazne pozitívne ovplyvnil aj pôvodný prístup cez mestskú časť BA II.- Vrakuňa.
V prípade záujmu o doplňujúce informácie alebo o obhliadku nás kľudne kontaktujte. Aj na HÚ, kúpou voľný.
Cena predmetnej nehnuteľnosti je 450.000,-eur.
Dodatok k cene: , vrátane provízie
Zastavaná plocha: 424m²
Obytná plocha: 339m²
Celková rozloha: 339m²
Rozloha pozemku: 1133m²
Úžitková plocha: 339m²
Vlastníctvo: osobné
Stav: po rekonštrukcii
Odvoz odpadu: áno - separovaný
Voda: studňa a vodovod
El. napätie: 230/400V
Plyn: áno
Kanalizácia: áno
Internet: TV káblový rozvod
Kúpeľňa: áno
Vykurovanie: vlastné - plyn
Terasa: áno
Pivnica: nie
Garáž: áno - 2 autá
Parkovanie: vlastné vyhradené
Inžinierske
|
|
Kontaktovať inzerenta e-mailom
Kontaktovať e-mailom môže iba overený užívateľ.
Overenie je zadarmo.
Vaše telefónne číslo *
Kontaktovať e-mailom môže iba overený užívateľ.
Overenie je zadarmo.
Vaše telefónne číslo *