Pripravujeme na predaj - rozostavaný rodinný dom/chalupu n
- [10.10. 2025]Zmazať/ Upraviť/ Topovať







Trojpodlažný zrubový dom s garážou a potenciálom na rekreačné bývanie – dokončite si ho podľa seba vrátane wellness
Predstavte si miesto, kde sa spoja vôňa dreva, pokoj hôr a komfort moderného bývania. Ponúkame Vám výnimočný trojpodlažný dom v štádiu uzatvorenej hrubej stavby – ideálny projekt pre tých, ktorí hľadajú priestor na život aj oddych v srdci prírody, s výbornou dostupnosťou do známeho lyžiarskeho strediska.
Dom ponúka kombináciu kvalitnej murovanéj základne a zrubovej nadstavby, ktorá vytvára jedinečný rustikálny charakter. Je situovaný na rovinatom pozemku s kompletnými inžinierskymi sieťami. Vďaka svojej polohe je vhodný nielen na trvalé bývanie, ale aj ako víkendová chalupa či investícia na prenájom.
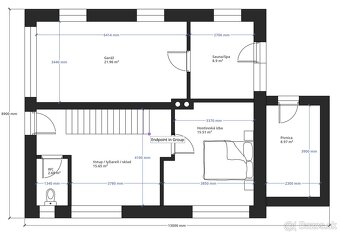
Dispozičné riešenie:
Prízemie (73 m²): garáž, vstupná hala, lyžiareň, technická miestnosť, samostatné WC, hosťovská izba alebo apartmán, miestnosť predpripravená pre wellness so saunou
Poschodie (73 m²): otvorená denná zóna – kuchyňa, jedáleň, obývačka so schodiskom, kúpeľňa a spálňa
Podkrovie (55 m²): dve samostatné izby a priestor pre druhú kúpeľňu
Dom je pripravený na dokončenie interiéru – novému majiteľovi ponúka slobodu a kreativitu dotvoriť si bývanie podľa vlastných predstáv, vkusu a potrieb.
Zaujímavosti v blízkom okolí:
Potraviny, reštaurácie, športové a voľnočasové možnosti do niekoľkých minút autom
Výborná dostupnosť k známemu lyžiarskemu stredisku
Tichá lokalita s prírodným rámcom, ideálna na rekreáciu aj celoročné bývanie
Presnú lokalitu nehnuteľnosti radi poskytneme na vyžiadanie.
Ak Vás táto ponuka zaujala a cítite, že by mohla byť základom Vášho vysnívaného domova alebo víkendového útočiska, neváhajte ma kontaktovať. Rád Vám poskytnem bližšie informácie a odpoviem na všetky Vaše otázky.
Stav nehnuteľnosti - Vo výstavbe. Nájdete na stránke realityMGM.sk pod ID ZA015730. Call centrum tel: 0910 86 11 86.
Predstavte si miesto, kde sa spoja vôňa dreva, pokoj hôr a komfort moderného bývania. Ponúkame Vám výnimočný trojpodlažný dom v štádiu uzatvorenej hrubej stavby – ideálny projekt pre tých, ktorí hľadajú priestor na život aj oddych v srdci prírody, s výbornou dostupnosťou do známeho lyžiarskeho strediska.
Dom ponúka kombináciu kvalitnej murovanéj základne a zrubovej nadstavby, ktorá vytvára jedinečný rustikálny charakter. Je situovaný na rovinatom pozemku s kompletnými inžinierskymi sieťami. Vďaka svojej polohe je vhodný nielen na trvalé bývanie, ale aj ako víkendová chalupa či investícia na prenájom.
Dispozičné riešenie:
Prízemie (73 m²): garáž, vstupná hala, lyžiareň, technická miestnosť, samostatné WC, hosťovská izba alebo apartmán, miestnosť predpripravená pre wellness so saunou
Poschodie (73 m²): otvorená denná zóna – kuchyňa, jedáleň, obývačka so schodiskom, kúpeľňa a spálňa
Podkrovie (55 m²): dve samostatné izby a priestor pre druhú kúpeľňu
Dom je pripravený na dokončenie interiéru – novému majiteľovi ponúka slobodu a kreativitu dotvoriť si bývanie podľa vlastných predstáv, vkusu a potrieb.
Zaujímavosti v blízkom okolí:
Potraviny, reštaurácie, športové a voľnočasové možnosti do niekoľkých minút autom
Výborná dostupnosť k známemu lyžiarskemu stredisku
Tichá lokalita s prírodným rámcom, ideálna na rekreáciu aj celoročné bývanie
Presnú lokalitu nehnuteľnosti radi poskytneme na vyžiadanie.
Ak Vás táto ponuka zaujala a cítite, že by mohla byť základom Vášho vysnívaného domova alebo víkendového útočiska, neváhajte ma kontaktovať. Rád Vám poskytnem bližšie informácie a odpoviem na všetky Vaše otázky.
Stav nehnuteľnosti - Vo výstavbe. Nájdete na stránke realityMGM.sk pod ID ZA015730. Call centrum tel: 0910 86 11 86.
|
|
Kontaktovať inzerenta e-mailom
Kontaktovať e-mailom môže iba overený užívateľ.
Overenie je zadarmo.
Vaše telefónne číslo *
Kontaktovať e-mailom môže iba overený užívateľ.
Overenie je zadarmo.
Vaše telefónne číslo *