Predam 1-izbovy byt 44 m2 centrum
- [10.10. 2025]Zmazať/ Upraviť/ Topovať






















Na predaj 1-izbový byt v centre mesta Zvolen – ulica Studenská
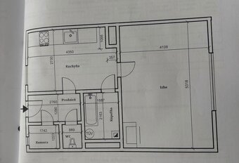
Ponúkam na predaj 1-izbový byt s výmerou 44 m² v skvelej lokalite priamo v centre mesta, len 2 minúty pešo od námestia. K bytu patrí aj murovaná pivnica s rozlohou cca 6 m².
Byt pozostáva zo samostatnej kúpeľne, WC, šatníka a kuchyne. Nachádza sa v pôvodnom stave – nový vlastník si ho môže prerobiť podľa vlastných predstáv.
V bytovom dome je spoločný dvor s ihriskom a altánkom, celý areál je oplotený.
Byt sa nachádza na 2. poschodí.
Bytový dom prešiel rekonštrukciou – má novú strechu, zateplenie, nové stúpačky a video vrátnik.
Realitné kancelárie prosím nevolať!
Viac informácií: 0911 777 507
Ponúkam na predaj 1-izbový byt s výmerou 44 m² v skvelej lokalite priamo v centre mesta, len 2 minúty pešo od námestia. K bytu patrí aj murovaná pivnica s rozlohou cca 6 m².
Byt pozostáva zo samostatnej kúpeľne, WC, šatníka a kuchyne. Nachádza sa v pôvodnom stave – nový vlastník si ho môže prerobiť podľa vlastných predstáv.
V bytovom dome je spoločný dvor s ihriskom a altánkom, celý areál je oplotený.
Byt sa nachádza na 2. poschodí.
Bytový dom prešiel rekonštrukciou – má novú strechu, zateplenie, nové stúpačky a video vrátnik.
Realitné kancelárie prosím nevolať!
Viac informácií: 0911 777 507
|
| |||||||||||||||||||||||||||||||
Kontaktovať inzerenta e-mailom
Kontaktovať e-mailom môže iba overený užívateľ.
Overenie je zadarmo.
Vaše telefónne číslo *
Kontaktovať e-mailom môže iba overený užívateľ.
Overenie je zadarmo.
Vaše telefónne číslo *

