880a Pozemky a haly v priemyselnom parku pri Košiciach
- [10.10. 2025]Zmazať/ Upraviť/ Topovať







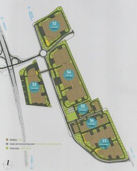
Ponúkame Vám
- stavebné pozemky s prípojkami na všetky médiá a asfaltovou prístupovou komunikáciou. (Minimálna rozloha 1 ha.)
- pomoc pri vybavovaní územného a stavebného povolenia na Vami požadovanú halu,
- možnosť výstavby haly podľa Vašich potrieb.
Umiestnenie: okrajová časť obce smer Prešov
Popis:
Logisticko – priemyselný park s rozlohou takmer 40 ha leží v polovici vzdialenosti medzi jestvujúcimi
diaľničnými križovatkami na D1 – Budimír a Lemešany, na hlavnej sídelno rozvojovej osi Košice – Prešov.
Hlavný príjazd do Logisticko-priemyselného parku je z diaľnice D1
Veľmi dobre napojiteľnosť na siete TI – elektrická energia, pitná voda, kanalizácia, a plyn.
V areály sa počíta okrem prístupových a obslužných komunikácii aj s plochou pre statickú dopravu, zeleň
a zázemie pre zamestnancov a návštevníkov (služby, stravovanie, prechodné ubytovanie a pod.)
Dostupnosť:
12 km od centra Košíc 18 km od centra Prešova 98 km od poľských hraníc 97 km od ukrajinských hraníc 38 km od maďarských hraníc 21 km od košického letiska 27 km od železničnej stanice Haniska
Využitie:
Logistika, nezávadná výroba, obchod, služby a distribúcia na medzinárodnej úrovni.
Svojou polohou dáva záujemcom možnosť umiestniť svoj biznis na križovatke dôležitých obchodných ciest
strednej a východnej Európy.
Počet obyvateľov v okruhu do 50 km od priemyselného parku je cca 1,3 mil.
- stavebné pozemky s prípojkami na všetky médiá a asfaltovou prístupovou komunikáciou. (Minimálna rozloha 1 ha.)
- pomoc pri vybavovaní územného a stavebného povolenia na Vami požadovanú halu,
- možnosť výstavby haly podľa Vašich potrieb.
Umiestnenie: okrajová časť obce smer Prešov
Popis:
Logisticko – priemyselný park s rozlohou takmer 40 ha leží v polovici vzdialenosti medzi jestvujúcimi
diaľničnými križovatkami na D1 – Budimír a Lemešany, na hlavnej sídelno rozvojovej osi Košice – Prešov.
Hlavný príjazd do Logisticko-priemyselného parku je z diaľnice D1
Veľmi dobre napojiteľnosť na siete TI – elektrická energia, pitná voda, kanalizácia, a plyn.
V areály sa počíta okrem prístupových a obslužných komunikácii aj s plochou pre statickú dopravu, zeleň
a zázemie pre zamestnancov a návštevníkov (služby, stravovanie, prechodné ubytovanie a pod.)
Dostupnosť:
12 km od centra Košíc 18 km od centra Prešova 98 km od poľských hraníc 97 km od ukrajinských hraníc 38 km od maďarských hraníc 21 km od košického letiska 27 km od železničnej stanice Haniska
Využitie:
Logistika, nezávadná výroba, obchod, služby a distribúcia na medzinárodnej úrovni.
Svojou polohou dáva záujemcom možnosť umiestniť svoj biznis na križovatke dôležitých obchodných ciest
strednej a východnej Európy.
Počet obyvateľov v okruhu do 50 km od priemyselného parku je cca 1,3 mil.
|
|
Kontaktovať inzerenta e-mailom
Kontaktovať e-mailom môže iba overený užívateľ.
Overenie je zadarmo.
Vaše telefónne číslo *
Kontaktovať e-mailom môže iba overený užívateľ.
Overenie je zadarmo.
Vaše telefónne číslo *
Podobné inzeráty

TOP LOKALITA! Predám pozemok v Košiciach – Trieda KVP – ideálny na reklamu 🚀
Na predaj pozemok 246 m² priamo pri jednej z najfrekventovanejších ciest v
Košiciach – Trieda KVP.
Denný priechod tisícov áut = maximálna viditeľnosť vašej reklamy!
📍 Vhodné na:
• Umiestnenie mobilnej chatky,stá ...
7 000 €
Košice
040 01
040 01
190 x
Označiť zlý inzerát Chybnú kategóriu Ohodnotiť užívateľa Zmazať/Upraviť/Topovať

Exkluzívne Vám ponúkame na predaj stavebný pozemok s výmerou 623 m² v obci Haniska pri Košiciach. Pozemok má rozmery cca 36 x 17 m a ponúka výnimočné možnosti pre výstavbu Vášho vlastného domova podľa Vašich predstáv.
Parcela je aktuálne nezastavaná. To dáva budúcim majiteľom možnosť plnej kre ...
99 999 €
Košice
040 01
040 01
248 x
Označiť zlý inzerát Chybnú kategóriu Ohodnotiť užívateľa Zmazať/Upraviť/Topovať

Exkluzívne Vám ponúkame na predaj stavebný pozemok s výmerou 552 m², ktorý je ideálny na výstavbu rodinných domov.
Všetky inžinierske siete sú priamo na pozemku.
Rozhodnutie o vydaní stavebného zámeru k plánovanej stavbe je v procese podania návrhu a získavania potrebných podkladov.
Podľa projekt ...
255 000 €
Košice
040 01
040 01
259 x
Označiť zlý inzerát Chybnú kategóriu Ohodnotiť užívateľa Zmazať/Upraviť/Topovať

Ponúkame exkluzívne na predaj priestrannú a slnečnú záhradu v tichej lokalite Košíc, len 5 minút od obľúbenej oblasti Panoráma.
Výmera pozemku: 775 m2
Charakter pozemku: mierne svahovitý, celý oplotený
Na pozemku sa nachádza:
• murovaná chatka s elektrickou prípojkou (IS – elektrina)
• s ...
39 000 €
Košice
040 01
040 01
269 x
Označiť zlý inzerát Chybnú kategóriu Ohodnotiť užívateľa Zmazať/Upraviť/Topovať
Dohodou
Košice
040 01
040 01
292 x
Označiť zlý inzerát Chybnú kategóriu Ohodnotiť užívateľa Zmazať/Upraviť/Topovať

Stavebný pozemok, blízko Košíc, Trebejov.
Ponúkame na predaj rovinatý stavebný pozemok o rozlohe 1000 m2 s možnosťou upraviť rozlohu pozemku /väčší alebo menší/ na základe geometrického plánu. Pozemok sa nachádza v obci Trebejov.
Pred pozemkom sa nachádza cesta, elektrina a plyn. Kvalitná vod ...
120 €
Košice
040 01
040 01
323 x
Označiť zlý inzerát Chybnú kategóriu Ohodnotiť užívateľa Zmazať/Upraviť/Topovať

Umiestnenie: Košice - Šaca, medzi obytnou zónou a areálom USS. Podľa platného projektu rýchlostnej komunikácie R2 sa pozemok následne ocitne vedľa R2. Projekt R2 zároveň obsahuje vybudovanie nového prístupu k pozemku. (viď mapa a foto). V súčasnosti vedie k pozemku poľná cesta na parcele vo vlastníc ...
21 €
Košice
040 01
040 01
178 x
Označiť zlý inzerát Chybnú kategóriu Ohodnotiť užívateľa Zmazať/Upraviť/Topovať

RealityKolesár predáva záhradu 415 m2, Košice Sever, KE I
ZĽAVA 10.000,-€ Záhrada 415 m2 sa nachádza nad Botanickou záhradou v lokalite Červený Breh – Žľaby, pri bývalej lyžiarskej zjazdovke v spodnej časti kopca na kraji prvá v poradí. Pozemok je veľmi slnečný s prístupom najprv po asfaltovej ce ...
45 000 €
Košice
040 01
040 01
284 x
Označiť zlý inzerát Chybnú kategóriu Ohodnotiť užívateľa Zmazať/Upraviť/Topovať

- predaj investičného pozemku
- výmera 2654m2
- lokalita: Košice - Nové Ťahanovce
- rozmery pozemku: 11 x 260m
- cena: €45,- /m2
TOP Real Košice ponúka na predaj zaujímavý investičný pozemok v Košiciach - Nové Ťahanovce.
Pozemok o výmere 2654m2 je rovinatý 12m široký postupne sa zužujúci na ...
45 €
Košice
040 01
040 01
312 x
Označiť zlý inzerát Chybnú kategóriu Ohodnotiť užívateľa Zmazať/Upraviť/Topovať

Hľadáte pokoj, kľud, ticho od mestského zhonu, stresu a náhlenia? Ste kutil a máte rád oddych s trochou fyzickej práce? Tomisreal má pre Vás na predaj v záhradkárskej oblasti Račí potok pozemok o rozlohe 371 m2 s 3 ročnou drevenou chatkou. Chatka je vybavená kuchynským kútom, sedačkou so stolíkom.
...
51 000 €
Košice
040 01
040 01
230 x
Označiť zlý inzerát Chybnú kategóriu Ohodnotiť užívateľa Zmazať/Upraviť/Topovať