Investičná príležitosť – budova v absolútnom centre Kežmarku
- [9.10. 2025]Zmazať/ Upraviť/ Topovať











Budova sa nachádza na Hlavnom námestí, v historickom centre Kežmarku.
Na severnom konci hlavnej ulice sa nachádza hrad Kežmarok, na južnom je radnica.
V lokalite je uzavretá zástavba postavená v 18. a začiatkom 19. storočia s prízemnými a jednoposchodovými, väčšinou pamiatkovo chránenými budovami. Podľa funkcie ide o obytné a komerčné nehnuteľnosti. Na prízemí vznikli stravovacie jednotky či predajne, na poschodí byty či kancelárie. Fasády väčšiny domov sú zrekonštruované a okolie je upravené.
Meštiansky dom sa nachádza na severozápadnej strane Hlavného námestia, ako súčasť uzavretej historickej zástavby. Súčasnú podobu nadobudol koncom 19. storočia prestavbou staršej, renesančnej stavby, ktorá pravdepodobne spájala 2 užšie stredoveké domy.
K budove prislúcha pozemok o rozlohe 768 m2, druh pozemku: zastavaná plocha a nádvorie.
Na pozemok je prístup možný z dvoch strán, z Hlavného námestia a z Kostolného námestia.
Pozemok je v priemere 11 m široký a 65 m dlhý.
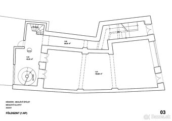
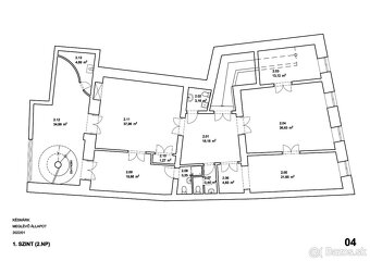
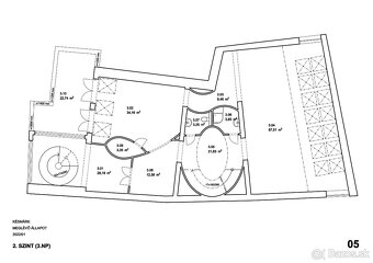
Čistá podlahová plocha budovy je 887 m2 (pivnica, prízemie, poschodie a dve podkrovia). Pivnica je stredovekého pôvodu, prízemie a poschodie boli postavené okolo roku 1910, pričom dve podkrovia boli dostavané v roku 1998.
Rozloha jednotlivých podlaží:
- 1.PP – 129,83 m2
- 1. NP – 216,76 m2
- 2. NP – 196,96 m2
- 3. NP – 226,59 m2
- 4. NP – 116,84 m2
Jedná s možnosti využitia je realizácia boutique hotela:
Komfortný hotel môže vzniknúť v existujúcej budove alebo v jej novej prístavbe. Podľa konceptu je na prízemí hotela reštaurácia, kaviareň a recepcia v suteréne wellness.
Prístavbu existujúcej budovy je možné riešiť:
▪ s novou budovou z Kostolného námestia s využitím povolených 50 % zastavanej kapacity
▪ alebo obnovou dvorového krídla, ak je to možné. (viac ako 50 %).
Na severnom konci hlavnej ulice sa nachádza hrad Kežmarok, na južnom je radnica.
V lokalite je uzavretá zástavba postavená v 18. a začiatkom 19. storočia s prízemnými a jednoposchodovými, väčšinou pamiatkovo chránenými budovami. Podľa funkcie ide o obytné a komerčné nehnuteľnosti. Na prízemí vznikli stravovacie jednotky či predajne, na poschodí byty či kancelárie. Fasády väčšiny domov sú zrekonštruované a okolie je upravené.
Meštiansky dom sa nachádza na severozápadnej strane Hlavného námestia, ako súčasť uzavretej historickej zástavby. Súčasnú podobu nadobudol koncom 19. storočia prestavbou staršej, renesančnej stavby, ktorá pravdepodobne spájala 2 užšie stredoveké domy.
K budove prislúcha pozemok o rozlohe 768 m2, druh pozemku: zastavaná plocha a nádvorie.
Na pozemok je prístup možný z dvoch strán, z Hlavného námestia a z Kostolného námestia.
Pozemok je v priemere 11 m široký a 65 m dlhý.
Čistá podlahová plocha budovy je 887 m2 (pivnica, prízemie, poschodie a dve podkrovia). Pivnica je stredovekého pôvodu, prízemie a poschodie boli postavené okolo roku 1910, pričom dve podkrovia boli dostavané v roku 1998.
Rozloha jednotlivých podlaží:
- 1.PP – 129,83 m2
- 1. NP – 216,76 m2
- 2. NP – 196,96 m2
- 3. NP – 226,59 m2
- 4. NP – 116,84 m2
Jedná s možnosti využitia je realizácia boutique hotela:
Komfortný hotel môže vzniknúť v existujúcej budove alebo v jej novej prístavbe. Podľa konceptu je na prízemí hotela reštaurácia, kaviareň a recepcia v suteréne wellness.
Prístavbu existujúcej budovy je možné riešiť:
▪ s novou budovou z Kostolného námestia s využitím povolených 50 % zastavanej kapacity
▪ alebo obnovou dvorového krídla, ak je to možné. (viac ako 50 %).
|
|
Kontaktovať inzerenta e-mailom
Kontaktovať e-mailom môže iba overený užívateľ.
Overenie je zadarmo.
Vaše telefónne číslo *
Kontaktovať e-mailom môže iba overený užívateľ.
Overenie je zadarmo.
Vaše telefónne číslo *