Predaj stavebný pozemok Karolyháza Maďarsko
- [9.10. 2025]Zmazať/ Upraviť/ Topovať




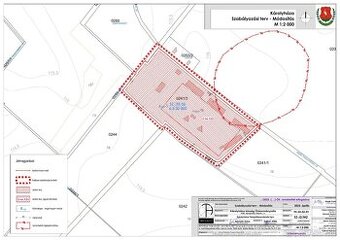
Výborná investičná príležitosť: ProvensReal s.r.o ponúka na predaj stavebný pozemok v obci Karolyháza v Maďarsku v tesnej blízkosti diaľnice v oboch smeroch od obce. Obec sa nachádza 40min od hlavného mesta SR a cca 80min autom od Wien a Budapest. Priamo v obci je železničná stanica. Toto miesto je známe ako projekt zlatého trojuholnika (Wien-BA-Brno) pričom momentálne táto oblasť zahŕňa mestá ako: Budapest-Bratislava-Wien-Gyor-Brno-Graz-Sopron. V tejto lokalite ktorá je dostupná autom od miest max. 80min žije viac ako 2,5mil obyvateľov čo robí z tejto lokality zaujímavé miesto plné obchodných príležitostí. V oboch smeroch od obce sa cca 25min nachádzajú termálne liečivé pramene a kúpele. .
Výmera pozemku: 42.000m2, šírka cca 130m.
Zastavanosť: 30%
Maximálna výška budov 9,5 m
Tichá lokalita na okraji obce.
Schválené v Územnom pláne:
- centrum sociálnej a zdravotnej starostlivosti
- domovy pre seniorov
- hospic
- Alzhaimerovo centrum
- kúpeľné a lekárske ošetrenia
- liečba a ubytovanie pre chronicky chorých pacientov
- rehabilitačné centrum
-realizácia termálneho vrtu na vykurovanie a zriadenie kúpaliska
- obytné budovy
Informácie k cene v RK
Pokiaľ vás táto ponuka zaujíma kontaktujte ma telefonicky na čísle: 0905493309 - Eva Morvayová
Realitná kancelária ProvensReal s.r.o je členom Združenia realitných kancelárií Slovenska
Všetky technické údaje podliehajú zmenám a sú založené na informáciách poskytnutých majiteľom.
Excellent investment opportunity: ProvensReal s.r.o offers for sale a building plot in the village of Karolyháza in Hungary in close proximity to the highway in both directions from the village. The village is located 40 minutes from Bratislava and about 80 minutes by car from Vienna and Budapest. There is a railway station directly in the village. This place is known as the Golden Triangle project (Vienna-Bratislava-Brno). This area also includes cities such as: Budapest-Bratislava-Vienna-Gyor-Brno-Graz-Sopron. In the area within 80 mins by car from the cities there are more than 2.5 million inhabitants. This makes this location an interesting place full of business opportunities. About 25 minutes in both directions from the village there are thermal healing springs and spas.
Land area: 42,000m2, width approx. 130m.
Building coverage: 30%
Maximum building height 9.5 m
Quiet location on the outskirts of the village.
Approved in the land registry:
- Social and health care center
- Elderly care home
- Hospice
- Alzheimer's center
- Spa and medical treatments
- Treatment and accommodation facility for chronically ill patients
- Rehabilitation center
- Thermal well drill for heating purposes and swimming pool built
- Residential buildings
Price information upon request.
If you are interested in this offer, please contact me by phone at: 0905493309 - Eva Morvayová
Real estate
Výmera pozemku: 42.000m2, šírka cca 130m.
Zastavanosť: 30%
Maximálna výška budov 9,5 m
Tichá lokalita na okraji obce.
Schválené v Územnom pláne:
- centrum sociálnej a zdravotnej starostlivosti
- domovy pre seniorov
- hospic
- Alzhaimerovo centrum
- kúpeľné a lekárske ošetrenia
- liečba a ubytovanie pre chronicky chorých pacientov
- rehabilitačné centrum
-realizácia termálneho vrtu na vykurovanie a zriadenie kúpaliska
- obytné budovy
Informácie k cene v RK
Pokiaľ vás táto ponuka zaujíma kontaktujte ma telefonicky na čísle: 0905493309 - Eva Morvayová
Realitná kancelária ProvensReal s.r.o je členom Združenia realitných kancelárií Slovenska
Všetky technické údaje podliehajú zmenám a sú založené na informáciách poskytnutých majiteľom.
Excellent investment opportunity: ProvensReal s.r.o offers for sale a building plot in the village of Karolyháza in Hungary in close proximity to the highway in both directions from the village. The village is located 40 minutes from Bratislava and about 80 minutes by car from Vienna and Budapest. There is a railway station directly in the village. This place is known as the Golden Triangle project (Vienna-Bratislava-Brno). This area also includes cities such as: Budapest-Bratislava-Vienna-Gyor-Brno-Graz-Sopron. In the area within 80 mins by car from the cities there are more than 2.5 million inhabitants. This makes this location an interesting place full of business opportunities. About 25 minutes in both directions from the village there are thermal healing springs and spas.
Land area: 42,000m2, width approx. 130m.
Building coverage: 30%
Maximum building height 9.5 m
Quiet location on the outskirts of the village.
Approved in the land registry:
- Social and health care center
- Elderly care home
- Hospice
- Alzheimer's center
- Spa and medical treatments
- Treatment and accommodation facility for chronically ill patients
- Rehabilitation center
- Thermal well drill for heating purposes and swimming pool built
- Residential buildings
Price information upon request.
If you are interested in this offer, please contact me by phone at: 0905493309 - Eva Morvayová
Real estate
|
|
Kontaktovať inzerenta e-mailom
Kontaktovať e-mailom môže iba overený užívateľ.
Overenie je zadarmo.
Vaše telefónne číslo *
Kontaktovať e-mailom môže iba overený užívateľ.
Overenie je zadarmo.
Vaše telefónne číslo *