Babony TRE | Predaj unikátneho 6-izbového mezonetu s dvoma t
- [9.10. 2025]Zmazať/ Upraviť/ Topovať











Babony TRE | predaj 6-izbového mezonetu s dvoma veľkými terasami priamo pod lesom – Karlova Ves, Sološnická ulica
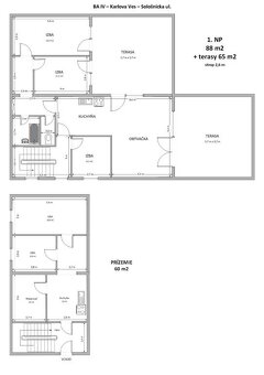
Jedinečná ponuka – dvojpodlažný 6-izbový terasovitý (átriový) byt s úžitkovou plochou 148 m² + 65 m² terás, nachádzajúci sa na úplnom vrchu Karlovej Vsi, v tichej a zelenej časti pri lese a turistických chodníkoch.
Dispozícia a priestor:
• Prízemie (60 m²) – 2 izby, kuchyňa a technická miestnosť (možnosť prerobiť na veľkú kúpeľňu)
• 1. NP (88 m²) – 4 izby, kuchyňa, kúpeľňa, samostatné WC a dve priestranné terasy (2 × 32,5 m²) s krásnym výhľadom a orientáciou na východ a juhovýchod
Výhody nehnuteľnosti:
• Tichá lokalita priamo pod lesom – ideálne pre milovníkov prírody, prechádzok a oddychu
• Slnečný byt s príjemnou orientáciou a dostatkom svetla počas celého dňa
• Veľkorysé terasy (65 m² spolu) – ideálne miesto pre relax, grilovanie či záhradné sedenie
• Strecha po rekonštrukcii – zateplená, hydroizolácia Fatrafol
• Možnosť dvojgeneračného bývania – dve samostatné bytové jednotky
• Pôvodný stav – ponúka priestor pre rekonštrukciu podľa vlastných predstáv
Lokalita:
Karlova Ves – Sološnická ulica patrí medzi najžiadanejšie lokality Bratislavy.
V blízkosti sa nachádza les, cyklotrasy, školy, škôlky, zastávky MHD aj kompletná občianska vybavenosť.
Výborné dopravné napojenie na centrum mesta aj na diaľnicu.
Ak hľadáte priestranné, slnečné bývanie v tichej zelenej lokalite s dušou rodinného domu, toto je príležitosť, ktorú si nesmiete nechať ujsť.
Pre viac informácií a dohodnutie obhliadky nás kontaktujte ešte dnes - 0908 529 947
Obytná plocha: 148m²
Celková rozloha: 213m²
Úžitková plocha: 148m²
Vlastníctvo: osobné
Stav: pôvodný
Plyn: áno
Kúpeľňa: áno
Vykurovanie: vlastné - plyn
Terasa: áno - 2
Pivnica: áno
Garáž: áno
Výťah: nie
Postavené z: panel
Zariadenie: nezariadený
Zateplený objekt: nie
Krb: nie
Klimatizácia: nie
Energetický certifikát: nie
Predzáhradka: neuvedené
Bezbariérový prístup : nie
Okná: plastové
Orientácia: juhovýchodná
Jedinečná ponuka – dvojpodlažný 6-izbový terasovitý (átriový) byt s úžitkovou plochou 148 m² + 65 m² terás, nachádzajúci sa na úplnom vrchu Karlovej Vsi, v tichej a zelenej časti pri lese a turistických chodníkoch.
Dispozícia a priestor:
• Prízemie (60 m²) – 2 izby, kuchyňa a technická miestnosť (možnosť prerobiť na veľkú kúpeľňu)
• 1. NP (88 m²) – 4 izby, kuchyňa, kúpeľňa, samostatné WC a dve priestranné terasy (2 × 32,5 m²) s krásnym výhľadom a orientáciou na východ a juhovýchod
Výhody nehnuteľnosti:
• Tichá lokalita priamo pod lesom – ideálne pre milovníkov prírody, prechádzok a oddychu
• Slnečný byt s príjemnou orientáciou a dostatkom svetla počas celého dňa
• Veľkorysé terasy (65 m² spolu) – ideálne miesto pre relax, grilovanie či záhradné sedenie
• Strecha po rekonštrukcii – zateplená, hydroizolácia Fatrafol
• Možnosť dvojgeneračného bývania – dve samostatné bytové jednotky
• Pôvodný stav – ponúka priestor pre rekonštrukciu podľa vlastných predstáv
Lokalita:
Karlova Ves – Sološnická ulica patrí medzi najžiadanejšie lokality Bratislavy.
V blízkosti sa nachádza les, cyklotrasy, školy, škôlky, zastávky MHD aj kompletná občianska vybavenosť.
Výborné dopravné napojenie na centrum mesta aj na diaľnicu.
Ak hľadáte priestranné, slnečné bývanie v tichej zelenej lokalite s dušou rodinného domu, toto je príležitosť, ktorú si nesmiete nechať ujsť.
Pre viac informácií a dohodnutie obhliadky nás kontaktujte ešte dnes - 0908 529 947
Obytná plocha: 148m²
Celková rozloha: 213m²
Úžitková plocha: 148m²
Vlastníctvo: osobné
Stav: pôvodný
Plyn: áno
Kúpeľňa: áno
Vykurovanie: vlastné - plyn
Terasa: áno - 2
Pivnica: áno
Garáž: áno
Výťah: nie
Postavené z: panel
Zariadenie: nezariadený
Zateplený objekt: nie
Krb: nie
Klimatizácia: nie
Energetický certifikát: nie
Predzáhradka: neuvedené
Bezbariérový prístup : nie
Okná: plastové
Orientácia: juhovýchodná
|
|
Kontaktovať inzerenta e-mailom
Kontaktovať e-mailom môže iba overený užívateľ.
Overenie je zadarmo.
Vaše telefónne číslo *
Kontaktovať e-mailom môže iba overený užívateľ.
Overenie je zadarmo.
Vaše telefónne číslo *