Vymením 3 izbový byt Ilava Štefánikova za menší+doplatok
- [9.10. 2025]Zmazať/ Upraviť/ Topovať








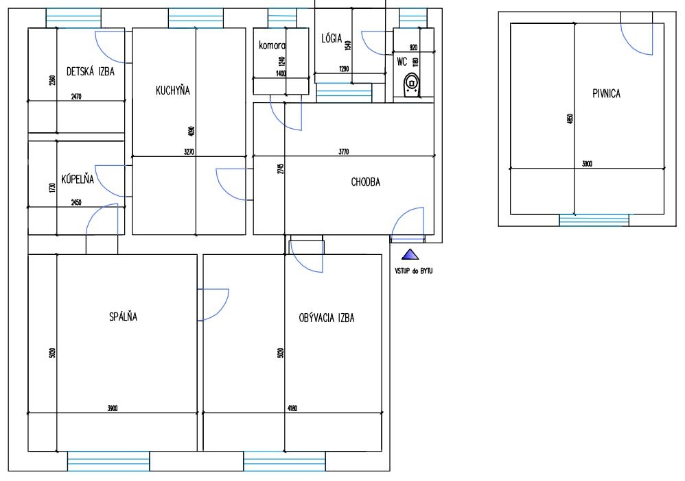
Vymením väčší 3iz byt v pôvodnom stave na zvýšenom prízemí (2oj poschodová bytovka) v tehlovom dome s balkónom orientovaným do dvora na Štefánikovej ulici v Ilave s veľkou pivnicou za menší v trenčianskom kraji + doplatok.
Tichá lokalita autom neprejazdnej ulice s možnosťou parkovania pred vchodom. Vo dvore je zeleň a záhradka. Príroda je v blízkosti domu na konci autom neprejazdnej ulice.
Lidl, Billa, OC Idea, nemocnica a autobusová stanica sú v blízkosti dostupné na pešo. Dobré napojenie na diaľnicu.
Byt je v pôvodnom stave pripravený na rekonštrukciu s možnosťou meniť dispozíciu podľa potrieb rodiny. Boli novonainštalované merače odberu vody. Každý byt má vlastné kúrenie a ohrev vody, čo vedie k úsporám na energiách a predchádza rozpočítavaniu strát za distribúciu.
Dom bol zateplený, má nový bleskozvod a v 7/2024 sa robila celá nová strecha. V spoločných priestoroch boli vymenené dvere a okná za plastové s izolačným dvojsklom. po reknštrukcii bytovky bol vypracovaný aj energetický certifikát. Bytovka má 2 vchody a vo vchode je len 6 bytov.
Úžitková plocha bytu 75,30m² + s plochou pivnice je podiel na dome 99,10m².
Voľné ihneď.
RK a makléri nevolať, nepísať!
https://www.google.com/maps/@48.9958614,18.2269269,3a,75y,19.86h,101.25t/data=!3m7!1e1!3m5!1sJRlwAka-jyQ2o8yGTmoTVQ!2e0!6shttps:%2F%2Fstreetviewpixels-pa.googleapis.com%2Fv1%2Fthumbnail%3Fcb_client%3Dmaps_sv.tactile%26w%3D900%26h%3D600%26pitch%3D-11.249441194369837%26panoid%3DJRlwAka-jyQ2o8yGTmoTVQ%26yaw%3D19.855843214096687!7i13312!8i6656?entry=ttu&g_ep=EgoyMDI1MDQxNi4xIKXMDSoASAFQAw%3D%3D
Tichá lokalita autom neprejazdnej ulice s možnosťou parkovania pred vchodom. Vo dvore je zeleň a záhradka. Príroda je v blízkosti domu na konci autom neprejazdnej ulice.
Lidl, Billa, OC Idea, nemocnica a autobusová stanica sú v blízkosti dostupné na pešo. Dobré napojenie na diaľnicu.
Byt je v pôvodnom stave pripravený na rekonštrukciu s možnosťou meniť dispozíciu podľa potrieb rodiny. Boli novonainštalované merače odberu vody. Každý byt má vlastné kúrenie a ohrev vody, čo vedie k úsporám na energiách a predchádza rozpočítavaniu strát za distribúciu.
Dom bol zateplený, má nový bleskozvod a v 7/2024 sa robila celá nová strecha. V spoločných priestoroch boli vymenené dvere a okná za plastové s izolačným dvojsklom. po reknštrukcii bytovky bol vypracovaný aj energetický certifikát. Bytovka má 2 vchody a vo vchode je len 6 bytov.
Úžitková plocha bytu 75,30m² + s plochou pivnice je podiel na dome 99,10m².
Voľné ihneď.
RK a makléri nevolať, nepísať!
https://www.google.com/maps/@48.9958614,18.2269269,3a,75y,19.86h,101.25t/data=!3m7!1e1!3m5!1sJRlwAka-jyQ2o8yGTmoTVQ!2e0!6shttps:%2F%2Fstreetviewpixels-pa.googleapis.com%2Fv1%2Fthumbnail%3Fcb_client%3Dmaps_sv.tactile%26w%3D900%26h%3D600%26pitch%3D-11.249441194369837%26panoid%3DJRlwAka-jyQ2o8yGTmoTVQ%26yaw%3D19.855843214096687!7i13312!8i6656?entry=ttu&g_ep=EgoyMDI1MDQxNi4xIKXMDSoASAFQAw%3D%3D
|
|
Kontaktovať inzerenta e-mailom
Kontaktovať e-mailom môže iba overený užívateľ.
Overenie je zadarmo.
Vaše telefónne číslo *
Kontaktovať e-mailom môže iba overený užívateľ.
Overenie je zadarmo.
Vaše telefónne číslo *