🌞 IBV Slnečná: nízkorozpočtové 4-izbové drevodomy, Sučany
- TOP - [10.10. 2025]Zmazať/ Upraviť/ Topovať











Hľadáte cenovo dostupné bývanie v lokalite s vynikajúcou občianskou vybavenosťou a dobrou dostupnosťou do mesta❓
⚡️⚡️⚡️ VÝHODNÁ PONUKA VÝSTAVBY 4-IZBOVÉHO BUNGALOVU NA KĽÚČ na pozemku o výmere 533 m2 + cca 113 m2 podiel na prístupovej ceste v TOP CENE 174 999 € - najvýhodnejšia ponuka v regióne Turiec‼️
Nízkorozpočtové drevodomy, ktorých cena sa blíži k cene bytu.
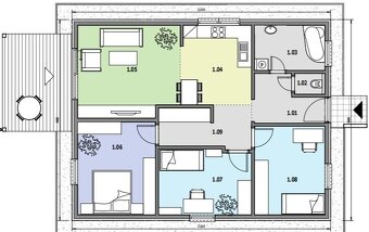
Sú možné aj dispozičné zmeny.
V lokalite budú vybudované tieto inžinierske siete: vodovod, splašková kanalizácia a prípojka NN.
✅ Zelenou farbou sú vyznačené voľné pozemky.
🟧 Oranžovou farbou sú vyznačené rezervované pozemky.
Virtuálnu prehliadku vzorového domu nájdete na tomto linku:
https://www.keypano.com/v/2a66877e79ua1c-1742719621.html
CENNÍK A BLIŽŠIE INFO NA VYŽIADANIE.
VÝSTAVBA PRÁVE PREBIEHA, AKTUÁLNE USKUTOČNENÁ SKRÝVKA ORNICE BUDÚCEJ CESTY A REALIZÁCIA VODOVODU A KANALIZÁCIE.
☎️ KONTAKT:
- 0907 966 145
- bujnak@primareal.sk
⚡️⚡️⚡️ VÝHODNÁ PONUKA VÝSTAVBY 4-IZBOVÉHO BUNGALOVU NA KĽÚČ na pozemku o výmere 533 m2 + cca 113 m2 podiel na prístupovej ceste v TOP CENE 174 999 € - najvýhodnejšia ponuka v regióne Turiec‼️
Nízkorozpočtové drevodomy, ktorých cena sa blíži k cene bytu.
Sú možné aj dispozičné zmeny.
V lokalite budú vybudované tieto inžinierske siete: vodovod, splašková kanalizácia a prípojka NN.
✅ Zelenou farbou sú vyznačené voľné pozemky.
🟧 Oranžovou farbou sú vyznačené rezervované pozemky.
Virtuálnu prehliadku vzorového domu nájdete na tomto linku:
https://www.keypano.com/v/2a66877e79ua1c-1742719621.html
CENNÍK A BLIŽŠIE INFO NA VYŽIADANIE.
VÝSTAVBA PRÁVE PREBIEHA, AKTUÁLNE USKUTOČNENÁ SKRÝVKA ORNICE BUDÚCEJ CESTY A REALIZÁCIA VODOVODU A KANALIZÁCIE.
☎️ KONTAKT:
- 0907 966 145
- bujnak@primareal.sk
|
|
Kontaktovať inzerenta e-mailom
Kontaktovať e-mailom môže iba overený užívateľ.
Overenie je zadarmo.
Vaše telefónne číslo *
Kontaktovať e-mailom môže iba overený užívateľ.
Overenie je zadarmo.
Vaše telefónne číslo *