Harmonický zrekonštruovaný 3i byt s 2 balkónmi, šírymi výhľa
- [8.10. 2025]Zmazať/ Upraviť/ Topovať











Typ: 3-izbový byt
Ulica: Pribišova 41
Mestská časť: Dlhé diely
Obec: Bratislava-Karlova Ves
Niektoré byty pôsobia už na prvý dojem pokojne a vyvážene. Od prvého momentu cítite, že práve tu sa vám bude žiť krásne.
Tento byt je presne taký – SVETLÝ, HARMONICKÝ a s atmosférou, ktorú si zamilujete hneď po vstupe. Nachádza sa v TICHEJ SLEPEJ ULICI, má VÝBORNÚ ORIENTÁCIU, VEĽA SÚKROMIA a ZELEŇ NABLÍZKU a všetko, čo rodina potrebuje, doslova na pár krokov.
O BYTE
obľúbená, vyhľadávaná dispozícia
štvorcové izby, ktoré sa ľahko zariaďujú – ideálne pre rodičov a 1–2 deti
priestranná obývačka prepojená s kuchyňou
dva balkóny - z kuchyne aj zo spálne
orientácia na 2 svetové strany (juh - denná zóna / sever - spálne)
vysoký level súkromia, žiadne priame pohľady do okien
veľa prirodzeného svetla počas celého dňa
byt sa nachádza na 5. poschodí z 8 (nie najvyššie ani najnižšie) v dome s výťahom
dom je zateplený, vchod udržiavaný a slušný
kompletná rekonštrukcia nové elektrické rozvody, plastové okná, kuchynská linka a interiérové dvere v rokoch 2011/2012 a kúpeľňa, WC, podlahy (cca 25 rokov dozadu)
TECHNICKÉ INFORMÁCIE
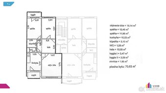
spolu: 77,19 m² úžitkovej plochy, z toho:
výmera bytu: 68,78 m²
pivnica: 1,85 m²
balkóny: 3,47 m² + 3,09 m²
LOKALITA
tichá slepá ulica bez rušnej dopravy
školy a škôlky dostupné bez nutnosti prechádzať cez cestu (ZŠ, SPŠ, gymnázium)
na pešo centrum Dlhých dielov, Billa, pošta, banka, DM, kaviareň, mäsiarstvo, pizzeria
športoviská, plaváreň a zelené trasy Devínskej Kobyly len pár minút od domu
ideálne miesto pre rodiny s deťmi, ktoré hľadajú pokoj, bezpečie a kontakt s prírodou
Navnímajte atmosféru bytu z videa a spoznajte aj lokalitu: https://youtu.be/2Xx7lQM7OZE
Prejdite sa 3D prehliadkou, oboznámte sa s detailmi a pomerajte vzdialenosti, ktoré vás zaujímajú:
Cena: 229.000 € (vrátane poplatkov aj kompletného realitného a právneho servisu) Radi vám pomôžeme aj s kompletným vybavením hypotéky – bezpečne, efektívne a bez zbytočných starostí.
---
*Lucia Béliková*
+421 903 158 903
lucia@vividhouse.sk
Vivid House – postavený na vašej spokojnosti.
Status: aktívne
Vlastníctvo: osobné
Úžitková plocha: 77.19 m2
Zastavaná plocha: 77.19 m2
Stav: úplne prerobený
Počet izieb: 3
Typ budovy: panelová stavba
Loggia: áno
Pivnica: áno
Výťah: áno
Rok poslednej rekonštrukcie: 2012
Rok kolaudácie: 1992
Počet poschodí od prízemia vyššie: 8
Celková plocha: 77.19 m2
Plocha loggie: 6.56 m2
Počet logií: 2
Pivnica plocha: 1.85 m2
Ulica: Pribišova 41
Mestská časť: Dlhé diely
Obec: Bratislava-Karlova Ves
Niektoré byty pôsobia už na prvý dojem pokojne a vyvážene. Od prvého momentu cítite, že práve tu sa vám bude žiť krásne.
Tento byt je presne taký – SVETLÝ, HARMONICKÝ a s atmosférou, ktorú si zamilujete hneď po vstupe. Nachádza sa v TICHEJ SLEPEJ ULICI, má VÝBORNÚ ORIENTÁCIU, VEĽA SÚKROMIA a ZELEŇ NABLÍZKU a všetko, čo rodina potrebuje, doslova na pár krokov.
O BYTE
obľúbená, vyhľadávaná dispozícia
štvorcové izby, ktoré sa ľahko zariaďujú – ideálne pre rodičov a 1–2 deti
priestranná obývačka prepojená s kuchyňou
dva balkóny - z kuchyne aj zo spálne
orientácia na 2 svetové strany (juh - denná zóna / sever - spálne)
vysoký level súkromia, žiadne priame pohľady do okien
veľa prirodzeného svetla počas celého dňa
byt sa nachádza na 5. poschodí z 8 (nie najvyššie ani najnižšie) v dome s výťahom
dom je zateplený, vchod udržiavaný a slušný
kompletná rekonštrukcia nové elektrické rozvody, plastové okná, kuchynská linka a interiérové dvere v rokoch 2011/2012 a kúpeľňa, WC, podlahy (cca 25 rokov dozadu)
TECHNICKÉ INFORMÁCIE
spolu: 77,19 m² úžitkovej plochy, z toho:
výmera bytu: 68,78 m²
pivnica: 1,85 m²
balkóny: 3,47 m² + 3,09 m²
LOKALITA
tichá slepá ulica bez rušnej dopravy
školy a škôlky dostupné bez nutnosti prechádzať cez cestu (ZŠ, SPŠ, gymnázium)
na pešo centrum Dlhých dielov, Billa, pošta, banka, DM, kaviareň, mäsiarstvo, pizzeria
športoviská, plaváreň a zelené trasy Devínskej Kobyly len pár minút od domu
ideálne miesto pre rodiny s deťmi, ktoré hľadajú pokoj, bezpečie a kontakt s prírodou
Navnímajte atmosféru bytu z videa a spoznajte aj lokalitu: https://youtu.be/2Xx7lQM7OZE
Prejdite sa 3D prehliadkou, oboznámte sa s detailmi a pomerajte vzdialenosti, ktoré vás zaujímajú:
Cena: 229.000 € (vrátane poplatkov aj kompletného realitného a právneho servisu) Radi vám pomôžeme aj s kompletným vybavením hypotéky – bezpečne, efektívne a bez zbytočných starostí.
---
*Lucia Béliková*
+421 903 158 903
lucia@vividhouse.sk
Vivid House – postavený na vašej spokojnosti.
Status: aktívne
Vlastníctvo: osobné
Úžitková plocha: 77.19 m2
Zastavaná plocha: 77.19 m2
Stav: úplne prerobený
Počet izieb: 3
Typ budovy: panelová stavba
Loggia: áno
Pivnica: áno
Výťah: áno
Rok poslednej rekonštrukcie: 2012
Rok kolaudácie: 1992
Počet poschodí od prízemia vyššie: 8
Celková plocha: 77.19 m2
Plocha loggie: 6.56 m2
Počet logií: 2
Pivnica plocha: 1.85 m2
|
|
Kontaktovať inzerenta e-mailom
Kontaktovať e-mailom môže iba overený užívateľ.
Overenie je zadarmo.
Vaše telefónne číslo *
Kontaktovať e-mailom môže iba overený užívateľ.
Overenie je zadarmo.
Vaše telefónne číslo *