2i apartmán v rekreačnom komplexe s bazénom Nízke Tatry
- [8.10. 2025]Zmazať/ Upraviť/ Topovať






























Nový apartmán sa nachádza v pokojnej obci pred Krpáčovom, Dolná Lehota, v mikroregióne Chopok – Juh, v údolí Vajskovského potoka s nadmorskou výškou 530 m.n.m. Je situovaný v okrajovej časti obce, uprostred čarovnej prírody v uzavretom rekreačnom komplexe.
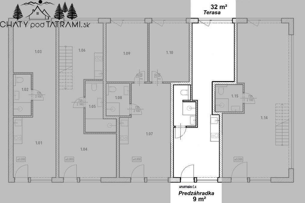
Je situovaný na prízemí novopostaveného bytového domu. Má výmeru 30 m2 + 11 m2 terasa + 9 m2 pozemok pred vchodom (predzáhradka) + parkovacie miesto 15m2. Skladá sa z obývacej izby s veľkým presklením a kuchynským kútom, samostatnej izby s východom na terasu, z ktorej je výhľad na Nízke Tatry. Ďalej tu je kúpeľňa s toaletou. Vykurovanie je riešené elektrickými konvektormi a klimatizačnou jednotkou s tepelným čerpadlom s ovládaním na diaľku. Byt sa predáva zariadený, s pozemkom pod terasou a predzáhradkou. Stavba je skolaudovaná, vedená ako apartmánový dom pozostávajúci z 5 bytov. Je napojená na obecnú komunikáciu. Na výstavbu boli použité prémiové talianske materiály.
V uzatvorenom komplexe je moderná reštaurácia, vyhrievaný bazén s výhľadom na Chopok, vírivky, sauna aj detské ihrisko. Pre rezidentov je k dispozícii požičovňa e-bikov, ako aj komplexné služby starostlivosti o nehnuteľnosť spojené s krátkodobým prenájmom. Byt je vhodný aj ako investičná nehnuteľnosť.
V okolí je viacero lyžiarskych stredísk, v 7 km vzdialenom Krpáčove, tiež v 13 km vzdialených Táľoch (tale.sk), či pre náročných lyžiarov na 16 km vzdialenom Chopku - Juh (jasna.sk). V lete sú tu široké možnosti turistiky, či cykloturistiky po prekrásnej okolitej prírode, rybárčenia v neďalekom rybníku alebo pre milovníkov golfu, 27 - jamkové ihrisko na Táľoch. Ideálne miesto na oddych aj ako investičná nehnuteľnosť.
Podrobné informácie a ďalšie ponuky nájdete na CHATYpodTATRAMI.sk aj na našich sociálnych sieťach.
Časti textu a fotografie je možné použiť iba so súhlasom autora © 2025 - Chaty pod Tatrami s.r.o.
Obytná plocha: 50m²
Celková rozloha: 50m²
Úžitková plocha: 50m²
Vlastníctvo: osobné
Stav: pôvodný
Odvoz odpadu: áno
Plyn: nie
Internet: wifi
Kúpeľňa: áno
Vykurovanie: vlastné - elektrické
Terasa: áno
Pivnica: nie
Garáž: nie
Výťah: nie
Parkovanie: vlastné vyhradené
Postavené z: Zmiešané
Zariadenie: zariadený
Zateplený objekt: áno
Bazén: exteriérový
Krb: nie
Klimatizácia: áno
Káblová televízia: nie
Energetický certifikát: A
Predzáhradka: áno
Bezbariérový prístup : áno
Okná: plastové
Orientácia: východ/západ
Je situovaný na prízemí novopostaveného bytového domu. Má výmeru 30 m2 + 11 m2 terasa + 9 m2 pozemok pred vchodom (predzáhradka) + parkovacie miesto 15m2. Skladá sa z obývacej izby s veľkým presklením a kuchynským kútom, samostatnej izby s východom na terasu, z ktorej je výhľad na Nízke Tatry. Ďalej tu je kúpeľňa s toaletou. Vykurovanie je riešené elektrickými konvektormi a klimatizačnou jednotkou s tepelným čerpadlom s ovládaním na diaľku. Byt sa predáva zariadený, s pozemkom pod terasou a predzáhradkou. Stavba je skolaudovaná, vedená ako apartmánový dom pozostávajúci z 5 bytov. Je napojená na obecnú komunikáciu. Na výstavbu boli použité prémiové talianske materiály.
V uzatvorenom komplexe je moderná reštaurácia, vyhrievaný bazén s výhľadom na Chopok, vírivky, sauna aj detské ihrisko. Pre rezidentov je k dispozícii požičovňa e-bikov, ako aj komplexné služby starostlivosti o nehnuteľnosť spojené s krátkodobým prenájmom. Byt je vhodný aj ako investičná nehnuteľnosť.
V okolí je viacero lyžiarskych stredísk, v 7 km vzdialenom Krpáčove, tiež v 13 km vzdialených Táľoch (tale.sk), či pre náročných lyžiarov na 16 km vzdialenom Chopku - Juh (jasna.sk). V lete sú tu široké možnosti turistiky, či cykloturistiky po prekrásnej okolitej prírode, rybárčenia v neďalekom rybníku alebo pre milovníkov golfu, 27 - jamkové ihrisko na Táľoch. Ideálne miesto na oddych aj ako investičná nehnuteľnosť.
Podrobné informácie a ďalšie ponuky nájdete na CHATYpodTATRAMI.sk aj na našich sociálnych sieťach.
Časti textu a fotografie je možné použiť iba so súhlasom autora © 2025 - Chaty pod Tatrami s.r.o.
Obytná plocha: 50m²
Celková rozloha: 50m²
Úžitková plocha: 50m²
Vlastníctvo: osobné
Stav: pôvodný
Odvoz odpadu: áno
Plyn: nie
Internet: wifi
Kúpeľňa: áno
Vykurovanie: vlastné - elektrické
Terasa: áno
Pivnica: nie
Garáž: nie
Výťah: nie
Parkovanie: vlastné vyhradené
Postavené z: Zmiešané
Zariadenie: zariadený
Zateplený objekt: áno
Bazén: exteriérový
Krb: nie
Klimatizácia: áno
Káblová televízia: nie
Energetický certifikát: A
Predzáhradka: áno
Bezbariérový prístup : áno
Okná: plastové
Orientácia: východ/západ
|
| |||||||||||||||||||||||||||||||
Kontaktovať inzerenta e-mailom
Kontaktovať e-mailom môže iba overený užívateľ.
Overenie je zadarmo.
Vaše telefónne číslo *
Kontaktovať e-mailom môže iba overený užívateľ.
Overenie je zadarmo.
Vaše telefónne číslo *
Podobné inzeráty
Predaj, Prenájom 2i apartmán s garážou Tále NízkeTatry - [10.11. 2025]Predstavujeme vám dvojizbový apartmán na predaj, ktorý sa nachádza v prestížnom uzavretom areáli novopostavených apartmánových domov v lyžiarsko-turistickom stredisku Tále, v srdci národného parku Nízke Tatry. Tento apartmán je skrytý v malebnej Bystrianskej doline, pri brehu horského potoka Bystria ...
199 900 €
Brezno
977 01
977 01
42 x
Označiť zlý inzerát Chybnú kategóriu Ohodnotiť užívateľa Zmazať/Upraviť/Topovať
Predaj 2i apartmán pod lesom Tále Nízke Tatry - [10.11. 2025]Dvojizbový apartmán sa nachádza v uzavretom areáli novopostavených apartmánových domov v lyžiarsko - turistickom stredisku Tále, v národnom parku Nízke Tatry. Je ukrytý v časti pôvabnej Bystrianskej doliny, pri brehu horského potoka Bystrianka, ktorý vytvára neopakovateľný žblnkot a je obklopený hus ...
209 000 €
Brezno
977 01
977 01
28 x
Označiť zlý inzerát Chybnú kategóriu Ohodnotiť užívateľa Zmazať/Upraviť/Topovať
Na predaj priemyselný areál cca 4000 m² – Brezno - [9.11. 2025]Na predaj priemyselný areál cca 4000 m² – Brezno, Staničná ulica (pri hlavnej ceste)
Na predaj priemyselný areál s výmerou cca 4000 m², nachádzajúci sa na Staničnej ulici v Brezne, pri hlavnej ceste s výbornou dopravnou dostupnosťou a viditeľnosťou.
Areál je vhodný na výrobu, skladovanie, servis, l ...
Dohodou
Brezno
977 01
977 01
84 x
Označiť zlý inzerát Chybnú kategóriu Ohodnotiť užívateľa Zmazať/Upraviť/Topovať
ZAUJÍMAVÁ INVESTIČNÁ PRÍLEŽITOSŤ - [7.11. 2025]ZVAŽUJETE INVESTÍCIU, ALEBO VLASTNÚ REKREÁCIU PRE VÁS A VAŠICH BLÍZKYCH?
DOBRÉ REALITY - silná slovenská realitná sieť, v zastúpení maklérom Adriana Strmeňová, ponúka exkluzívne na predaj Apartmánový dom v Bystrianskej doline na Táloch. Nachádzajú sa v ňom 3 samostatné apartmány, z ktorých každý ...
Dohodou
Brezno
977 01
977 01
1658 x
Označiť zlý inzerát Chybnú kategóriu Ohodnotiť užívateľa Zmazať/Upraviť/Topovať
Top Cena 3i apartmán s krbom pri Hoteli Bystrá Nízke Tatry - [3.11. 2025]Trojizbový apartmán je situovaný v srdci Nízkych Tatier, v poslednej dedinke pod Chopkom z Južnej strany. Nachádza sa v extraviláne, medzi obcou Bystrá a Táľami. Je iba 250m vzdialený od obľúbeného wellness hotela. Jedinečnosť slnkom zaliatej lokality umocňuje pohľad na majestátne končiare najvyššíc ...
174 800 €
Brezno
977 01
977 01
375 x
Označiť zlý inzerát Chybnú kategóriu Ohodnotiť užívateľa Zmazať/Upraviť/Topovať
PREDAJ: Polyfunkčný objekt Sokolovňa, 1395 m2, Brezno - [24.10. 2025]DOBRÉ REALITY – silná slovenská realitná sieť ponúka na predaj polyfunkčný objekt Sokolovňa v širšom centre Brezna.
POPIS NEHNUTEĽNOSTI
S-V orientovaná, 3 podlažná polyfunkčná budova vedená ako budova pre šport a rekreačné účely pod názvom Sokolovňa s úžitkovou plochou 1395 m2 a pozemkom o výmer ...
Dohodou
Brezno
977 01
977 01
314 x
Označiť zlý inzerát Chybnú kategóriu Ohodnotiť užívateľa Zmazať/Upraviť/Topovať
Útulný 2i byt pri lese Tále Nízke Tatry - [24.9. 2025]Dvojizbový byt sa nachádza v uzavretom areáli novopostavených apartmánových domov v lyžiarsko - turistickom stredisku Tále, v národnom parku Nízke Tatry. Je ukrytý v časti pôvabnej Bystrianskej doliny, pri brehu horského potoka Bystrianka, ktorý vytvára neopakovateľný žblnkot a je obklopený hustými ...
190 000 €
Brezno
977 01
977 01
597 x
Označiť zlý inzerát Chybnú kategóriu Ohodnotiť užívateľa Zmazať/Upraviť/Topovať
2i apartmán s krbom a garážou Tále Nízke Tatry - [20.9. 2025]Dvojizbový apartmán sa nachádza v uzavretom areáli novopostavených apartmánových domov v lyžiarsko - turistickom stredisku Tále, v národnom parku Nízke Tatry. Je ukrytý v časti pôvabnej Bystrianskej doliny, pri brehu horského potoka Bystrianka, ktorý vytvára neopakovateľný žblnkot a je obklopený hus ...
200 000 €
Brezno
977 01
977 01
449 x
Označiť zlý inzerát Chybnú kategóriu Ohodnotiť užívateľa Zmazať/Upraviť/Topovať
Štýlový 3i apartmán Bystrá Nízke Tatry - [20.9. 2025]Trojizbový apartmán sa nachádza v rekreačnej oblasti Tále - Nízke Tatry, iba 250m od obľúbeného wellness hotela Bystrá. Apartmán je vedený na liste vlastníctva ako byt. Je situovaný na treťom poschodí trojposchodového apartmánového domu, ktorý bol kolaudovaný v roku 2016.
Interiér apartmánu pozos ...
182 800 €
Brezno
977 01
977 01
397 x
Označiť zlý inzerát Chybnú kategóriu Ohodnotiť užívateľa Zmazať/Upraviť/Topovať
3i byt s krbom a garážou Tále Nízke Tatry - [19.9. 2025]Trojizbový byt sa nachádza v uzavretom areáli novopostavených apartmánových domov v lyžiarsko - turistickom stredisku Tále, v národnom parku Nízke Tatry. Je ukrytý v časti pôvabnej Bystrianskej doliny, pri brehu horského potoka Bystrianka, ktorý vytvára neopakovateľný žblnkot a je obklopený hustými ...
275 000 €
Brezno
977 01
977 01
644 x
Označiť zlý inzerát Chybnú kategóriu Ohodnotiť užívateľa Zmazať/Upraviť/Topovať









