3 izbový byt
- [8.10. 2025]Zmazať/ Upraviť/ Topovať








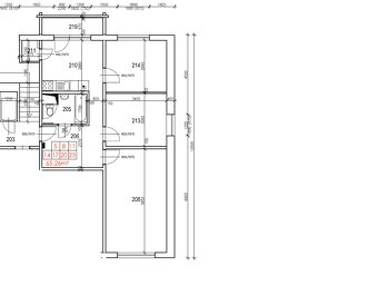
Všeobecne hodnoty bytu číslo 5 / 2 poschodie v bytovom dome súp.čislo 3011 na ul. kpt. Nálepku 13 podlahová plocha trojizbového bytu je 66,41.Jadro je murované(balkon,pivnica). Byt prešiel rekonštrukciou. Kontakt 0915 166 101 možná dohoda na cene
|
|
Kontaktovať inzerenta e-mailom
Kontaktovať e-mailom môže iba overený užívateľ.
Overenie je zadarmo.
Vaše telefónne číslo *
Kontaktovať e-mailom môže iba overený užívateľ.
Overenie je zadarmo.
Vaše telefónne číslo *