BOSEN | Samostatný rodinný dom Malacky - Píniová Alej
- [8.10. 2025]Zmazať/ Upraviť/ Topovať











Typ: Rodinný dom
Ulica: Píniová Alej
Obec: Malacky
Bosen Group Vám ponúka na predaj novostavbu samostatného 3 izbového rodinného domu s pozemkom v novovybudovanej štvrti v blízkosti okresného mesta Malacky, časť Píniová Alej.
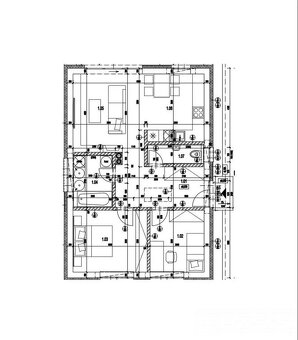
RODINNÝ DOM: 3 izbový bungalov, zastavaná plocha domu je 85,47 m2 a podlahová plocha domu je 66,06 m2. Rodinný dom je postavený z kvalitných stavebných materiálov. Obvodové murivo a vnútorné priečky YTONG Lambda YQ 500 PDK, strešná krytina - betónová škridla BRAMAC, zateplenie strechy minerálna vlna 30 cm, teplovodné podlahové kúrenie, plynový kotol so zásobníkom na teplú vodu, plastové okná s izolačným 3 sklom a vstupné dvere DATOM, v podkroví je veľký úložný priestor. Oplotenie z troch strán, predpríprava na klimatizáciu, alarm, kamerový systém, vonkajšie elektrické žalúzie. Rodinný dom je napojený na tieto inžinierske siete: elektrika, voda, plyn, optická prípojka internetu, kanalizácia do septiku (10 m3).
Vyhotovenie holodom, možnosť dokončenia do štandardu + cca 12.000€.
DISPOZÍCIA RODINNÉHO DOMU: zádverie, z ktorého je vstup do izby č. 1, izby č. 2, kúpeľne, samostatného WC a obývačky spojenej s kuchyňou. Z obývačky je výstup na terasu.
ZARIADENIE: rodinný dom sa predáva nezariadený vo vyhotovení holodom.
POZEMOK: celková výmera pozemku je 381 m2. Pozemok je rovinaty a sú na ňom vysadené stromy a položený trávnik.
PARKOVANIE: vonkajšie parkovacie státia pre 3 autá na pozemku.
LOKALITA: Rodinný dom sa nachádza v novovybudovanej tichej lokalite Píniová Alej, ktorá sa nachádza len 4 km od centra okresného mesta Malacky a 30 km od centra hlavného mesta Bratislava. Mesto Malacky disponuje kompletnou občianskou vybavenosťou (nemocnica, zdravotné strediská, základné školy, materské školy, gymnázium, potravinové reťazce, reštaurácie, lekárne, banky, pošta, mestský a okresný úrad). Píniová Alej poskytuje výhody pokojného bývania v blízkosti lesa a golfového ihriska s veľmi dobrou a rýchlou dostupnosťou do Bratislavy. Priame napojenie (do 5 minút) na D2.
CENA: 199.000,- EUR
Realitný maklér: Michal Leško, +421 944 040 684, lesko@bosen.sk
Realitná kancelária Bosen Group je členom NARKS a Realitnej únie SR a riadi sa jej Realitným kódexom. Uvedená cena je konečná, zahŕňa províziu realitnej kancelárie, právny servis zabezpečovaný advokátskou kanceláriou, úhradu základného správneho poplatku na katastri, poradenstvo k prevodu nehnuteľnosti a bezplatnú ponuku financovania prostredníctvom hypotéky.
Status: aktívne
Vlastníctvo: osobné
Plocha pozemku: 381 m2
Typ zeme: rovina
Teritórium: Intravilán
Úžitková plocha: 66.06 m2
Zastavaná plocha: 85.47 m2
Podlahová plocha: 66.06 m2
Stav: novostavba
Počet iz
Ulica: Píniová Alej
Obec: Malacky
Bosen Group Vám ponúka na predaj novostavbu samostatného 3 izbového rodinného domu s pozemkom v novovybudovanej štvrti v blízkosti okresného mesta Malacky, časť Píniová Alej.
RODINNÝ DOM: 3 izbový bungalov, zastavaná plocha domu je 85,47 m2 a podlahová plocha domu je 66,06 m2. Rodinný dom je postavený z kvalitných stavebných materiálov. Obvodové murivo a vnútorné priečky YTONG Lambda YQ 500 PDK, strešná krytina - betónová škridla BRAMAC, zateplenie strechy minerálna vlna 30 cm, teplovodné podlahové kúrenie, plynový kotol so zásobníkom na teplú vodu, plastové okná s izolačným 3 sklom a vstupné dvere DATOM, v podkroví je veľký úložný priestor. Oplotenie z troch strán, predpríprava na klimatizáciu, alarm, kamerový systém, vonkajšie elektrické žalúzie. Rodinný dom je napojený na tieto inžinierske siete: elektrika, voda, plyn, optická prípojka internetu, kanalizácia do septiku (10 m3).
Vyhotovenie holodom, možnosť dokončenia do štandardu + cca 12.000€.
DISPOZÍCIA RODINNÉHO DOMU: zádverie, z ktorého je vstup do izby č. 1, izby č. 2, kúpeľne, samostatného WC a obývačky spojenej s kuchyňou. Z obývačky je výstup na terasu.
ZARIADENIE: rodinný dom sa predáva nezariadený vo vyhotovení holodom.
POZEMOK: celková výmera pozemku je 381 m2. Pozemok je rovinaty a sú na ňom vysadené stromy a položený trávnik.
PARKOVANIE: vonkajšie parkovacie státia pre 3 autá na pozemku.
LOKALITA: Rodinný dom sa nachádza v novovybudovanej tichej lokalite Píniová Alej, ktorá sa nachádza len 4 km od centra okresného mesta Malacky a 30 km od centra hlavného mesta Bratislava. Mesto Malacky disponuje kompletnou občianskou vybavenosťou (nemocnica, zdravotné strediská, základné školy, materské školy, gymnázium, potravinové reťazce, reštaurácie, lekárne, banky, pošta, mestský a okresný úrad). Píniová Alej poskytuje výhody pokojného bývania v blízkosti lesa a golfového ihriska s veľmi dobrou a rýchlou dostupnosťou do Bratislavy. Priame napojenie (do 5 minút) na D2.
CENA: 199.000,- EUR
Realitný maklér: Michal Leško, +421 944 040 684, lesko@bosen.sk
Realitná kancelária Bosen Group je členom NARKS a Realitnej únie SR a riadi sa jej Realitným kódexom. Uvedená cena je konečná, zahŕňa províziu realitnej kancelárie, právny servis zabezpečovaný advokátskou kanceláriou, úhradu základného správneho poplatku na katastri, poradenstvo k prevodu nehnuteľnosti a bezplatnú ponuku financovania prostredníctvom hypotéky.
Status: aktívne
Vlastníctvo: osobné
Plocha pozemku: 381 m2
Typ zeme: rovina
Teritórium: Intravilán
Úžitková plocha: 66.06 m2
Zastavaná plocha: 85.47 m2
Podlahová plocha: 66.06 m2
Stav: novostavba
Počet iz
|
|
Kontaktovať inzerenta e-mailom
Kontaktovať e-mailom môže iba overený užívateľ.
Overenie je zadarmo.
Vaše telefónne číslo *
Kontaktovať e-mailom môže iba overený užívateľ.
Overenie je zadarmo.
Vaše telefónne číslo *
Podobné inzeráty

Typ: Rodinný dom
Ulica: Štefánikova
Obec: Malacky
PROMREAL exkluzívne ponúka na predaj 4-izbový rodinný dom v meste Gbely
Na predaj je rodinný dom (súčasť dvojdomu) so zastavanou plochou cca 123 m², postavený v 70. rokoch z kvalitnej kombinácie betónu, tehly a kvádrov. Stavba je v pôvodno ...
99 990 €
Malacky
901 01
901 01
246 x
Označiť zlý inzerát Chybnú kategóriu Ohodnotiť užívateľa Zmazať/Upraviť/Topovať

Ponúkame na predaj veľmi vkusne a funkčne navrhnutý 4,5 izbový rodinný dom, situovaný v pokojnej časti mesta Malacky. Táto nehnuteľnosť predstavuje ideálne riešenie pre rodinné bývanie, ktoré spája komfort, praktickosť a kvalitu použitých materiálov.
Dom zaujme už pri vstupe svojím premysleným dis ...
395 000 €
Malacky
901 01
901 01
1476 x
Označiť zlý inzerát Chybnú kategóriu Ohodnotiť užívateľa Zmazať/Upraviť/Topovať

Ponúkame na predaj menší pôvodný rodinný dom, s pozemkom aj pre ďalší dom v mestskej časti Táborisko, na okraji Malaciek, pár minút od Zámockého parku a nemocnice. Dom s predzáhradkou je prízemný, v pôvodnom stave so začatou rekonštrukciou. Pozemok ponúka možnosť rozdelenia na dva pozemky s dvomi do ...
137 000 €
Malacky
901 01
901 01
996 x
Označiť zlý inzerát Chybnú kategóriu Ohodnotiť užívateľa Zmazať/Upraviť/Topovať

Ponúkame na predaj polovicu rodinnej vily takmer v centre Malaciek v tichej slepej ulici, s parkovaním na vlastnom pozemku pred domom. Fasády a strecha domu sú v pôvodnom udržiavanom stave, bez závad a nutnej rekonštrukcie. Dom je z väčšej časti podpivničený. Vnútorné priestory prešli kompletnou rek ...
295 000 €
Malacky
901 01
901 01
937 x
Označiť zlý inzerát Chybnú kategóriu Ohodnotiť užívateľa Zmazať/Upraviť/Topovať

So súhlasom majiteľa ponúkame na predaj rodinný dom s garážou a záhradou kúsok od centra mesta Malaciek. Nachádza sa v žiadanej lokalite v ktorej sa domy predávajú veľmi málo, keďže sa jedná o pôvodnú zastavanú časť blízko od centra mesta. Dom prešiel v roku 2018 kompletnou rekonštrukciou. Rodinný d ...
365 000 €
Malacky
901 01
901 01
733 x
Označiť zlý inzerát Chybnú kategóriu Ohodnotiť užívateľa Zmazať/Upraviť/Topovať

Popis
Jedinečná novostavba samostatne stojaceho 4-izbového rodinného domu s dvojgarážou neďaleko Malaciek a rakúskych hraníc. Veľkorysá výmera domu uspokojí aj požiadavky náročnejšieho klienta a predstavuje výhodnú ponuku pre rodiny s deťmi. Bungalov je skolaudovaný a realizovaný do stavu HOLODOM, ...
242 999 €
Malacky
901 01
901 01
1982 x
Označiť zlý inzerát Chybnú kategóriu Ohodnotiť užívateľa Zmazať/Upraviť/Topovať

DeveloX Reality ponúka exkluzívne na predaj trojpodlažný 6-izbový rodinný dom v meste Malacky na ulici Nová.
Dom bol skolaudovaný v roku 1980 a je po čiastočnej rekonštrukcii. Plocha pozemku na ktorom je dom postavený je vo výmere 297m2. Zastavaná plocha je 113m2 a obytná je 210m2. Ide o t ...
300 000 €
Malacky
901 01
901 01
879 x
Označiť zlý inzerát Chybnú kategóriu Ohodnotiť užívateľa Zmazať/Upraviť/Topovať

Typ: Rodinný dom
Obec: Malacky
Moderný maklér ponúka v exkluzívnom zastúpení na predaj jedinečnú novostavbu samostatne stojaceho 4-izbového rodinného domu s dvojgarážou neďaleko Malaciek a rakúskych hraníc. Veľkorysá výmera domu uspokojí aj požiadavky náročnejšieho klienta a predstavu ...
246 990 €
Malacky
901 01
901 01
356 x
Označiť zlý inzerát Chybnú kategóriu Ohodnotiť užívateľa Zmazať/Upraviť/Topovať

Máme riešenie. Zateplíme PUR izoláciou rodinný dom, nový, starý, rovná strecha, šikmá strecha. Naša izolácia v zime hreje v lete chladí.
Rozhodli ste sa pre minerálnu vlnu?
https://spravyaktualne.sk/clanok-23796/sokujuce-zistenie-takmer-30-rokov-sme-zili-v-klamstve-hrozive-zistenie-vedcov-o-vlne ...
Dohodou
Malacky
901 01
901 01
245 x
Označiť zlý inzerát Chybnú kategóriu Ohodnotiť užívateľa Zmazať/Upraviť/Topovať

Vo výhradnom zastúpení vám ponúkame na predaj pekný, trojizbový, čiastočne zrekonštruovaný, rodinný dom v Malackách - časť Juh s ďalšími dvoma bytovými jednotkami.
Pri rýchlom jednaní dohoda na cene možná po obhliadke.
DISPOZÍCIA:
- predsieň
- obývačka
- samostatné wc / komora
...
169 990 €
Malacky
901 01
901 01
892 x
Označiť zlý inzerát Chybnú kategóriu Ohodnotiť užívateľa Zmazať/Upraviť/Topovať