Na predaj 3-izbový byt
- [7.10. 2025]Zmazať/ Upraviť/ Topovať











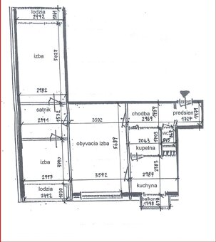
Na predaj 3-izbový byt, 76 m² vrátane 2 balkónov a 1 lodžie (6,5 m²), Sibírska ulica – Bratislava – Nové Mesto
Ponúkame na predaj priestranný 3-izbový byt o výmere 70 m²+6,5 m², ktorý sa nachádza na 5. poschodí z 5. bytového domu s výťahom.
Byt je v pôvodnom stave, vyprataný a pripravený na rekonštrukciu podľa vlastných predstáv. Dispozícia ponúka praktické možnosti úprav (napr. otvorenie kuchyne do obývačky, uzavretie kúpeľne z jednej strany). Dom prešiel obnovou, v rámci ktorej prebehlo zateplenie budovy, oprava strechy, vymenili sa vstupné brány s elekt. čipom, prebehla výmena výťahu a boli vymenené rozvody (elektrina, plyn a kanalizácia).
Súčasťou bytu sú:
2 balkóny a loggia, šatník,
pivnica, priestranné izby orientované na juhovýchod a severozápad, ktoré poskytujú dostatok denného svetla.
Výhody:
žiadaná lokalita Sibírska ulica – Nové Mesto,
kompletná občianska vybavenosť v okolí: obchody, školy, škôlky, pošta, lekáreň, MHD, tichá časť so zeleňou, spoločná kočíkáreň, slnečný byt s optimálnou orientáciou a výbornou dostupnosťou do centra.
Byt je bez tiarch, kúpou ihneď voľný.
Ponúkame na predaj priestranný 3-izbový byt o výmere 70 m²+6,5 m², ktorý sa nachádza na 5. poschodí z 5. bytového domu s výťahom.
Byt je v pôvodnom stave, vyprataný a pripravený na rekonštrukciu podľa vlastných predstáv. Dispozícia ponúka praktické možnosti úprav (napr. otvorenie kuchyne do obývačky, uzavretie kúpeľne z jednej strany). Dom prešiel obnovou, v rámci ktorej prebehlo zateplenie budovy, oprava strechy, vymenili sa vstupné brány s elekt. čipom, prebehla výmena výťahu a boli vymenené rozvody (elektrina, plyn a kanalizácia).
Súčasťou bytu sú:
2 balkóny a loggia, šatník,
pivnica, priestranné izby orientované na juhovýchod a severozápad, ktoré poskytujú dostatok denného svetla.
Výhody:
žiadaná lokalita Sibírska ulica – Nové Mesto,
kompletná občianska vybavenosť v okolí: obchody, školy, škôlky, pošta, lekáreň, MHD, tichá časť so zeleňou, spoločná kočíkáreň, slnečný byt s optimálnou orientáciou a výbornou dostupnosťou do centra.
Byt je bez tiarch, kúpou ihneď voľný.
|
|
Kontaktovať inzerenta e-mailom
Kontaktovať e-mailom môže iba overený užívateľ.
Overenie je zadarmo.
Vaše telefónne číslo *
Kontaktovať e-mailom môže iba overený užívateľ.
Overenie je zadarmo.
Vaše telefónne číslo *