BUNGALOV NA KĽÚČ AJ S POZEMKOM - BITAROVÁ pri Žiline
- [7.10. 2025]Zmazať/ Upraviť/ Topovať




Realitná kancelária REG4U Vám ponúka na PREDAJ slnečný, stavebný pozemok vo výmere 630 m2 v prekrásnom lukratívnom prostredí plnom zelene s celodenným bohatým slnečným svitom v mierne svahovitom teréne ideálny pre výstavbu Vášho rodinného domu - Vášho nového DOMOVA.
Tichá lokalita - okolie je známe svojou pokojnou atmosférou, vďaka čomu sa stáva ideálnym miestom na relaxáciu a súkromie. Pozemok je vzdialený do 10 minút jazdy autom od centra Žiliny, takmer vždy bez dopravných obmedzení.
Na hranici pozemku sa nachádzajú všetky IS - elektrika, voda, plyn, kanalizácia.
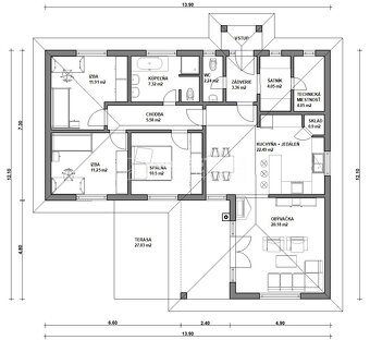
Na uvedenom pozemku je možnosť výstavby RD a to navrhovaný 4-izbový bungalov s kompaktnou dispozíciou s dostatkom úložného priestoru.
VÝHODY PONUKY
• výmera pozemku 630 m2
• slnečný pozemok určený pre individuálnu výstavbu RD
• dostupnosť inžinierskych sietí - elektrina, voda, plyn pri pozemku
• obecná prístupová asfaltová
• rýchlosť výstavby
• len 7 km od mesta Žilina
• možnosť výstavby katalógového alebo individuálneho projektu RD
PARAMETRE BUNGALOVU
• zastavaná plocha: 136,51 m2
• úžitková plocha: 103,83 m2
• rozmery domu: 12,1 x 13,9 m
• obytné miestnosti: 4
Cena RD v 2 variantoch možnej výstavby
• HOLODOM
• DOM NA KĽÚČ - cena domu je vrátane prekrytých častí
CENA DOMU NA KĽÚČ SPOLU S POZEMKOM 226 500,- €
CENA NEZAHŔŇA PRÍPOJKY INŽINIERSKÝCH SIETÍ
Predpokladaný termín dokončenia hrubej stavby v závislosti od zvolených materiálov už do 1 mesiaca.
VÝHODY PROJEKTU
• katalógový projekt
• energetický certifikát v triede A0
• mesačné náklady na vykurovanie do 100,-€/mesiac
• možnosť vyhotovenia domu: nízkoenergetický, pasívny, nulový
• realizácia voliteľných súčastí stavby – napr. alarm, kamerový systém, rekuperácia, krbový systém
• certifikát kvality stavby
• záručný a pozáručný servis
ZHOTOVENIE STAVBY
• tehla. Ytong
• montovaná
S financovaním kúpy pozemku, prípadne s postupnou výstavbou domu cez hypotéku vám radi pomôžeme.
VYBAVÍME ZA VÁS
• hypotéku a právne služby
• kataster
• inžinierske siete
• koordináciu projektu a výstavby
• komplet inžiniering k stavebnému povoleniu
• kolaudáciu RD
• služby interiérového dizajnéra
Tichá lokalita - okolie je známe svojou pokojnou atmosférou, vďaka čomu sa stáva ideálnym miestom na relaxáciu a súkromie. Pozemok je vzdialený do 10 minút jazdy autom od centra Žiliny, takmer vždy bez dopravných obmedzení.
Na hranici pozemku sa nachádzajú všetky IS - elektrika, voda, plyn, kanalizácia.
Na uvedenom pozemku je možnosť výstavby RD a to navrhovaný 4-izbový bungalov s kompaktnou dispozíciou s dostatkom úložného priestoru.
VÝHODY PONUKY
• výmera pozemku 630 m2
• slnečný pozemok určený pre individuálnu výstavbu RD
• dostupnosť inžinierskych sietí - elektrina, voda, plyn pri pozemku
• obecná prístupová asfaltová
• rýchlosť výstavby
• len 7 km od mesta Žilina
• možnosť výstavby katalógového alebo individuálneho projektu RD
PARAMETRE BUNGALOVU
• zastavaná plocha: 136,51 m2
• úžitková plocha: 103,83 m2
• rozmery domu: 12,1 x 13,9 m
• obytné miestnosti: 4
Cena RD v 2 variantoch možnej výstavby
• HOLODOM
• DOM NA KĽÚČ - cena domu je vrátane prekrytých častí
CENA DOMU NA KĽÚČ SPOLU S POZEMKOM 226 500,- €
CENA NEZAHŔŇA PRÍPOJKY INŽINIERSKÝCH SIETÍ
Predpokladaný termín dokončenia hrubej stavby v závislosti od zvolených materiálov už do 1 mesiaca.
VÝHODY PROJEKTU
• katalógový projekt
• energetický certifikát v triede A0
• mesačné náklady na vykurovanie do 100,-€/mesiac
• možnosť vyhotovenia domu: nízkoenergetický, pasívny, nulový
• realizácia voliteľných súčastí stavby – napr. alarm, kamerový systém, rekuperácia, krbový systém
• certifikát kvality stavby
• záručný a pozáručný servis
ZHOTOVENIE STAVBY
• tehla. Ytong
• montovaná
S financovaním kúpy pozemku, prípadne s postupnou výstavbou domu cez hypotéku vám radi pomôžeme.
VYBAVÍME ZA VÁS
• hypotéku a právne služby
• kataster
• inžinierske siete
• koordináciu projektu a výstavby
• komplet inžiniering k stavebnému povoleniu
• kolaudáciu RD
• služby interiérového dizajnéra
|
|
Kontaktovať inzerenta e-mailom
Kontaktovať e-mailom môže iba overený užívateľ.
Overenie je zadarmo.
Vaše telefónne číslo *
Kontaktovať e-mailom môže iba overený užívateľ.
Overenie je zadarmo.
Vaše telefónne číslo *
Podobné inzeráty

Typ: Rodinný dom
Ulica: .
Obec: Žilina
Túžite po dome, ktorý spája modernosť, komfort a pokoj rodinného bývania? Tento novostavba bungalovu s úžitkovou plochou 100 m² na pozemku s rozlohou 624 m² splní vaše očakávania.
Užite si rannú kávu či večerný oddych na priestrannej terase o výmere 38 m² ...
285 000 €
Žilina
010 01
010 01
5 x
Označiť zlý inzerát Chybnú kategóriu Ohodnotiť užívateľa Zmazať/Upraviť/Topovať

Typ: Rodinný dom
Ulica: .
Obec: Žilina
Túžite po dome, ktorý spája modernosť, komfort a pokoj rodinného bývania? Tento novostavba bungalovu s úžitkovou plochou 100 m² na pozemku s rozlohou 624 m² splní vaše očakávania.
Užite si rannú kávu či večerný oddych na priestrannej terase o výmere 38 m² ...
285 000 €
Žilina
010 01
010 01
5 x
Označiť zlý inzerát Chybnú kategóriu Ohodnotiť užívateľa Zmazať/Upraviť/Topovať

Typ: Rodinný dom
Ulica: .
Obec: Žilina
Túžite po dome, ktorý spája modernosť, komfort a pokoj rodinného bývania? Tento novostavba bungalovu s úžitkovou plochou 100 m² na pozemku s rozlohou 624 m² splní vaše očakávania.
Užite si rannú kávu či večerný oddych na priestrannej terase o výmere 38 m² ...
285 000 €
Žilina
010 01
010 01
5 x
Označiť zlý inzerát Chybnú kategóriu Ohodnotiť užívateľa Zmazať/Upraviť/Topovať

Typ: Rodinný dom
Ulica: Bytčica
Mestská časť: Bytčica
Obec: Žilina
Piata Avenue Vám Ponúka na predaj 2-izbový tehlový rodinný dom nachádzajúci sa v lokalite Bytčica. Dom je v pôvodnom stave, čo ponúka skvelú príležitosť prerobiť si ho presne podľa vlastných predstáv.
🔹 Základné inform ...
137 000 €
Žilina
010 01
010 01
5 x
Označiť zlý inzerát Chybnú kategóriu Ohodnotiť užívateľa Zmazať/Upraviť/Topovať

Typ: Rodinný dom
Ulica: Bytčica
Mestská časť: Bytčica
Obec: Žilina
Piata Avenue Vám Ponúka na predaj 2-izbový tehlový rodinný dom nachádzajúci sa v lokalite Bytčica. Dom je v pôvodnom stave, čo ponúka skvelú príležitosť prerobiť si ho presne podľa vlastných predstáv.
🔹 Základné inform ...
137 000 €
Žilina
010 01
010 01
4 x
Označiť zlý inzerát Chybnú kategóriu Ohodnotiť užívateľa Zmazať/Upraviť/Topovať

Typ: Rodinný dom
Ulica: Lietavská lúčka
Obec: Žilina
Piata Avenue ponúka na predaj tehlový rodinný dom s úžitkovou plochou cca 185 m², nachádzajúci sa na pozemku o výmere 860 m². Dom je ideálny pre viacčlennú rodinu – poskytuje dostatok priestoru.
Dispozícia domu:
• ...
269 000 €
Žilina
010 01
010 01
6 x
Označiť zlý inzerát Chybnú kategóriu Ohodnotiť užívateľa Zmazať/Upraviť/Topovať

Video prehliadka tu : https://vimeo.com/1110574949?share=copy ( skopírujte si tento link do prehliadača a otvorí sa Vám video prehliadka domu)
Dom sa nachádza na slnečnom pozemku s rozlohou 825 m² (vrátane prístupovej cesty) a ponúka nádherný panoramatický výhľad na okolie. Situovaný je v ...
362 000 €
Žilina
010 01
010 01
46 x
Označiť zlý inzerát Chybnú kategóriu Ohodnotiť užívateľa Zmazať/Upraviť/Topovať

Typ: Rodinný dom
Ulica: Lieňová
Mestská časť: Mojšova Lúčka
Obec: Žilina
🏡 Rodinný dom so záhradou na predaj – 6 km od Žiliny
Hľadáte bývanie v rodinnom dome s veľkým pozemkom, len na skok od mesta? Ponúkame vám priestranný 4-izbový rodinný dom s úžitkovou plochou 195m2 (vrátane suterénu  ...
339 000 €
Žilina
010 01
010 01
60 x
Označiť zlý inzerát Chybnú kategóriu Ohodnotiť užívateľa Zmazať/Upraviť/Topovať

Lokalita : Žilina - Strážov
Sekcia : predaj
Druh : dom
Počet izieb : 2+1
Zastavaná plocha : 80 m²
Celková plocha pozemku : 565 m²
Siete : el. ,voda, kanalizácia
Stav: pôvodný stav
Energetická trieda : certifikát nie je vytvorený
Popis : Predtým ako si pozriete foto-galériu skopírujte si nas ...
129 999 €
Žilina
010 01
010 01
105 x
Označiť zlý inzerát Chybnú kategóriu Ohodnotiť užívateľa Zmazať/Upraviť/Topovať

Lokalita : ŽILINA - TRNOVÉ
Sekcia : predaj
Druh : rodinný dom
Počet izieb : 4+kk
Zastavaná plocha : 119,6 m²
Úžitková plocha : 160,27 m²
Plocha pozemku : 677 m²
Pivnica : nie
Garáž : áno
Stav : hrubá stavba
Energetická trieda : nie je vyhotovený
Orientácia : V-J-Z
Inžinierske siete: ...
275 000 €
Žilina
010 01
010 01
20 x
Označiť zlý inzerát Chybnú kategóriu Ohodnotiť užívateľa Zmazať/Upraviť/Topovať