RADO I Prenájom ambulancie 32,17 m2 I Medicentrum Vinohrady
- [7.10. 2025]Zmazať/ Upraviť/ Topovať










RADO Reality ponúka na prenájom moderné ambulancie v Medicentre Vinohrady – Trenčín
Ponúkame na prenájom ambulanciu o veľkosti 32,17 m2 v novovybudovanom zdravotníckom centre Medicentrum Vinohrady, ktoré sa nachádza v atraktívnej lokalite Rezidencia Vinohrady – Trenčín.
Zariadenie funguje od roku 2022 a spája moderný dizajn, vysoký štandard a výbornú dostupnosť.
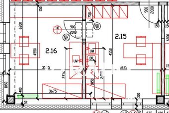
Ambulancia pozostáva z dvoch miestností (ordinácia lekára + sesterňa), prepojených dverami.
K ambulancii patrí spoločná čakáreň (24,08 m²) pre tri ordinácie, ako aj denná miestnosť / kuchynka (5,51 m²) vybavená mikrovlnkou, chladničkou a rýchlo varnou kanvicou.
Výhody a benefity:
- Parkovacie miesto pred budovou pre každú ambulanciu (v cene nájmu)
- Samostatný alarm a meranie energií pre každú ambulanciu
- Bezplatné Wi-Fi pre pacientov
- Zabezpečenie upratovania spoločných priestorov (po dohode možnosť poskytnúť upratovacie služby aj pre sesterňu a ordináciu lekára).
- Priama dostupnosť lekárne v budove – rýchle dodanie liekov
Cena prenájmu za jednotlivú ambulanciu:
450 € / mesiac bez DPH + 202 € / mesiac bez DPH (energie a služby):
- elektrina 53 €
- voda 10 €
- internet 5 €
- upratovanie spoločných priestorov 65 €
- kúrenie 69 €
https://medicentrumvinohrady.sk/
Ing. Dávid Zemčák
RADO Reality Group
Tel.: +421 915 941 044
E-mail: zemcak@radoreality.sk
Uvedená cena je konečná, pokiaľ sa zmluvné strany nedohodnú inak, a nenavyšuje sa o odmenu sprostredkovateľa.
V cene je zahrnuté právne poradenstvo, vyhotovenie kúpnych zmlúv, hypotekárne poradenstvo a uhradenie správneho poplatku za návrh na vklad do katastra nehnuteľností.
RADO Reality Group je ocenená Realitnou úniou ako najlepšia realitná kancelária na Slovensku za rok 2022. Okrem toho sme držiteľmi ďalších 4 prestížnych ocenení..sk
telefón: 0915 941 044
Dodatok k cene: , +energie
Obytná plocha: 32.17m²
Celková rozloha: 32.17m²
Úžitková plocha: 32.17m²
Vlastníctvo: firemné
Stav: pôvodný
Odvoz odpadu: áno - separovaný
Voda: neuvedené
El. napätie: 230V
Internet: optika
Vykurovanie: áno
Parkovanie: áno
Postavené z: tehla
Zariadenie: čiastočne
Zateplený objekt: áno
Energetický certifikát: B
Bezbariérový prístup : áno
Okná: plastové
Ponúkame na prenájom ambulanciu o veľkosti 32,17 m2 v novovybudovanom zdravotníckom centre Medicentrum Vinohrady, ktoré sa nachádza v atraktívnej lokalite Rezidencia Vinohrady – Trenčín.
Zariadenie funguje od roku 2022 a spája moderný dizajn, vysoký štandard a výbornú dostupnosť.
Ambulancia pozostáva z dvoch miestností (ordinácia lekára + sesterňa), prepojených dverami.
K ambulancii patrí spoločná čakáreň (24,08 m²) pre tri ordinácie, ako aj denná miestnosť / kuchynka (5,51 m²) vybavená mikrovlnkou, chladničkou a rýchlo varnou kanvicou.
Výhody a benefity:
- Parkovacie miesto pred budovou pre každú ambulanciu (v cene nájmu)
- Samostatný alarm a meranie energií pre každú ambulanciu
- Bezplatné Wi-Fi pre pacientov
- Zabezpečenie upratovania spoločných priestorov (po dohode možnosť poskytnúť upratovacie služby aj pre sesterňu a ordináciu lekára).
- Priama dostupnosť lekárne v budove – rýchle dodanie liekov
Cena prenájmu za jednotlivú ambulanciu:
450 € / mesiac bez DPH + 202 € / mesiac bez DPH (energie a služby):
- elektrina 53 €
- voda 10 €
- internet 5 €
- upratovanie spoločných priestorov 65 €
- kúrenie 69 €
https://medicentrumvinohrady.sk/
Ing. Dávid Zemčák
RADO Reality Group
Tel.: +421 915 941 044
E-mail: zemcak@radoreality.sk
Uvedená cena je konečná, pokiaľ sa zmluvné strany nedohodnú inak, a nenavyšuje sa o odmenu sprostredkovateľa.
V cene je zahrnuté právne poradenstvo, vyhotovenie kúpnych zmlúv, hypotekárne poradenstvo a uhradenie správneho poplatku za návrh na vklad do katastra nehnuteľností.
RADO Reality Group je ocenená Realitnou úniou ako najlepšia realitná kancelária na Slovensku za rok 2022. Okrem toho sme držiteľmi ďalších 4 prestížnych ocenení..sk
telefón: 0915 941 044
Dodatok k cene: , +energie
Obytná plocha: 32.17m²
Celková rozloha: 32.17m²
Úžitková plocha: 32.17m²
Vlastníctvo: firemné
Stav: pôvodný
Odvoz odpadu: áno - separovaný
Voda: neuvedené
El. napätie: 230V
Internet: optika
Vykurovanie: áno
Parkovanie: áno
Postavené z: tehla
Zariadenie: čiastočne
Zateplený objekt: áno
Energetický certifikát: B
Bezbariérový prístup : áno
Okná: plastové
|
|
Kontaktovať inzerenta e-mailom
Kontaktovať e-mailom môže iba overený užívateľ.
Overenie je zadarmo.
Vaše telefónne číslo *
Kontaktovať e-mailom môže iba overený užívateľ.
Overenie je zadarmo.
Vaše telefónne číslo *