Znížená cena - predaj pozemku
- TOP - [17.10. 2025]Zmazať/ Upraviť/ Topovať



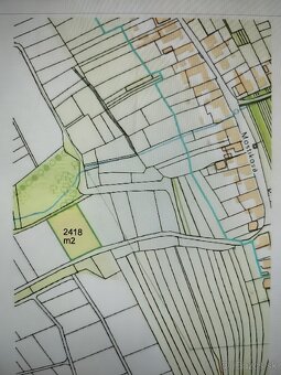
Ponúkam na predaj slnečný pozemok o výmere 2418 m2 v tomto čase vhodný na rekreáciu alebo poľnohospodárske využitie, chov. Momentálne je pozemok je navrhnutý na zaradenie od územného plánu obce-zmeny a doplnky na výstavbu rodinných domov alebo rekreačných objektov, to znamená, že do budúcnosti je to vhodná investičná príležitosť. K pozemku vedie upravená obecná cesta, v blízkosti elektrická prípojka, vzdialenosť od najbližších obydlí v obci cca 400 m. V blízkom okolí pozemku je už viac parciel využívaných na drobné poľnohospodárske využitie, mobilné domy, záhradkárčenie. Nakoľko som vlastníčkou nie RK viem sa dohodnúť na konečnej cene.
|
|
Kontaktovať inzerenta e-mailom
Kontaktovať e-mailom môže iba overený užívateľ.
Overenie je zadarmo.
Vaše telefónne číslo *
Kontaktovať e-mailom môže iba overený užívateľ.
Overenie je zadarmo.
Vaše telefónne číslo *