Rodinný dom s dvojgarážou
- [6.10. 2025]Zmazať/ Upraviť/ Topovať











Predám 6 izbový poschodový rodinný dom s dvojgarážou situovaný v úzkom centre Vrútok. Poloha umožňuje pešiu dostupnosť (do 10 minút) na železničnú a autobusovú stanicu, zastávku MHD. V blízkosti sa nachádza škôlka, základná a stredná škola, obvodné oddelenie PZ, obchodná pasáž a dva supermarkety.
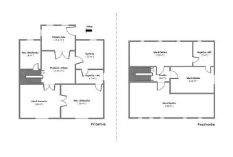
Na prízemí sa nachádza chodba, hala s krbom, kuchyňa, WC s kúpeľňou a 3 izby. Na poschodí sa nachádzajú 3 izby a WC s kúpeľňou. Celý rodinný dom je podpivničený.
Rodinný dom vzhľadom na polohu umožňuje využitie aj na podnikateľské a kancelárske účely ako napr. jasle, škôlka, zdravotné stredisko, administratíva a pod.
- rozloha pozemku – 467 m2
- zastavaná plocha – 160 m2
- vykurovanie – plynový kotol s panelovými radiátormi (možnosť kúriť v krbe a kachlovej peci pevným palivom)
- rodinný dom komplet zateplený
- nová strešná krytina v roku 2022
- prejazdná dvojgaráž s úložným poschodím
- kompletná inžinierska sieť – voda, plyn, elektrina, internet + nepoužívaná vlastná studňa
- náklady na bývanie – 110 eur na mesiac
Vysporiadaný pozemok, nehnuteľnosť aj garáž (ohlásené na stavebnom úrade) bez akejkoľvek ťarchy na LV. V cene zahrnutá časť nábytku.
V prípade záujmu ma neváhajte telefonicky kontaktovať a dohodneme si osobnú obhliadku.
Na prízemí sa nachádza chodba, hala s krbom, kuchyňa, WC s kúpeľňou a 3 izby. Na poschodí sa nachádzajú 3 izby a WC s kúpeľňou. Celý rodinný dom je podpivničený.
Rodinný dom vzhľadom na polohu umožňuje využitie aj na podnikateľské a kancelárske účely ako napr. jasle, škôlka, zdravotné stredisko, administratíva a pod.
- rozloha pozemku – 467 m2
- zastavaná plocha – 160 m2
- vykurovanie – plynový kotol s panelovými radiátormi (možnosť kúriť v krbe a kachlovej peci pevným palivom)
- rodinný dom komplet zateplený
- nová strešná krytina v roku 2022
- prejazdná dvojgaráž s úložným poschodím
- kompletná inžinierska sieť – voda, plyn, elektrina, internet + nepoužívaná vlastná studňa
- náklady na bývanie – 110 eur na mesiac
Vysporiadaný pozemok, nehnuteľnosť aj garáž (ohlásené na stavebnom úrade) bez akejkoľvek ťarchy na LV. V cene zahrnutá časť nábytku.
V prípade záujmu ma neváhajte telefonicky kontaktovať a dohodneme si osobnú obhliadku.
|
|
Kontaktovať inzerenta e-mailom
Kontaktovať e-mailom môže iba overený užívateľ.
Overenie je zadarmo.
Vaše telefónne číslo *
Kontaktovať e-mailom môže iba overený užívateľ.
Overenie je zadarmo.
Vaše telefónne číslo *