Poschodový RD.
- TOP - [22.10. 2025]Zmazať/ Upraviť/ Topovať




















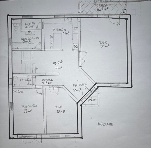
Predám poschodový RD postavený v r.2007 na 9,5á pozemku v Kamanovej ( 13km od TO a 15km od NR), je vhodný aj ako dvojgeneračný. Strecha je zateplená striekanou penovou izoláciou 30cm je v nej na celej ploche úložný priestor na nepotrebné veci. Je zateplený 10cm zateplovacím polystyrénom. Dom má 5 nepriechodných izieb s plávajúcou podlahou, z toho dve 31m2 ( v jednej je obývačka spojená s jedálňou a druhá na poschodí - ako detská izba s hojdačkou) + 2x kúpeľňa s WC + 2x šatník + veľká pracovňa/ príp.fitness , kotolňa - nový plyn kotol Immergas menený pred 4 rokmi, kuchyňa s ostrovčekom a so vstupom do komory. Má presklennú vykurovanú terasu prístupnú z obývačky a východom na dvor. V celom dome je ústredné kúrenie. Na dvore je detské ihrisko, 2x záhradný murovaný domček ( na odkladanie náradia a dielnička) V záhrade sú vyvýšené záhony , stromy ako orech, čerešňa, jablone, broskyňa, hruška, slivka, lieska, kríky: egreše, rýbezle, černica, maliny, a jahody. Tiež je vybudovaná veľká ohrada s domčekom pre sliepky, voliéra pre psa s prístupom na terasu, bazén (ten však nebol využivaný viac rokov). Pred domom parkovanie na 5 áut ( 2x na zpevnenej ploche-zámková dlažba + 3 autá na trávnatej ploche). Brána je kovaná ozdobná a prekytá, aby za zabránilo neželaným pohľadom z ulice, je pojazdná-na diaľkové ovládanie, malá bránka má videovrátnika s el.ovládaním. Na dome sú kamery so záznamom. Vynikajúci susedia, tiché prostredie. Cena 235tisíc Eur. Prípadne vymením za 3izb.byt v TO + váš doplatok. Viac info a fotiek pri vážnom záujme. Poprosím real.agentov volať len ak majú konkrétneho a vážneho záujemcu !!!
|
| |||||||||||||||||||||||||||||||
Kontaktovať inzerenta e-mailom
Kontaktovať e-mailom môže iba overený užívateľ.
Overenie je zadarmo.
Vaše telefónne číslo *
Kontaktovať e-mailom môže iba overený užívateľ.
Overenie je zadarmo.
Vaše telefónne číslo *