predaj NOVOSTAVBA v obci Brodzany s pozem. 391 m²
- TOP - [17.10. 2025]Zmazať/ Upraviť/ Topovať






























MaVinn realitná spoločnosť ponúka na predaj veľmi peknú novostavbu štýlového rodinného domu v pokojnej uličke, mimo hlavnej cesty v obci Brodzany okres Partizánske.
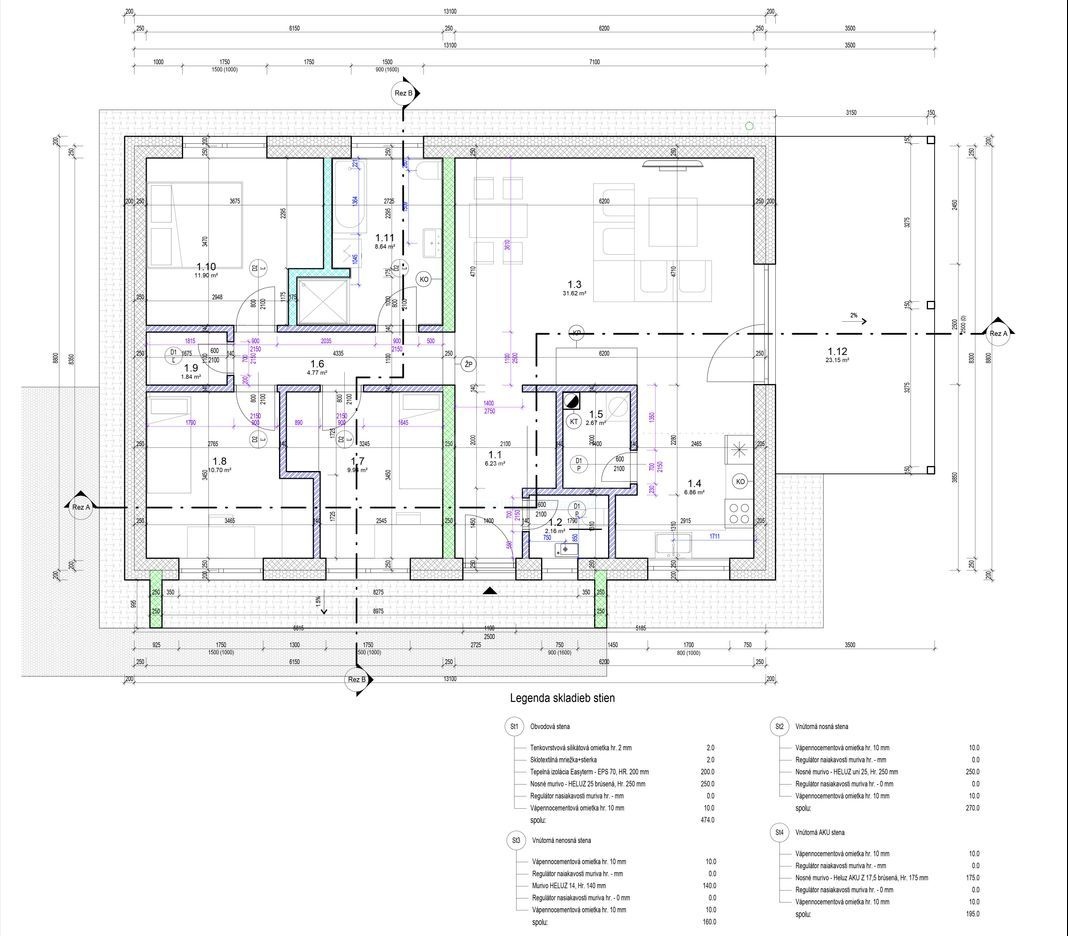
Úžitková plocha 4 izbového rodinného domu je 97m² + 23 m² terasa, zastavaná plocha je 156 m² a celková rozloha pozemku vrátane zastavenej plochy je 391 m². Dom je v štádiu výstavby – aktuálny stav ako vidieť na foto a bude sa predávať dokončený do štádia HOLODOM.
Dispozícia domu:
Vstup do domu je cez chodbu, ktorá pomyslene rozdeľuje dom na dve časti– dennú a nočnú zónu. Pri vstupe je prvé WC. Ďalej sa cez chodbu vstupuje do dennej časti - veľkej obývačky spojenej s kuchyňou a výstupom na terasu.
Pekné presvetlenie dennej časti zabezpečuje veľké francúzske balónové okno. V kuchyni je špajza.
Druhú - nočnú časť tvoria tri samostatné miestnosti, veľká kúpeľňa s vaňou, sprchovým kútom, druhým WC a technická miestnosť.
Stavba je postavená z tehly 250 mm + zateplenie 200 mm polystyrén a fasádna omietka silikónová. V prednej časti domu krásny efektný RHOMBUS obklad. Strecha je z väzníkového krovu, rovná, zateplená z interiéru minerálnou vlnou v hrúbke 400 mm a ukončená systémom Fatrafol. Rozvody vody sú hliníko-plast bez spojov z zemi a nezámrzný ventil Shell do exteriéru.
Kúrenie v Novostavbe je zriadené podlahové - vodné s elektrickým kotlom. Je možne ešte voliť tepelné čerpadlo. Odpady sú riešené verejnou kanalizáciou.
Novostavba má prípravu na krb (krbová vložka) prípravu na klimatizáciu, vonkajšie elektrické žalúzie , fotovoltiku, optiku, satelit, domáci vrátnik a kamerový systém. Celý interiér bude mať vápenato-cementové omietky, omaľovaný na bielo a osadené zásuvky a vypínače Legrand.
Pri stavbe boli požité kvalitné materiály a precízne odvedené práce:
Energetický certifikát A0 zaručuje nízke náklady na energie.
Táto štýlová, moderná nehnuteľnosť sa predáva v stave HOLODOM a je už POSTAVENÁ.
Odporúčam nehnuteľnosť vidieť osobne.
V prípade záujmu o túto nehnuteľnosť vo výbornej lokalite ma neváhajte kontaktovať.
Možnosť kúpiť nehnuteľnosť prostredníctvom hypotekárneho úveru Vám radi pomôžeme vybaviť a sprostredkovať.
CENA predávanej nehnuteľnosti je za štádium prevedenia - HOLODOM vrátane právneho a hypotekárneho servisu.
Ing. Pečovská Marianna
0908 524 620
realitný a úverový poradca
mail: pecovska@mavinn.sk
web: mavinn.sk
Úžitková plocha 4 izbového rodinného domu je 97m² + 23 m² terasa, zastavaná plocha je 156 m² a celková rozloha pozemku vrátane zastavenej plochy je 391 m². Dom je v štádiu výstavby – aktuálny stav ako vidieť na foto a bude sa predávať dokončený do štádia HOLODOM.
Dispozícia domu:
Vstup do domu je cez chodbu, ktorá pomyslene rozdeľuje dom na dve časti– dennú a nočnú zónu. Pri vstupe je prvé WC. Ďalej sa cez chodbu vstupuje do dennej časti - veľkej obývačky spojenej s kuchyňou a výstupom na terasu.
Pekné presvetlenie dennej časti zabezpečuje veľké francúzske balónové okno. V kuchyni je špajza.
Druhú - nočnú časť tvoria tri samostatné miestnosti, veľká kúpeľňa s vaňou, sprchovým kútom, druhým WC a technická miestnosť.
Stavba je postavená z tehly 250 mm + zateplenie 200 mm polystyrén a fasádna omietka silikónová. V prednej časti domu krásny efektný RHOMBUS obklad. Strecha je z väzníkového krovu, rovná, zateplená z interiéru minerálnou vlnou v hrúbke 400 mm a ukončená systémom Fatrafol. Rozvody vody sú hliníko-plast bez spojov z zemi a nezámrzný ventil Shell do exteriéru.
Kúrenie v Novostavbe je zriadené podlahové - vodné s elektrickým kotlom. Je možne ešte voliť tepelné čerpadlo. Odpady sú riešené verejnou kanalizáciou.
Novostavba má prípravu na krb (krbová vložka) prípravu na klimatizáciu, vonkajšie elektrické žalúzie , fotovoltiku, optiku, satelit, domáci vrátnik a kamerový systém. Celý interiér bude mať vápenato-cementové omietky, omaľovaný na bielo a osadené zásuvky a vypínače Legrand.
Pri stavbe boli požité kvalitné materiály a precízne odvedené práce:
Energetický certifikát A0 zaručuje nízke náklady na energie.
Táto štýlová, moderná nehnuteľnosť sa predáva v stave HOLODOM a je už POSTAVENÁ.
Odporúčam nehnuteľnosť vidieť osobne.
V prípade záujmu o túto nehnuteľnosť vo výbornej lokalite ma neváhajte kontaktovať.
Možnosť kúpiť nehnuteľnosť prostredníctvom hypotekárneho úveru Vám radi pomôžeme vybaviť a sprostredkovať.
CENA predávanej nehnuteľnosti je za štádium prevedenia - HOLODOM vrátane právneho a hypotekárneho servisu.
Ing. Pečovská Marianna
0908 524 620
realitný a úverový poradca
mail: pecovska@mavinn.sk
web: mavinn.sk
|
| |||||||||||||||||||||||||||||||
Kontaktovať inzerenta e-mailom
Kontaktovať e-mailom môže iba overený užívateľ.
Overenie je zadarmo.
Vaše telefónne číslo *
Kontaktovať e-mailom môže iba overený užívateľ.
Overenie je zadarmo.
Vaše telefónne číslo *









